9

Apartament 3 camere Zona Mamaia Nord- la 200 m de plaja

110.000 €

Mamaia-Sat, Județul Constanța

Nr. cam.:
3
Sup. utilă:
93 mp
Etaj:
3 / 5
An constr.:
2023 (Finalizată)
  • • Comision 0%
  • • Locație aproximativă

Descriere apartament

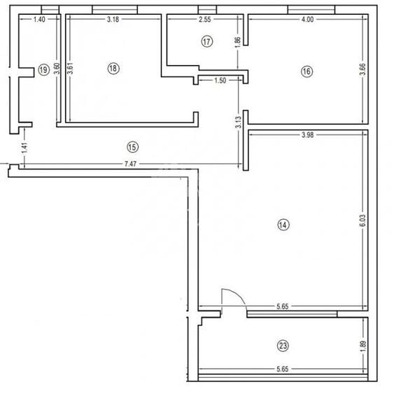
Pozitionat excelent, intr-o zona linistita din Mamaia Nord, acest apartament cu 3 camere ofera tot ce ai putea cauta intr-o proprietate de vacanta sau de locuit permanent: spatiu generos, lumina naturala si apropiere de plaja. Cu o suprafata utila de 90,2 mp si un balcon de 9,8 mp, locuinta se afla la etajul 4 al unui imobil nou cu 5 etaje, dotat cu lift si construit cu grija pentru confortul cotidian. Balconul larg ofera un colt ideal pentru relaxare, cu aer sarat si briza marina. Imobilul este finalizat, iar toate actele sunt pregatite pentru semnare. Un apartament care aduce marea aproape si transforma fiecare zi intr-o experienta de vacanta. ** Pretul afisat include TVA 21%
Citește mai mult Citește mai puțin
Confort lux Decomandat 1 Balcon / Terasă / Logie Aer condiționat Centrală proprie Încălzire prin pardoseală

Detalii apartament

ID anunț: X44M1018E Copiat! 263308329 Copiat!
Actualizat în: 19 Februarie 2026
Suprafață construită: 105 mp
Nr. bucătării: 1
Nr. băi: 2
Structură rezistență: BCA
Tip imobil: Bloc de apartamente
Regim înălțime: P+5E

Utilități

Destinație
Rezidențial
Pereți
Vopsea lavabilă Faianță
Podele
Parchet Gresie
Ușă intrare
Metal
Uși interior
Celulare
Izolații termice
Exterior Bloc izolat termic
Ferestre cu geam termopan
Aluminiu
Contorizare
Apometre
Alte spații utile
WC Serviciu
Facilități imobil
Interfon Lift
Utilități
Curent Apă Canalizare Telefon
Amenajare străzi
Pietruite Iluminat stradal Mijloace de transport în comun

Certificat energetic:

Clasa energetică: A

Disponibilitate proprietate:

imediat

Puncte de interes

Mijloace transport
bus-station
Navodari
Stații autobuz aprox. 1945 m
train-station
Statia CFR Năvodari
Stații tren aprox. 1980 m
Școală
school
Scoala Gimnaziala Tudor Arghezi
Școli aprox. 1511 m
school
Scoala Nr. 3
Școli aprox. 1515 m
school
Gr. sc. Lazar Edeleanu
Școli aprox. 1630 m
school
Scoala nr1, Navodari
Școli aprox. 1770 m
Recreere
sports-ground
Teren sportiv
Terenuri sport aprox. 230 m
restaurant
Restaurant Coral
Restaurant aprox. 390 m
supermarket
Max supermarket
Supermarket aprox. 694 m
park
Parcul Ion Dobre
Parcuri aprox. 1185 m

Detalii despre preț și costuri

Prețul pe piață

Preț cerut: 110.000 €

Preț min. zonă 92.000 €
Preț max. zonă 380.000 €

86% dintre proprietățile similare ca zonă și nr. camere au prețul cerut mai mare. mai multe...

Bine de știut: prețul unei proprietăți este influențat și de alte caracteristici, cum ar fi: vechime, localizare, vecinătăți, suprafață, compartimentare, amenajări, dotări, etc. mai puțin...

Costuri cu achiziția

Fără credit
6.581 RON
Credit ipotecar
8.161 RON
Noua casă
701 RON+ taxe notariale

i

Costuri adiționale mai puțin știute la achiziție: taxe notariale, comisioane etc.

Proprietăți recomandate

Detalii de contact

S.C. BLUE SKY IMPEX S.R.L

Cristi Stroe Manager vanzari

5.00(5 review-uri)

S.C. BLUE SKY IMPEX S.R.L
PRO

Abonează-te la newsletter să fii primul care primește cele mai noi recomandări de proprietăți și sfaturi de la experți.

CONTACT

Creează alertă

Salvează căutarea ca să primești pe email ultimele anunțuri publicate

Apartamente noi cu 3 camere de vânzare în Mamaia-Sat, Județul Constanța