5

COMISION 0% | 2 camere - terasa | 2 locuri de parcare

78.829 €

Moșnița Nouă, Județul Timiș

Nr. cam.:
2
Sup. utilă:
46,37 mp
Etaj:
1 / 3
An constr.:
2025
  • • Comision 0%
  • • Locație aproximativă

Descriere apartament

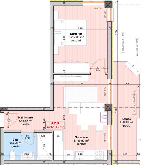
De vanzare apartamente cu 2 camere intr-un bloc nou, situat in Mosnita-Noua. Tip apartament: -36.60 mp + 7.64 mp - terasa - 1 loc de parcare | 66.880 euro -37.98 mp + 8.98 mp - terasa - 1 loc parcare | 69.364 euro -39 mp + 7.64 mp - terasa - 1 loc de parcare | 71.200 euro -41.45 mp + 5.31 mp - terasa - 1 loc de parcare | 74.610 euro -46.37 mp + 5.31 mp - terasa - 2 locuri parcare | 79.829 euro -58.21 mp + 5.31 mp - terasa - 2 locuri parcare | 92.800 euro Preturile sunt in funcție de modalitatea de plata. TVA 21% inclus in preturile specificate mai sus. Este compartimentat astfel: -hol acces -bucatarie -living -dormitor -baie -terasa Fiecare apartament beneficeaza de finisaje premium: -structură de rezistentă din beton armat în cadre -zidrie Porotherm Wienberger de 30cm ziduri exterioare, 25cm ziduri interioare -termoizolație cu polistiren de 10 cm -tencuit, gletuit si zugravit - mecanizat -decorativa exterioara impermeabila -ferestre termopan profil PVC cu geam triplu - SALAMANDER -usi de interior din gama premium, import Germania 210 cm H -finisaje preimum, gresie si faianta calitatea I import Italia - TEMPINI -centrala proprie pe gaz prin condesare - VIESSMANN -incalzire in pardoseala -sanitare moderne import Italia: cada, vas de toaleta suspendat și capac soft close, robineți game premium -video interfon - ELECTRA Va putem oferi un pachet personalizat de amenajare cu design - mobilier|electrocasnice la un pret foarte accesibil care poate fi inclus in pretul de achizitie cu credit. Pentru mai multe detalii puteti sa ne contactati telefonic la numarul:
Citește mai mult Citește mai puțin
Confort 1 Decomandat 1 Balcon / Terasă / Logie Centrală proprie Încălzire prin pardoseală 2 Parcări Bine întreținut (Bună)

Detalii apartament

ID anunț: XF0N00041 Copiat! 272255721 Copiat!
Actualizat în: 21 Aprilie 2026
Suprafață utilă totală: 51.68 mp
Nr. bucătării: 1
Nr. băi: 1
Structură rezistență: Beton
Tip imobil: Bloc de apartamente
Tip tranzacție: De vânzare prin agent
Regim înălțime: P+3E
Modalitate de plată: Cash sau Credit

Utilități

Destinație
Rezidențial
Pereți
Vopsea lavabilă Faianță
Podele
Gresie Parchet
Ușă intrare
Metal
Uși interior
Lemn
Izolații termice
Exterior
Ferestre cu geam termopan
PVC
Contorizare
Apometre Contor gaz
Alte spații utile
Terasă
Facilități imobil
Videointerfon
Utilități
CATV Gaze Curent Canalizare Apă
Internet
Fibră optică
Servicii imobil
Administrare
Amenajare străzi
Asfaltate Iluminat stradal Mijloace de transport în comun
Comision
0%

Certificat energetic:

Clasa energetică: A

Puncte de interes

Mijloace transport
bus-station
Halta Urseni
Stații autobuz aprox. 1588 m
train-station
Halta Urseni hc
Stații tren aprox. 1593 m
Recreere
restaurant
La Paul
Restaurant aprox. 1294 m
sports-ground
Stadion Urseni
Terenuri sport aprox. 1568 m
restaurant
Valery 3 (en)
Restaurant aprox. 1850 m

Detalii despre preț și costuri

Prețul pe piață

Preț cerut: 78.829 €

Preț min. zonă
Preț max. zonă

63% dintre proprietățile similare ca zonă și nr. camere au prețul cerut mai mic. mai multe...

Bine de știut: prețul unei proprietăți este influențat și de alte caracteristici, cum ar fi: vechime, localizare, vecinătăți, suprafață, compartimentare, amenajări, dotări, etc. mai puțin...

Acces la informații premium după autentificare
Login Gratuit

Costuri cu achiziția

Fără credit
Credit ipotecar
Noua casă

i

Costuri adiționale mai puțin știute la achiziție: taxe notariale, comisioane etc.

Acces la informații premium după autentificare
Login Gratuit

Proprietăți similare

Apartament cu 2 camere decomandat în Moșnița Nouă
84.500 €
Județul Timiș, Moșnița Nouă
2 camere
53 mp
Etaj 2
Apartament cu 2 camere în Moșnița Nouă
85.000 €
Județul Timiș, Moșnița Nouă
2 camere
53 mp
Etaj 2
Apartament cu 2 camere decomandat în Moșnița Nouă
84.668 €
Județul Timiș, Moșnița Nouă
2 camere
53,2 mp
Etaj 2

Detalii de contact

Maison Properties

Maison Properties

4.80(5 review-uri)

Maison Properties
PRO

Abonează-te la newsletter să fii primul care primește cele mai noi recomandări de proprietăți și sfaturi de la experți.

Feedback apel

CONTACT

Creează alertă

Salvează căutarea ca să primești pe email ultimele anunțuri publicate

Apartamente noi cu 2 camere de vânzare în Moșnița Nouă, Județul Timiș