Apartament nou cu 3 camere in Ema Residence - str. Mestesugarilor

199.563 € + TVA

Iosia, Oradea

Nr. cam.:
3
Sup. utilă:
89,49 mp
Etaj:
3 / 3
An constr.:
2025 (În construcție)
  • • Comision 0%
  • • Locație aproximativă

Descriere apartament

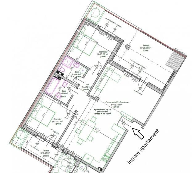
Apartamente cu 3 camere - Complex rezidential nou - Str. Mestesugarilor direct de la dezvoltator Caracteristici generale: o Regim de inaltime: P+2E+Er o Structura: Beton armat + caramida o Izolatie termica: Polistiren + vata - 15 cm o Lift: Schindler Incalzire si eficienta energetica: o Centrala pe gaz comuna pentru intreg blocul o Incalzire in pardoseala o Panouri fotovoltaice de 20 kW - reduc costurile comune o Apa calda asigurata prin sistem mixt gaz + electric o Costuri aproape 0 pentru iluminat comun si alti consumatori partajati Dotari si finisaje apartamente: o Predare ,,la alb" - pereti finisati cu glet si vopsea lavabila alba o Șapa mecanizata turnata peste incalzirea in pardoseala o Tamplarie Rehau - geamuri 7 camere, 3 foi de sticla o Rolete exterioare electrice - cu telecomanda sau aplicatie smart o Aer conditionat inclus o Video interfon o Spatiu de depozitare pe balcon (zidit) o Balcoane/terase cu gresie si balustrade din sticla securizata o Curte interioara cu acces controlat si bariera automata o Statii de incarcare auto electrica - infrastructura pregatita la fiecare loc de parcare ________________________________________ Apartamente disponibile - 3 camere: o Ap. 13 - 89,14 mp + balcon 7,59 mp + terasa 15,63 mp - Pret: 196.108 Euro + TVA o Ap. 14 - 89,49 mp + balcon 6,24 mp + terasa 28,08 mp - Pret: 199.563 Euro + TVA o Ap. 15 - 81,53 mp + terasa 67,46 mp - Pret: 199.583 Euro + TVA ________________________________________ Termene si beneficii: o Finalizare constructie: Februarie 2026 o Predare CF-uri: Aprilie 2026 o Pana la 01.08.2025 se poate achita un avans de minimum 20% pentru a pastra cota actuala de TVA (9% sau 19%) o Diferenta se achita ulterior, pana la 31.07.2026, din surse proprii sau prin credit ipotecar Contactati-ne pentru lista completa de disponibilitati si pentru a programa o vizionare in santier!
Citește mai mult Citește mai puțin
Nemobilat 1 Balcon / Terasă / Logie Aer condiționat Centrală imobil Încălzire prin pardoseală

Detalii apartament

ID anunț: XC6H100JF Copiat! 266816615 Copiat!
Actualizat în: 08 Septembrie 2025
Suprafață construită: 141.64 mp
Nr. bucătării: 1
Nr. băi: 2
Structură rezistență: Beton
Tip imobil: Bloc de apartamente
Regim înălțime: P+3E

Utilități

Destinație
Rezidențial
Jaluzele
Verticale
Pereți
Vopsea lavabilă
Rulouri/Obloane
PVC
Ușă intrare
Metal
Izolații termice
Bloc izolat termic
Contorizare
Contor gaz Apometre
Diverse
Telecomandă poartă acces auto
Facilități imobil
Lift Videointerfon
Utilități
Curent Apă Canalizare Gaze CATV
Amenajare străzi
Asfaltate

Certificat energetic:

Clasa energetică: A

Disponibilitate proprietate:

imediat

Puncte de interes

Mijloace transport
tram-station
Iosia
Stații tramvai aprox. 486 m
bus-station
14
Stații autobuz aprox. 491 m
bus-station
Oradea Vest
Stații autobuz aprox. 750 m
tram-station
Hategului
Stații tramvai aprox. 821 m
Școală
school
GS Transilvania
Școli aprox. 386 m
school
Don Orione
Școli aprox. 735 m
kindergarten
Gradinita 20
Gradinițe aprox. 1531 m
kindergarten
Gradinita 45 cu program prelungit
Gradinițe aprox. 1537 m
Recreere
cafe
bar
Cafenea aprox. 510 m
park
Parc Strand Iosia
Parcuri aprox. 636 m
sports-ground
Teren sportiv
Terenuri sport aprox. 762 m
supermarket
Kaufland
Supermarket aprox. 1081 m

Detalii despre preț și costuri

Prețul pe piață

Preț cerut: 199.563 €

Preț min. zonă
Preț max. zonă

58% dintre proprietățile similare ca zonă și nr. camere au prețul cerut mai mic. mai multe...

Bine de știut: prețul unei proprietăți este influențat și de alte caracteristici, cum ar fi: vechime, localizare, vecinătăți, suprafață, compartimentare, amenajări, dotări, etc. mai puțin...

Insight premium disponibil după login

Costuri cu achiziția

Fără credit
Credit ipotecar
Noua casă

i

Costuri adiționale mai puțin știute la achiziție: taxe notariale, comisioane etc.

Insight premium disponibil după login

Proprietăți recomandate

Detalii de contact

PRESTIGE Imobiliare

Paul Trinca Agent Imobiliar

PRESTIGE Imobiliare
PRO

Abonează-te la newsletter să fii primul care primește cele mai noi recomandări de proprietăți și sfaturi de la experți.

CONTACT

Creează alertă

Salvează căutarea ca să primești pe email ultimele anunțuri publicate

Apartamente cu 3 camere de vânzare în zona Iosia, Oradea