Apartament nou, ultracentral, 3 cam, 89,4 mp. 165 000 E (+TVA )

165.000 €

Ultracentral, Oradea

Nr. cam.:
3
Sup. utilă:
89 mp
Etaj:
Parter
An constr.:
2022
  • • Locație aproximativă

Descriere apartament

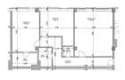
De vânzare: apartament nou, ultracentral, 3 camere, 89,4 mp utili. 165 000 E (pretul nu include TVA ). La doar 1 MINUT de piata Unirii, punctul cel mai central al Orasului Oradea va oferim un apartament cu o suprafata generoasa intr-o Locație premium Localizat strategic in zona centrala, blocul oferă acces facil la toate punctele de interes din oraș.Fațada ventilată,Ferestrele termopan bluEvolution82, Pardoseala încălzită sunt cateva elemente care asigura un confort sporit al locuintei.Construcția își propune să ofere un mediu de locuit confortabil, sigur și eficient din punct de vedere energetic, respectând cele mai înalte standarde de calitate și design.Blocul este construit folosind materiale de cea mai bună calitate, asigurând astfel durabilitate și rezistență pe termen lungSistem de izolație termică și fonică avansat, garantând confortul termic și liniștea locatarilor.Ferestre cu geam termopan de ultimă generație, asigurând un consum redus de energie și protecție împotriva zgomotului exterior.Apartamentul se preda finisat la alb. Preț:165.000 Euro + TVA. Contact: Sorin Gligor TEL:
Citește mai mult Citește mai puțin
Decomandat

Detalii apartament

ID anunț: XGBQ0000B Copiat! 275463181 Copiat!
Actualizat în: 21 Aprilie 2026
Nr. bucătării: 1
Nr. băi: 2
Tip imobil: Bloc de apartamente
Regim înălțime: P

Utilități

Destinație
Rezidențial
Utilități
Curent Apă Canalizare CATV Gaze Telefon
Internet
Cablu
Amenajare străzi
Iluminat stradal Mijloace de transport în comun Asfaltate
Comision
standard

Disponibilitate proprietate:

Imediat

Puncte de interes

Mijloace transport
tram-station
Primarie
Stații tramvai aprox. 746 m
bus-station
Statie Decebal
Stații autobuz aprox. 775 m
tram-station
Piata 1 Decembrie
Stații tramvai aprox. 908 m
bus-station
Dimitrie Cantemir
Stații autobuz aprox. 1602 m
Școală
school
Partenie Cosma
Școli aprox. 262 m
school
Scoala Sportiva
Școli aprox. 388 m
university
Universitatea Oradea
Universități aprox. 738 m
university
Universitatea Crestina Partium - Cladirea Sulyok
Universități aprox. 857 m
Recreere
park
Parcul Nicolae Balcescu
Parcuri aprox. 157 m
cafe
Life Club
Cafenea aprox. 388 m
sports-ground
Teren sportiv
Terenuri sport aprox. 404 m
supermarket
Supermarkt
Supermarket aprox. 862 m

Detalii despre preț și costuri

Prețul pe piață

Preț cerut: 165.000 €

Preț min. zonă
Preț max. zonă

64% dintre proprietățile similare ca zonă și nr. camere au prețul cerut mai mare. mai multe...

Bine de știut: prețul unei proprietăți este influențat și de alte caracteristici, cum ar fi: vechime, localizare, vecinătăți, suprafață, compartimentare, amenajări, dotări, etc. mai puțin...

Insight premium disponibil după login

Costuri cu achiziția

Fără credit
Credit ipotecar
Noua casă

i

Costuri adiționale mai puțin știute la achiziție: taxe notariale, comisioane etc.

Insight premium disponibil după login

Proprietăți similare

Apartament cu 2 camere decomandat în Ultracentral
159.000 €
Oradea, Ultracentral
2 camere
51,68 mp
Etaj 1 / 3
Apartament cu 2 camere decomandat, mobilat în Ultracentral
181.000 €
Oradea, Ultracentral
2 camere
76 mp
Etaj 1
Apartament cu 2 camere nedecomandat, mobilat în Ultracentral
155.000 € + TVA
Oradea, Ultracentral
2 camere
53 mp
Parter

Detalii de contact

IMMOSELL

Gligor Sorin Manager

IMMOSELL

Abonează-te la newsletter să fii primul care primește cele mai noi recomandări de proprietăți și sfaturi de la experți.

CONTACT

Creează alertă

Salvează căutarea ca să primești pe email ultimele anunțuri publicate

Apartamente noi cu 3 camere de vânzare în zona Ultracentral, Oradea