4

Apartament 3 camere de vânzare în proiectul rezidențial Smile – Etaj 2 77,5 mp

100.700 € + TVA

Pantelimon, Județul Ilfov

Nr. cam.:
3
Sup. utilă:
77,5 mp
Etaj:
2 / 4
An constr.:
2024 (Finalizată)
  • • Comision 0%
  • • Locație exactă

Descriere apartament

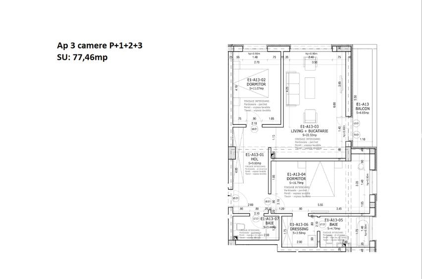
Vă propunem spre vânzare un apartament modern cu 3 camere, amplasat la etajul 2 într-un complex rezidențial deosebit – Smile. Locuința dispune de o suprafață utilă de 77,5mp, fiind ideală pentru o familie care își dorește confort și liniște într-o zonă foarte căutată. Detalii apartament: Suprafață utilă: 77,5 mp Compartimentare: 3 camere (living + 2 dormitoare) Bucătărie: Open space, ideală pentru petrecerea timpului în familie Baie: 2 băi, oferind confort suplimentar Încălzire: Încălzire în pardoseală, pentru un confort termic sporit Feronerii: Geamuri tripan pentru o izolare fonică și termică excelentă Utilități: Toate utilitățile necesare (gaz, curent electric, canalizare), centrală proprie Apartamentul se află într-o locație excelentă, aproape de facilități esențiale: școli, grădinițe, magazine, transport în comun și zone de recreere. Preț: 100700euro + TVA Pentru detalii suplimentare sau pentru programarea unei vizionări, nu ezitați să ne contactați!
Citește mai mult Citește mai puțin
Confort 1 Decomandat Nemobilat 1 Balcon / Terasă / Logie Curte comună Centrală proprie Încălzire prin pardoseală Bine întreținut (Bună)

Detalii apartament

ID anunț: X6NJ000AR Copiat! 248894244 Copiat!
Actualizat în: 24 Septembrie 2025
Nr. bucătării: 1
Nr. băi: 2
Structură rezistență: Beton
Tip imobil: Bloc de apartamente
Regim înălțime: P+4E

Utilități

Pereți
Vopsea lavabilă
Podele
Gresie Parchet
Ușă intrare
Metal
Uși interior
Celulare
Izolații termice
Exterior Interior
Ferestre cu geam termopan
PVC
Diverse
Telecomandă poartă acces auto
Facilități imobil
Lift Interfon
Utilități
Curent Apă Canalizare Gaze CATV
Internet
Fibră optică
Amenajare străzi
Asfaltate Iluminat stradal Mijloace de transport în comun
Comision
0%

Alte detalii despre preț:

+ TVA

Puncte de interes

Mijloace transport
bus-station
Statia Pupitrului, Linia 246
Stații autobuz aprox. 1616 m
bus-station
Policolor 2, Linia 246
Stații autobuz aprox. 1632 m
bus-station
Statia Darabani, Linia 246
Stații autobuz aprox. 1633 m
metro-station
Metrorex.Stația Pantelimon (M1)(1990)
Stații metrou aprox. 1988 m
Școală
school
GRADINITA DE STAT
Școli aprox. 1240 m
school
Scoala Nr. 78
Școli aprox. 1682 m
school
Scoala Generala nr. 78
Școli aprox. 1693 m
school
The International School of Bucharest
Școli aprox. 1707 m
Recreere
supermarket
Mega Image Pantelimon
Supermarket aprox. 379 m
restaurant
MAKebap
Restaurant aprox. 818 m
park
Parc
Parcuri aprox. 1051 m
sports-ground
Teren sportiv
Terenuri sport aprox. 1935 m

Detalii despre preț și costuri

Prețul pe piață

Preț cerut: 100.700 €

Preț min. zonă
Preț max. zonă

62% dintre proprietățile similare ca zonă și nr. camere au prețul cerut mai mare. mai multe...

Bine de știut: prețul unei proprietăți este influențat și de alte caracteristici, cum ar fi: vechime, localizare, vecinătăți, suprafață, compartimentare, amenajări, dotări, etc. mai puțin...

Insight premium disponibil după login

Costuri cu achiziția

Fără credit
Credit ipotecar
Noua casă

i

Costuri adiționale mai puțin știute la achiziție: taxe notariale, comisioane etc.

Insight premium disponibil după login

Proprietăți recomandate

Detalii de contact

Alpha Dezvoltari Proprietati Imobiliare

George Popescu Consultant Imobiliar

Alpha Dezvoltari Proprietati Imobiliare

Abonează-te la newsletter să fii primul care primește cele mai noi recomandări de proprietăți și sfaturi de la experți.

CONTACT

Creează alertă

Salvează căutarea ca să primești pe email ultimele anunțuri publicate

Apartamente noi cu 3 camere de vânzare în Pantelimon, Județul Ilfov