VANZARE | 2 CAMERE | MIHAI BRAVU

120.000 €

Mihai Bravu, Ploiești

Nr. cam.:
2
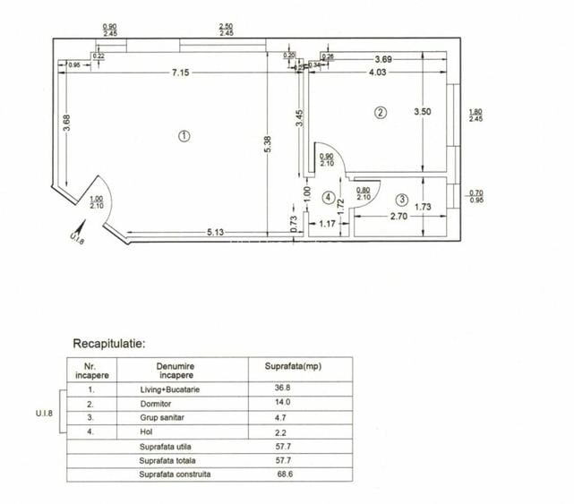
Sup. utilă:
58 mp
Etaj:
2 / 2
Tip prop.:
Bloc de apartamente
  • • Locație exactă

Descriere apartament

VIT PROPERTIES Apartament modern de 2 camere, situat într-un imobil nou din Ploiești O alegere ideală pentru locuință personală sau investiție sigură. Se oferă posibilitatea de personalizare completă în funcție de preferințele viitorului proprietar. Caracteristici principale: -Suprafață utilă: 58 mp -Compartimentare: 2 camere -Centrală proprie + încălzire în pardoseală -Tâmplărie premium Salamander, 7 camere, geam tripan -Finisaje la alegere – îți personalizezi locuința exact cum vrei Detalii imobil: Regim de înălțime: S+P+2E Construcție pe cadre de beton, compartimentare din cărămidă Subsol prevăzut cu adăpost ALA Casa scării finisată modern: granit + balustradă inox Beneficii incluse: Boxă generoasă la subsol – 10 mp Sistem fotovoltaic propriu (3 kW) + invertor Loc de parcare suprateran inclus Preț: 120.000 € Apartamentul oferă un standard ridicat de calitate, costuri reduse de întreținere și libertatea de a-l amenaja exact pe gustul tău. Pentru mai multe detalii sau programarea unei vizionări, echipa VIT PROPERTIES îți stă la dispoziție.
Citește mai mult Citește mai puțin
Semidecomandat Aer condiționat Alte metode electrice Centrală proprie Convector gaz Încălzire prin pardoseală

Detalii apartament

ID anunț: XGBA0000A Copiat! 275393330 Copiat!
Actualizat în: 02 Aprilie 2026
Nr. bucătării: 1
Nr. băi: 1
Regim înălțime: P+2E

Utilități

Utilități
CATV Gaze Telefon internațional Telefon Curent Canalizare Apă Panouri solare
Internet
Cablu Wireless
Amenajare străzi
Asfaltate Betonate Iluminat stradal Mijloace de transport în comun

Puncte de interes

Mijloace transport
bus-station
Traseul 104
Stații autobuz aprox. 661 m
tram-station
Statie
Stații tramvai aprox. 702 m
tram-station
Statie
Stații tramvai aprox. 702 m
bus-station
5 - Mihai Bravu
Stații autobuz aprox. 741 m
Școală
school
Scoala nr.9
Școli aprox. 468 m
school
Scoala Sf. Vineri
Școli aprox. 709 m
school
Inspectoratul Scolar
Școli aprox. 781 m
school
Spiru Haret
Școli aprox. 788 m
Recreere
restaurant
Hanul Gazarilor
Restaurant aprox. 190 m
park
Parc
Parcuri aprox. 360 m
supermarket
Amicii 2
Supermarket aprox. 650 m
sports-ground
Teren sportiv
Terenuri sport aprox. 938 m

Detalii despre preț și costuri

Prețul pe piață

Preț cerut: 120.000 €

Preț min. zonă 35.500 €
Preț max. zonă 95.000 €

i

Proprietate cu prețul cerut în afara intervalului mai multe...

Posibile explicații pentru faptul că prețul proprietății este peste cel maxim: imobil nou cu suprafață mare, are dotări și finisaje de lux.
Bine de știut: prețul unei proprietăți este influențat și de alte caracteristici, cum ar fi: vechime, localizare, vecinătăți, suprafață, compartimentare, amenajări, dotări, etc.

Costuri cu achiziția

Fără credit
7.025 RON
Credit ipotecar
8.647 RON
Noua casă
752 RON+ taxe notariale

i

Costuri adiționale mai puțin știute la achiziție: taxe notariale, comisioane etc.

Proprietăți similare

Apartament cu 3 camere decomandat în Mihai Bravu
125.000 €
Ploiești, Mihai Bravu
3 camere
77 mp
Etaj 2 / 6
Apartament cu 2 camere semidecomandat în Mihai Bravu
120.000 €
Ploiești, Mihai Bravu
2 camere
58 mp
Etaj 2
Apartament cu 3 camere decomandat, mobilat în Mihai Bravu
120.000 €
Ploiești, Mihai Bravu
3 camere
71 mp
Etaj 2 / 6

Detalii de contact

Abonează-te la newsletter să fii primul care primește cele mai noi recomandări de proprietăți și sfaturi de la experți.

CONTACT

Creează alertă

Salvează căutarea ca să primești pe email ultimele anunțuri publicate

Apartamente cu 2 camere de vânzare în zona Mihai Bravu, Ploiești