7

Vanzare Apartament 2 Camere zona Nord, Ploiesti

44.900 €

Nord, Ploiești

Nr. cam.:
2
Sup. utilă:
42,5 mp
Etaj:
2 / 4
An constr.:
1970
  • • Locație aproximativă

Descriere apartament

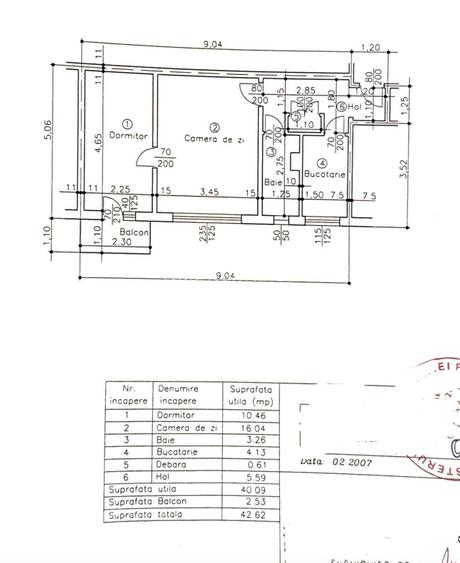
Se oferă spre vânzare un apartament de 2 camere, situat la etajul 2 într-un bloc reabilitat termic, într-o zonă liniștită. Apartamentul are o suprafață utilă de 40 mp, la care se adaugă un balcon închis de 2,5 mp. Caracteristici: Compartimentare: living, dormitor, bucătărie, baie, hol Balcon închis cu geam termopan – 2,5 mp Etaj: 2 din 4 Bloc izolat termic Scara blocului recent renovată (martie 2025) Îmbunătățiri: Geamuri termopan (inclusiv balcon) Ușă metalică la intrare Centrală proprie – revizie și acte la zi Tablou electric schimbat Bloc și amplasament: Situat într-o zonă liniștită Acces facil la mijloace de transport, magazine și alte facilități Preț: 44900 euro Pentru mai multe detalii sau vizionare, vă rog să mă contactați. Comisionul agenției 2% din prețul de tranzacționare.
Citește mai mult Citește mai puțin
1 Balcon / Terasă / Logie Centrală proprie

Detalii apartament

ID anunț: XFON00000 Copiat! 255749082 Copiat!
Actualizat în: 04 Februarie 2026
Nr. bucătării: 1
Nr. băi: 1
Structură rezistență: Beton
Tip imobil: Bloc de apartamente
Regim înălțime: P+4E

Utilități

Destinație
Rezidențial
Pereți
Faianță Vopsea lavabilă
Podele
Gresie Parchet
Ușă intrare
Metal
Izolații termice
Exterior
Ferestre cu geam termopan
PVC
Contorizare
Contor gaz Apometre
Alte spații utile
Debara
Facilități imobil
Interfon
Utilități
Curent Apă Canalizare Telefon
Amenajare străzi
Asfaltate

Puncte de interes

Mijloace transport
bus-station
Mestesugaresc
Stații autobuz aprox. 340 m
bus-station
Cina
Stații autobuz aprox. 660 m
tram-station
Mihai Viteazul
Stații tramvai aprox. 1118 m
tram-station
Colinii
Stații tramvai aprox. 1241 m
Școală
school
Scoala Sf. Andrei
Școli aprox. 622 m
kindergarten
Gradinita
Gradinițe aprox. 682 m
kindergarten
Gradinita Raza de soare
Gradinițe aprox. 689 m
school
Scoala nr. 23
Școli aprox. 722 m
Recreere
park
Parc
Parcuri aprox. 336 m
supermarket
Complexul Mic
Supermarket aprox. 637 m
restaurant
Fortuna bet
Restaurant aprox. 711 m
sports-ground
Teren sportiv
Terenuri sport aprox. 1769 m

Detalii despre preț și costuri

Prețul pe piață

Preț cerut: 44.900 €

Preț min. zonă 35.000 €
Preț max. zonă 72.752 €

58% dintre proprietățile similare ca zonă și nr. camere au prețul cerut mai mare. mai multe...

Bine de știut: prețul unei proprietăți este influențat și de alte caracteristici, cum ar fi: vechime, localizare, vecinătăți, suprafață, compartimentare, amenajări, dotări, etc. mai puțin...

Costuri cu achiziția

Fără credit
3.306 RON
Credit ipotecar
4.416 RON
Noua casă
369 RON+ taxe notariale

i

Costuri adiționale mai puțin știute la achiziție: taxe notariale, comisioane etc.

Proprietăți recomandate

Detalii de contact

Quantum Imob

Bogdan Preda

Quantum Imob

Abonează-te la newsletter să fii primul care primește cele mai noi recomandări de proprietăți și sfaturi de la experți.

CONTACT

Creează alertă

Salvează căutarea ca să primești pe email ultimele anunțuri publicate

Apartamente cu 2 camere de vânzare în zona Nord, Ploiești