Apartament 2 camere Ploiesti Nord Aleea Romanitei bloc anvelopat

50.000 €

Nord, Ploiești

Nr. cam.:
2
Sup. utilă:
50 mp
Etaj:
1 / 4
Tip prop.:
Bloc de apartamente
  • • Comision 0%
  • • Locație exactă

Descriere apartament

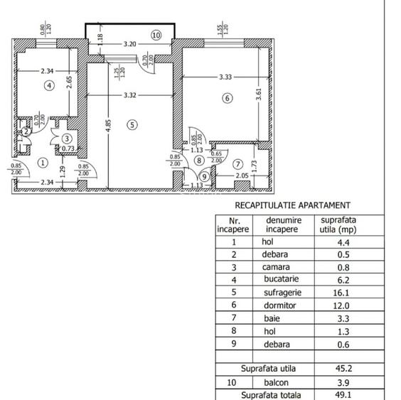
Sunt proprietar, persoana fizica. Nu colaborez cu agenti imobiliari! Apartamentul are o dimensiune de 49,1 mp, situat intr-o zona linistita, la etajul 1 intr-un bloc de 4 etaje anvelopat. Are un balcon, peretii sunt grosi, foarte multe spatii de depozitare si este semidecomandat. In apropiere sunt licee, gradinite si scoli, statii de transport in comun, supermarket-uri, restaurante, spatii de joaca, Spitalul Judetean este in apropiere la nici 5 min distanta, are parcare disponibila chiar in fata blocului. Anul constructiei este 1966. Locatie GPS: Aleea Romanitei nr.1
Citește mai mult Citește mai puțin
Confort 2 Semidecomandat

Detalii apartament

ID anunț: XVBD001J8 Copiat! 266738681 Copiat!
Actualizat în: 06 Noiembrie 2025
An construcție: Între 1941 și 1977
Regim înălțime: P+4E

Utilități

Comision
0%

Puncte de interes

Mijloace transport
bus-station
Mestesugaresc
Stații autobuz aprox. 480 m
bus-station
Cina
Stații autobuz aprox. 1009 m
tram-station
Mihai Viteazul
Stații tramvai aprox. 1483 m
tram-station
Colinii
Stații tramvai aprox. 1745 m
Școală
school
Liceul Constantin Dobrogeanu Gherea
Școli aprox. 112 m
kindergarten
Gradinita Raza de soare
Gradinițe aprox. 226 m
kindergarten
Gradinita
Gradinițe aprox. 233 m
school
Scoala Sf. Andrei
Școli aprox. 246 m
Recreere
park
Parc
Parcuri aprox. 145 m
supermarket
Complexul Mic
Supermarket aprox. 306 m
restaurant
Fortuna bet
Restaurant aprox. 393 m
pub
Cetate Nord
Pub aprox. 697 m

Detalii despre preț și costuri

Prețul pe piață

Preț cerut: 50.000 €

Preț min. zonă
Preț max. zonă

68% dintre proprietățile similare ca zonă și nr. camere au prețul cerut mai mare. mai multe...

Bine de știut: prețul unei proprietăți este influențat și de alte caracteristici, cum ar fi: vechime, localizare, vecinătăți, suprafață, compartimentare, amenajări, dotări, etc. mai puțin...

Insight premium disponibil după login

Costuri cu achiziția

Fără credit
Credit ipotecar
Noua casă

i

Costuri adiționale mai puțin știute la achiziție: taxe notariale, comisioane etc.

Insight premium disponibil după login

Proprietăți recomandate

Detalii de contact

Abonează-te la newsletter să fii primul care primește cele mai noi recomandări de proprietăți și sfaturi de la experți.

CONTACT

Creează alertă

Salvează căutarea ca să primești pe email ultimele anunțuri publicate

Apartamente cu 2 camere de vânzare în zona Nord, Ploiești