Apartament de lux,4 camere cartier Albert

130.000 €

Republicii, Ploiești

Nr. cam.:
4
Sup. utilă:
77 mp
Etaj:
1 / 4
An constr.:
2021 (În construcție)
  • • Locație exactă

Descriere apartament

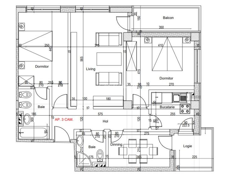
Genial Residence face parte din categoria selecta a ansamblurilor rezidentiale din Ploiesti, care respecta intru totul clientul final, mentinand tot timpul o calitate excelenta a lucrarilor.Cartierul rezidential #GenialResidence este dispus pe S + P + 4 etaje si este situat in zona de nord a orasului Ploiesti, in cartier Albert, unul dintre cele mai apreciate si cunoscute cartiere din oras. Aici vei gasi locul pe care il poti numi mai mult decat acasa. Esti departe de zgomotul orasului si totusi aproape de toate punctele de atractie. In plus, ajungi oriunde iti doresti instant, fara sa fie nevoie sa o iei pe rute ocolitoare iar in imediata apropiere gasesti supermarket-uri, scoli, mall-uri si tot ce ai nevoie pentru viata de zi cu zi. Facilitati: Cartierul rezidential Genial Residence este amplasat in apropierea celui mai mare mall din Ploiesti, oferindu-ti acces la mijloacele de transport in comun si la o multime de alte facilitati. Totodata accesul in ansamblu se realizeaza direct din Bulevardul Republicii. Camere 4 Suprafata construita totala 93mp Suprafata utila totala 77mp Suprafete Living: 18 mp Dormitor 1: 14 mp Dormitor 2: 14.45 mp Bucatarie: 6 mp Baie 1: 3.65 mp Baie 2: 6 mp Balcon: 4 mp Logie: 4 mp Hol: 8 mp Dinnig: 8 mp Finisaje: Parchet 10cm Usi interioare din lemn masiv de tei. Usa metalica la intrare. Geamuri tripan. Tamplarie Salamander. Feronerie Roto. Placi ceramice. Instalatii: Centrala termica Incalzire in pardoseala Pregatire Aer Conditionat Intrerupatoare si prize Utilitati contorizate individual
Citește mai mult Citește mai puțin
Confort lux Semidecomandat Nemobilat 2 Balcoane / Terase / Logii Centrală proprie Convector gaz Încălzire prin pardoseală

Detalii apartament

ID anunț: X9LT0000V Copiat! 1043284 Copiat!
Actualizat în: 06 Noiembrie 2023
Suprafață utilă totală: 91 mp
Suprafață construită: 93 mp
Nr. bucătării: 1
Nr. băi: 2
Structură rezistență: Beton
Tip imobil: Bloc de apartamente
Regim înălțime: S+P+4E

Utilități

Destinație
Rezidențial
Pereți
Vopsea lavabilă
Podele
Gresie Parchet
Ușă intrare
Metal
Uși interior
Lemn
Izolații termice
Exterior
Ferestre cu geam termopan
PVC
Contorizare
Contor căldură Contor gaz Apometre
Facilități imobil
Lift Videointerfon
Utilități
Curent Apă Canalizare Gaze CATV Telefon
Internet
Cablu Fibră optică Wireless
Amenajare străzi
Asfaltate Iluminat stradal Mijloace de transport în comun
Servicii imobil
Administrare Pază Supraveghere video

Vecinătăți:

Kauffland Nord,Shhopping city Ploiesti

Puncte de interes

Mijloace transport
bus-station
Km 5
Stații autobuz aprox. 517 m
bus-station
Gara Crang
Stații autobuz aprox. 1289 m
bus-station
8 Martie
Stații autobuz aprox. 1360 m
tram-station
Ofelia
Stații tramvai aprox. 1503 m
Școală
kindergarten
Gradinita Step by Step Licurici
Gradinițe aprox. 748 m
school
Scoala nr. 25 HM Berthelot
Școli aprox. 814 m
school
Scoala nr. 8 Grigore Moisil
Școli aprox. 857 m
kindergarten
Gradinita Raza de soare
Gradinițe aprox. 1384 m
Recreere
restaurant
Best
Restaurant aprox. 103 m
supermarket
Kaufland Ploiesti Nord
Supermarket aprox. 333 m
park
Parc
Parcuri aprox. 694 m
sports-ground
Teren sportiv
Terenuri sport aprox. 1673 m

Detalii despre preț și costuri

Prețul pe piață

Preț cerut: 130.000 €

Preț min. zonă 69.000 €
Preț max. zonă 150.000 €

96% dintre proprietățile similare ca zonă și nr. camere au prețul cerut mai mic. mai multe...

Bine de știut: prețul unei proprietăți este influențat și de alte caracteristici, cum ar fi: vechime, localizare, vecinătăți, suprafață, compartimentare, amenajări, dotări, etc. mai puțin...

Costuri cu achiziția

Fără credit
7.366 RON
Credit ipotecar
9.031 RON
Noua casă
802 RON+ taxe notariale

i

Costuri adiționale mai puțin știute la achiziție: taxe notariale, comisioane etc.

Proprietăți recomandate

Detalii de contact

Genial Group

Dan Leonard Dumitru

Genial Group
PRO

Abonează-te la newsletter să fii primul care primește cele mai noi recomandări de proprietăți și sfaturi de la experți.

CONTACT

Creează alertă

Salvează căutarea ca să primești pe email ultimele anunțuri publicate

Apartamente cu 4+ camere de vânzare în zona Republicii, Ploiești