4

Apartament 2 camere de vanzare, zona Vest - Lamaita, 40 mp #16711

58.000 €

Vest - Lamâița, Ploiești

Nr. cam.:
2
Sup. utilă:
40 mp
Etaj:
2 / 4
An constr.:
1972
  • • Locație exactă
Confort 2 Nedecomandat Mobilat Calorifere Termoficare

Detalii apartament

ID anunț: X2L8100UJ Copiat! 271267393 Copiat!
Actualizat în: 01 Aprilie 2026
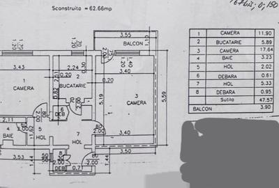
Suprafață construită: 48 mp
Nr. bucătării: 1
Nr. băi: 1
Tip imobil: Bloc de apartamente
Regim înălțime: P+4E

Utilități

Pereți
Vopsea lavabilă Faianță
Podele
Parchet Gresie
Ușă intrare
Metal
Uși interior
Lemn
Izolații termice
Exterior
Ferestre cu geam termopan
PVC
Contorizare
Apometre Contor gaz
Bucătărie
Mobilată Utilată
Facilități imobil
Interfon
Utilități
Curent Apă Canalizare Gaze CATV
Internet
Cablu
Amenajare străzi
Asfaltate Betonate Iluminat stradal Mijloace de transport în comun
Comision
negociabil

Alte detalii:

Apartament 2 camere cu suprafata de 40 mp.
COD OFERTA: MSH6740JN

Disponibilitate proprietate:

data_properties.property_availability.La data vanzarii

Puncte de interes

Mijloace transport
tram-station
Colinii
Stații tramvai aprox. 86 m
tram-station
Mihai Viteazul
Stații tramvai aprox. 263 m
bus-station
Mihai Viteazul
Stații autobuz aprox. 300 m
bus-station
Mihai Viteazul
Stații autobuz aprox. 319 m
Școală
school
Scoala nr. 14
Școli aprox. 256 m
school
Scoala nr. 13
Școli aprox. 439 m
kindergarten
Gradinita
Gradinițe aprox. 788 m
kindergarten
Gradinita Step by Step Licurici
Gradinițe aprox. 1655 m
Recreere
park
Parcul Mihai Viteazul
Parcuri aprox. 136 m
supermarket
Sirius
Supermarket aprox. 166 m
restaurant
Jerry's Pizza - Ploiesti
Restaurant aprox. 166 m
sports-ground
Teren sportiv
Terenuri sport aprox. 962 m

Detalii despre preț și costuri

Prețul pe piață

Preț cerut: 58.000 €

Preț min. zonă 37.000 €
Preț max. zonă 89.000 €

76% dintre proprietățile similare ca zonă și nr. camere au prețul cerut mai mic. mai multe...

Bine de știut: prețul unei proprietăți este influențat și de alte caracteristici, cum ar fi: vechime, localizare, vecinătăți, suprafață, compartimentare, amenajări, dotări, etc. mai puțin...

Costuri cu achiziția

Fără credit
4.123 RON
Credit ipotecar
5.336 RON
Noua casă
436 RON+ taxe notariale

i

Costuri adiționale mai puțin știute la achiziție: taxe notariale, comisioane etc.

Proprietăți recomandate

Detalii de contact

MARSHALL IMOBILIARE

VANZARI VANZARI

4.44(6 review-uri)

MARSHALL IMOBILIARE
PRO

Abonează-te la newsletter să fii primul care primește cele mai noi recomandări de proprietăți și sfaturi de la experți.

CONTACT

Creează alertă

Salvează căutarea ca să primești pe email ultimele anunțuri publicate

Apartamente cu 2 camere de vânzare în zona Vest - Lamâița, Ploiești