FINALIZAT ! Apartament tip Studio, vedere piscina, 3 min metrou Berceni

87.500 €

Popești-Leordeni, Județul Ilfov

Nr. cam.:
2
Sup. utilă:
45 mp
Etaj:
5
An constr.:
2025
  • • Locație aproximativă

Descriere apartament

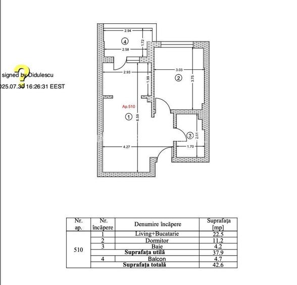
Apartament 2 camere tip studio, vedere partiala la piscina, finisaje noi, totul nou, liber imediat, mutare imediată, achiziția se poate face cu credit bancar sau plata cash. Incalzire in pardoseala, 2 lifturi, 2 parcuri, 2 piscine, acces la metrou in 3-4 minute.
Citește mai mult Citește mai puțin
Confort lux Decomandat 1 Balcon Grădină Curte Curte comună 1 Parcare

Detalii apartament

ID anunț: XA1A10482 Copiat! 271351331 Copiat!
Actualizat în: 20 Ianuarie 2026
Suprafață construită: 57 mp
Nr. bucătării: 1
Nr. băi: 1
Structură rezistență: Cărămidă
Tip imobil: Bloc de apartamente
Regim înălțime: P+7E
Nr. terase: 1

Utilități

Izolații termice
Exterior
Alte spații utile
WC Serviciu Terasă
Dotări imobil
Lift
Utilități
Curent Apă Canalizare CATV Gaze Telefon
Acces internet
Cablu
Amenajare străzi
Iluminat stradal Mijloace de transport în comun Asfaltate
Comision
standard

Disponibilitate proprietate:

Imediat

Puncte de interes

Mijloace transport
bus-station
Statia IMGB Poarta 2, linia 125, metrou M2
Stații autobuz aprox. 375 m
metro-station
Berceni (M2)
Stații metrou aprox. 398 m
bus-station
Statia IMGB Poarta 1 linia 125
Stații autobuz aprox. 648 m
metro-station
Dimitrie Leonida (M2)
Stații metrou aprox. 789 m
Școală
school
Colegiul Tehnic Miron Nicolescu
Școli aprox. 1163 m
school
Grupul Industrial "Dacia"
Școli aprox. 1833 m
school
Scoala Gimnaziala Speciala Sfantul Nicolae
Școli aprox. 1928 m
Recreere
supermarket
Nonni
Supermarket aprox. 72 m
park
Parc
Parcuri aprox. 371 m
restaurant
Pizza Italia
Restaurant aprox. 524 m
sports-ground
Teren sportiv
Terenuri sport aprox. 1463 m

Detalii despre preț și costuri

Prețul pe piață

Preț cerut: 87.500 €

Preț min. zonă 61.500 €
Preț max. zonă 120.000 €

81% dintre proprietățile similare ca zonă și nr. camere au prețul cerut mai mic. mai multe...

Bine de știut: prețul unei proprietăți este influențat și de alte caracteristici, cum ar fi: vechime, localizare, vecinătăți, suprafață, compartimentare, amenajări, dotări, etc. mai puțin...

Costuri cu achiziția

Fără credit
5.521 RON
Credit ipotecar
6.966 RON
Noua casă
586 RON+ taxe notariale

i

Costuri adiționale mai puțin știute la achiziție: taxe notariale, comisioane etc.

Proprietăți recomandate

Detalii de contact

MARVIS REZIDENTIAL SRL

Visan Marius Cosmin Manager

MARVIS REZIDENTIAL SRL
PRO

Abonează-te la newsletter să fii primul care primește cele mai noi recomandări de proprietăți și sfaturi de la experți.

CONTACT

Creează alertă

Salvează căutarea ca să primești pe email ultimele anunțuri publicate

Apartamente cu 2 camere de vânzare în Popești-Leordeni, Județul Ilfov