Metrou Berceni, 2 camere mobilat cu balcon

91.900 €

Popești-Leordeni, Județul Ilfov

Nr. cam.:
2
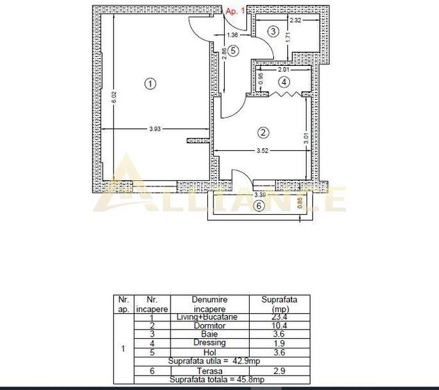
Sup. utilă:
46 mp
Etaj:
Parter / 4
An constr.:
2025 (Finalizată)
  • • Locație aproximativă
  • • Vizionare prin apel video

Descriere apartament

Vanzare apartament cu 2 camere mobilat si utilat, pe parter inalt cu balcon, la doar cateva minute fata de metrou Berceni. In imediata apropiere avem magazine, scoli, farmacie, centre comerciale, statii de autobuz. Pret 91900 euro, complet mobilat si utilat..
Citește mai mult Citește mai puțin
Decomandat 1 Balcon / Terasă / Logie Centrală proprie

Detalii apartament

ID anunț: XCSE00HDK Copiat! 274617334 Copiat!
Actualizat în: 02 Martie 2026
Suprafață utilă totală: 46 mp
Suprafață construită: 46 mp
Nr. bucătării: 1
Nr. băi: 1
Structură rezistență: Altele
Tip imobil: Bloc de apartamente
Regim înălțime: P+4E

Utilități

Destinație
Rezidențial
Alte spații utile
Terasă
Facilități imobil
Lift Videointerfon

Puncte de interes

Mijloace transport
metro-station
Berceni (M2)
Stații metrou aprox. 170 m
bus-station
Statia IMGB Poarta 2, linia 125, metrou M2
Stații autobuz aprox. 181 m
bus-station
Sos. Berceni 104, linia 125
Stații autobuz aprox. 740 m
metro-station
Dimitrie Leonida (M2)
Stații metrou aprox. 955 m
Școală
school
Colegiul Tehnic Miron Nicolescu
Școli aprox. 1310 m
Recreere
supermarket
Nonni
Supermarket aprox. 336 m
park
Parc
Parcuri aprox. 571 m
sports-ground
Teren sportiv
Terenuri sport aprox. 1728 m
hypermarket
Metro Berceni
Hipermarket aprox. 1982 m

Detalii despre preț și costuri

Prețul pe piață

Preț cerut: 91.900 €

Preț min. zonă
Preț max. zonă

85% dintre proprietățile similare ca zonă și nr. camere au prețul cerut mai mic. mai multe...

Bine de știut: prețul unei proprietăți este influențat și de alte caracteristici, cum ar fi: vechime, localizare, vecinătăți, suprafață, compartimentare, amenajări, dotări, etc. mai puțin...

Insight premium disponibil după login

Costuri cu achiziția

Fără credit
Credit ipotecar
Noua casă

i

Costuri adiționale mai puțin știute la achiziție: taxe notariale, comisioane etc.

Insight premium disponibil după login

Proprietăți similare

Apartament cu 3 camere decomandat în Central
89.400 € + TVA
Județul Ilfov, Popești-Leordeni
3 camere
69 mp
Etaj 2 / 3
Apartament cu 2 camere decomandat, mobilat în Central
100.000 €
Județul Ilfov, Popești-Leordeni
2 camere
54 mp
Etaj 2
Apartament cu 2 camere decomandat în Central
89.000 €
Județul Ilfov, Popești-Leordeni
2 camere
45 mp
Etaj 1 / 7

Detalii de contact

ALLIANCE REZIDENTIAL IMOBILIARE

Sergiu Tudora Consilier Imobiliar

2.09(4 review-uri)

ALLIANCE REZIDENTIAL IMOBILIARE
PRO

Abonează-te la newsletter să fii primul care primește cele mai noi recomandări de proprietăți și sfaturi de la experți.

CONTACT

Creează alertă

Salvează căutarea ca să primești pe email ultimele anunțuri publicate

Apartamente noi cu 2 camere de vânzare în Popești-Leordeni, Județul Ilfov