Apartament 2 camere de vanzare – 4 minute metrou Berceni | Incalzire in pardosea

114.400 €

Popești-Leordeni, Județul Ilfov

Nr. cam.:
2
Sup. utilă:
57 mp
Etaj:
4 / 7
An constr.:
2026 (Finalizată)
  • • Locație exactă
  • • Vizionare prin apel video

Descriere apartament

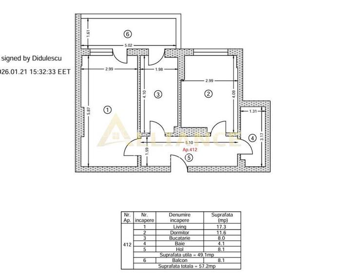
Va propun spre vanzare un apartament modern cu 2 camere, situat la doar 4 minute de statia de metrou Berceni, intr-un ansamblu rezidential nou, complet finalizat, pe strada Biruintei nr. 81, Popesti-Leordeni. ?? Detalii proprietate: Suprafata utila: 57 mp Compartimentare: decomandat Etaj: 4 din 7 Bloc finalizat, cu finisaje moderne ?? Confort si dotari: Incalzire in pardoseala – eficienta si confort sporit Spatii bine compartimentate, luminoase Finisaje de calitate ?? Facilitati ansamblu: Piscine pentru relaxare Parc privat – ideal pentru plimbari si timp liber Acces facil la mijloace de transport, magazine si servicii ?? Localizare excelenta: La doar 4 minute de metrou Berceni Zona in plina dezvoltare, ideala atat pentru locuit, cat si pentru investitie Pentru mai multe detalii sau programarea unei vizionari, nu ezitati sa ma contactati!
Citește mai mult Citește mai puțin
Confort 1 Decomandat

Detalii apartament

ID anunț: XCSE00JAH Copiat! 275349853 Copiat!
Actualizat în: 25 Martie 2026
Suprafață utilă totală: 57 mp
Suprafață construită: 57 mp
Nr. băi: 1
Structură rezistență: Altele
Tip imobil: Bloc de apartamente
Regim înălțime: P+7E

Utilități

Destinație
Rezidențial

Puncte de interes

Mijloace transport
bus-station
Statia IMGB Poarta 2, linia 125, metrou M2
Stații autobuz aprox. 388 m
metro-station
Berceni (M2)
Stații metrou aprox. 403 m
bus-station
Statia IMGB Poarta 1 linia 125
Stații autobuz aprox. 711 m
metro-station
Dimitrie Leonida (M2)
Stații metrou aprox. 850 m
Școală
school
Colegiul Tehnic Miron Nicolescu
Școli aprox. 1225 m
school
Grupul Industrial "Dacia"
Școli aprox. 1879 m
school
Scoala Gimnaziala Speciala Sfantul Nicolae
Școli aprox. 1978 m
Recreere
supermarket
Nonni
Supermarket aprox. 96 m
park
Parc
Parcuri aprox. 431 m
restaurant
Pizza Italia
Restaurant aprox. 549 m
sports-ground
Teren sportiv
Terenuri sport aprox. 1476 m

Detalii despre preț și costuri

Prețul pe piață

Preț cerut: 114.400 €

Preț min. zonă 61.500 €
Preț max. zonă 120.000 €

86% dintre proprietățile similare ca zonă și nr. camere au prețul cerut mai mic. mai multe...

Bine de știut: prețul unei proprietăți este influențat și de alte caracteristici, cum ar fi: vechime, localizare, vecinătăți, suprafață, compartimentare, amenajări, dotări, etc. mai puțin...

Costuri cu achiziția

Fără credit
6.787 RON
Credit ipotecar
8.385 RON
Noua casă
723 RON+ taxe notariale

i

Costuri adiționale mai puțin știute la achiziție: taxe notariale, comisioane etc.

Proprietăți similare

Apartament cu 3 camere semidecomandat în Central
103.900 € + TVA
Județul Ilfov, Popești-Leordeni
3 camere
64,3 mp
Etaj 1
Apartament cu 2 camere decomandat în Central
122.000 €
Județul Ilfov, Popești-Leordeni
2 camere
53,6 mp
Etaj 2
Apartament cu 3 camere decomandat, mobilat în Central
108.000 €
Județul Ilfov, Popești-Leordeni
3 camere
65 mp
Etaj 2

Detalii de contact

ALLIANCE REZIDENTIAL IMOBILIARE

Marius Nicolae Consilier Imobiliar

4.11(3 review-uri)

ALLIANCE REZIDENTIAL IMOBILIARE
PRO

Abonează-te la newsletter să fii primul care primește cele mai noi recomandări de proprietăți și sfaturi de la experți.

CONTACT

Creează alertă

Salvează căutarea ca să primești pe email ultimele anunțuri publicate

Apartamente noi cu 2 camere de vânzare în Popești-Leordeni, Județul Ilfov