Apartament 2 camere bloc nou in apropiere de Metrou

92.000 €

Popești-Leordeni, Județul Ilfov

Nr. cam.:
2
Sup. utilă:
52 mp
Etaj:
4 / 6
An constr.:
2022 (Finalizată)
  • • Locație aproximativă
  • • Vizionare prin apel video

Descriere apartament

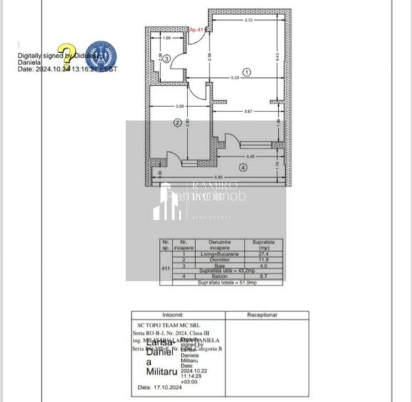
De vânzare – Apartament 2 camere tip studio | Str. Biruintei nr 7 Se oferă spre vânzare un apartament modern cu 2 camere tip studio, situat pe strada Biruintei nr 7,, într-o zonă liniștită, în apropierea campusului școlar și la aproximativ 15 minute de mers pe jos de stațiile de metrou Berceni și Dimitrie Leonida. Locuința este nouă, finalizată 2022 se vinde mobilata si utilata, fiind ideală atât pentru locuit, cât și pentru investiție. - Etaj: 4/6, bloc cu lift -Suprafață totală: 52 mp (inclusiv terasă) -Dotări și finisaje premium: -centrală termică proprie -parchet laminat -posibilitate achizitionare sau inchiriere loc parcare -wc incastrat Pentru mai multe detalii, vizionări sau oferte similare, contactați-mă! Gabriel Oferim suport complet în relația cu banca, cu acces la cele mai bune oferte de finanțare, precum și asistență notarială la cele mai bune prețuri. Comision standard
Citește mai mult Citește mai puțin
Confort 1 Decomandat 1 Balcon / Terasă / Logie

Detalii apartament

ID anunț: XCRN104TS Copiat! 275459911 Copiat!
Actualizat în: 21 Aprilie 2026
Suprafață construită: 62 mp
Nr. bucătării: 1
Nr. băi: 1
Structură rezistență: Cărămidă
Tip imobil: Bloc de apartamente
Regim înălțime: P+6E

Utilități

Utilități
Curent Apă Canalizare
Comision
standard

Disponibilitate proprietate:

Imediat

Puncte de interes

Mijloace transport
metro-station
Berceni (M2)
Stații metrou aprox. 894 m
bus-station
Statia IMGB Poarta 2, linia 125, metrou M2
Stații autobuz aprox. 897 m
bus-station
Statia IMGB Poarta 1 linia 125
Stații autobuz aprox. 1138 m
metro-station
Dimitrie Leonida (M2)
Stații metrou aprox. 1234 m
Școală
school
Colegiul Tehnic Miron Nicolescu
Școli aprox. 1607 m
school
Scoala nr. 2
Școli aprox. 1630 m
school
Scoala cu clasele I-VIII nr. 2
Școli aprox. 1630 m
school
Grupul Industrial "Dacia"
Școli aprox. 1979 m
Recreere
supermarket
Nonni
Supermarket aprox. 540 m
restaurant
La Florin
Restaurant aprox. 629 m
park
Parc
Parcuri aprox. 843 m
sports-ground
Teren sportiv
Terenuri sport aprox. 1279 m

Detalii despre preț și costuri

Prețul pe piață

Preț cerut: 92.000 €

Preț min. zonă
Preț max. zonă

65% dintre proprietățile similare ca zonă și nr. camere au prețul cerut mai mic. mai multe...

Bine de știut: prețul unei proprietăți este influențat și de alte caracteristici, cum ar fi: vechime, localizare, vecinătăți, suprafață, compartimentare, amenajări, dotări, etc. mai puțin...

Insight premium disponibil după login

Costuri cu achiziția

Fără credit
Credit ipotecar
Noua casă

i

Costuri adiționale mai puțin știute la achiziție: taxe notariale, comisioane etc.

Insight premium disponibil după login

Proprietăți similare

Apartament cu 2 camere semidecomandat în Central
89.500 €
Județul Ilfov, Popești-Leordeni
2 camere
35,05 mp
Etaj 3
Apartament cu 2 camere decomandat în Sud-Vest
101.000 €
Județul Ilfov, Popești-Leordeni
2 camere
55 mp
Parter
Apartament cu 2 camere decomandat în Central
90.000 €
Județul Ilfov, Popești-Leordeni
2 camere
54,5 mp
Parter / 2

Detalii de contact

Ramiro Imob

Gabriel Mihaila Agent Imobiliar

Ramiro Imob
PRO

Abonează-te la newsletter să fii primul care primește cele mai noi recomandări de proprietăți și sfaturi de la experți.

CONTACT

Creează alertă

Salvează căutarea ca să primești pe email ultimele anunțuri publicate

Apartamente noi cu 2 camere de vânzare în Popești-Leordeni, Județul Ilfov