Apartament 2camere decomandat 50mp Popesti Leordeni -Soseaua Oltenitei

97.980 €

Popești-Leordeni, Județul Ilfov

Nr. cam.:
2
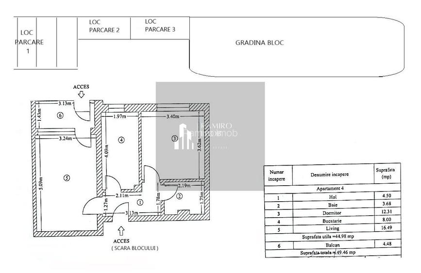
Sup. utilă:
50 mp
Etaj:
Parter / 4
An constr.:
2019 (Finalizată)
  • • Locație aproximativă

Descriere apartament

Vă propunem spre vânzare un apartament de 2 camere, decomandat, cu o mica curte in fata, situat pe Soseaua Oltenitei, la 2 statii Stb de Primaria Popesti. - suprafata utila 50 mp, decomandat, 2 camere - etaj -parter inalt, balcon inchis, curte mica in proprietate-in fata balconului (2 locuri de parcare si zona de acces cimentata de proprietar) - bloc 2019 - solid, bine construit, anvelopat - centrala de apartament - mobilat si utilat, renovat, gata de mutat - instalații electrice și sanitare in stare foarte buna - nu sunt probleme cu umezeala, infiltratii - scara curata, supraveghere video, vecini civilizati fara datorii - magazine, sali de sport, scoli, gradinite in apropiere. - Statii Stb in fata - 439, 479 - loc de parcare - se poate negocia si achizitia rulotei din poze - in stare foarte buna Apartamentul este situat într-o zona centrala, moderna, bine dezvoltata, cu toate facilitatile la îndemana. O oferta excelenta pentru o familie care are nevoie de un apartament modern, gata de mutat si de o mica curte in fata. Pentru mai multe detalii - Cornel - Se acceptă si achiziția prin credit bancar. Agentia Imobiliara – Ramiro Imob Comision Standard Oferim suport în relația cu banca, cu acces la cele mai bune oferte de finanțare, precum și asistență in relatia cu notariatul.
Citește mai mult Citește mai puțin
Confort 1 Decomandat Mobilat 1 Balcon / Terasă / Logie Aer condiționat Calorifere Centrală imobil 3 Parcări

Detalii apartament

ID anunț: XCRN104O0 Copiat! 275441684 Copiat!
Actualizat în: 16 Aprilie 2026
Suprafață construită: 65 mp
Nr. bucătării: 1
Nr. băi: 1
Structură rezistență: Beton
Tip imobil: Bloc de apartamente
Regim înălțime: P+4E

Utilități

Pereți
Faianță Vopsea lavabilă
Podele
Gresie Parchet
Ușă intrare
Metal
Uși interior
Lemn
Izolații termice
Exterior
Ferestre cu geam termopan
Aluminiu
Contorizare
Apometre Contor gaz
Bucătărie
Mobilată Utilată
Electrocasnice
Aragaz
Facilități imobil
Interfon Spații agrement
Utilități
Curent Apă Canalizare CATV Gaze Telefon
Internet
Cablu
Servicii imobil
Supraveghere video
Amenajare străzi
Iluminat stradal Mijloace de transport în comun Asfaltate
Comision
standard

Vecinătăți:

Soseaua Oltenitei, Popesti Leordeni

Disponibilitate proprietate:

Imediat

Puncte de interes

Mijloace transport
bus-station
Facului
Stații autobuz aprox. 178 m
bus-station
Viilor
Stații autobuz aprox. 196 m
bus-station
Viscofil
Stații autobuz aprox. 465 m
bus-station
Prestige
Stații autobuz aprox. 1667 m
Școală
school
Scoala nr. 1
Școli aprox. 675 m
school
Scoala nr. 2
Școli aprox. 681 m
school
Scoala cu clasele I-VIII nr. 2
Școli aprox. 681 m
school
Liceul Teoretic Radu Popescu
Școli aprox. 704 m
Recreere
park
Parc
Parcuri aprox. 645 m
restaurant
Casa Teca
Restaurant aprox. 739 m
supermarket
Mega Image
Supermarket aprox. 805 m
sports-ground
Teren sportiv
Terenuri sport aprox. 880 m

Detalii despre preț și costuri

Prețul pe piață

Preț cerut: 97.980 €

Preț min. zonă
Preț max. zonă

75% dintre proprietățile similare ca zonă și nr. camere au prețul cerut mai mic. mai multe...

Bine de știut: prețul unei proprietăți este influențat și de alte caracteristici, cum ar fi: vechime, localizare, vecinătăți, suprafață, compartimentare, amenajări, dotări, etc. mai puțin...

Insight premium disponibil după login

Costuri cu achiziția

Fără credit
Credit ipotecar
Noua casă

i

Costuri adiționale mai puțin știute la achiziție: taxe notariale, comisioane etc.

Insight premium disponibil după login

Proprietăți similare

Apartament cu 2 camere decomandat, mobilat în Sud-Est
88.900 €
Județul Ilfov, Popești-Leordeni
2 camere
60,17 mp
Etaj 11 / 11
Apartament cu 2 camere decomandat în Sud-Est
98.700 € + TVA
Județul Ilfov, Popești-Leordeni
2 camere
49,2 mp
Etaj 1 / 6
Apartament cu 2 camere decomandat în Sud-Est
100.500 € + TVA
Județul Ilfov, Popești-Leordeni
2 camere
52,1 mp
Etaj 7

Detalii de contact

Ramiro Imob

Cornel Ion Agent Imobiliar

4.00(3 review-uri)

Ramiro Imob
PRO

Abonează-te la newsletter să fii primul care primește cele mai noi recomandări de proprietăți și sfaturi de la experți.

CONTACT

Creează alertă

Salvează căutarea ca să primești pe email ultimele anunțuri publicate

Apartamente cu 2 camere de vânzare în Popești-Leordeni, Județul Ilfov