2

Bunloc Club Residence 3 Camere Comision 0%

143.813 € + TVA

Săcele, Județul Brașov

Nr. cam.:
2
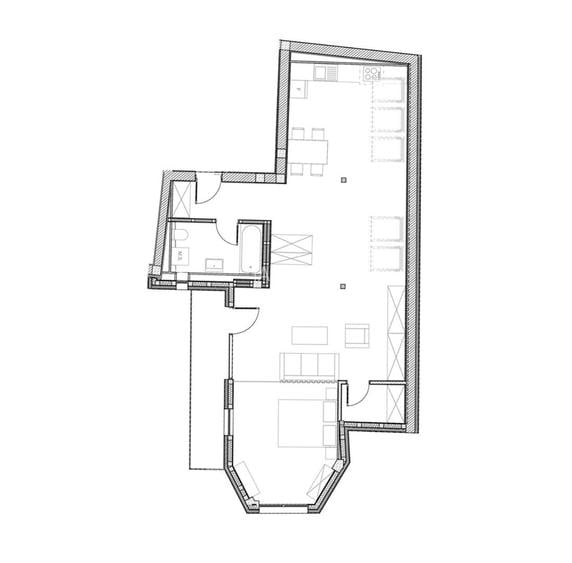
Sup. utilă:
70,35 mp
Etaj:
2 / 2
An constr.:
2024 (În construcție)
  • • Comision 0%
  • • Exclusivitate
  • • Locație exactă
  • • Vizionare prin apel video

Descriere apartament

Bunloc Club Residence reprezintă un concept arhitectural unic situat într-o zona ecologicǎ, la poalele Masivului Piatra Mare. Exclusivitatea este data de amplasarea locației care combina prezenta naturii in spațiul urban cu vedere spre masivul Postavarul, Piatra Mare si către Munții Bucegi. Conceptul modern include materiale de construcție premium combinând inovația cu tehnologia.. Regimul mic de înălțime al clădirii aduc un sentiment plăcut de siguranță, creat pentru cei care apreciază confortul, discreția într-o comunitate restrânsă. Fiecare apartament a fost proiectat meticulos pentru a maximiza spațiul si lumina naturală . De la finisaje elegante și moderne până la materiale de înaltă calitate, fiecare detaliu a fost atent luat în considerare pentru a crea o atmosferă calda și primitoare. Detalii tehinice: Fundatia este din beton. Structura de rezistenta este din beton armat Termoizolatia este realizată cu vata bazaltica Încalzirea prin pardoseala cu centrala proprie Tamplarie PVC de la Veka cu 3 foi de sticla. Prețul afișat este pentru varianta de plată integrală în avans. Pentru alte forme de plată, acesta va suferi anumite modificări. Fiecare imobil poate beneficia de: - Loc de parcare suprateran 6.500 euro, + TVA - Loc de parcare Subteran 12.000 euro + TVA - Bixa 2.700 euro + TVA PREDARE Decembrie 2024 *IADVISE AGENT EXCLUSIV *COMISION CUMPARATOR 0%
Citește mai mult Citește mai puțin
Confort 1 Decomandat Nemobilat Curte Curte comună Zonă de deal / munte

Detalii apartament

ID anunț: X6T7101M3 Copiat! 240071336 Copiat!
Actualizat în: 15 Aprilie 2026
Suprafață construită: 90 mp
Nr. bucătării: 1
Nr. băi: 1
Structură rezistență: Cărămidă
Tip imobil: Bloc de apartamente
Regim înălțime: P+2E
Nr. terase: 1

Utilități

Destinație
Rezidențial
Pereți
Faianță Vopsea lavabilă
Podele
Gresie Parchet
Ușă intrare
Metal
Uși interior
Celulare
Izolații termice
Exterior
Contorizare
Apometre Contor gaz
Alte spații utile
Terasă
Facilități imobil
Interfon Videointerfon
Utilități
Curent Apă Canalizare CATV Gaze Telefon
Internet
Cablu Wireless
Amenajare străzi
Iluminat stradal Mijloace de transport în comun Asfaltate
Comision
0%

Disponibilitate proprietate:

Imediat

Puncte de interes

Mijloace transport
bus-station
Statia Pantex, linia 17barat
Stații autobuz aprox. 1245 m
train-station
Brasov Darste
Stații tren aprox. 1502 m
bus-station
Dirste
Stații autobuz aprox. 1502 m
bus-station
Statia Aurora Darste, linia 17barat
Stații autobuz aprox. 1545 m
Școală
school
Scoala
Școli aprox. 272 m
school
Scoala generala nr 21
Școli aprox. 1357 m
kindergarten
Gradinita Ruxy
Gradinițe aprox. 1671 m
kindergarten
Gradinita cu program normal nr. 21 SG (fosta nr. 68)
Gradinițe aprox. 1828 m
Recreere
restaurant
Corleone
Restaurant aprox. 773 m
cafe
Mol Shop
Cafenea aprox. 807 m
sports-ground
Teren sportiv
Terenuri sport aprox. 1896 m
sports-ground
Teren sportiv
Terenuri sport aprox. 1978 m

Detalii despre preț și costuri

Prețul pe piață

Preț cerut: 143.813 €

Preț min. zonă
Preț max. zonă

i

Proprietate cu prețul cerut în afara intervalului mai multe...

Posibile explicații pentru faptul că prețul proprietății este peste cel maxim: imobil nou cu suprafață mare, are dotări și finisaje de lux.
Bine de știut: prețul unei proprietăți este influențat și de alte caracteristici, cum ar fi: vechime, localizare, vecinătăți, suprafață, compartimentare, amenajări, dotări, etc.
Insight premium disponibil după login

Costuri cu achiziția

Fără credit
Credit ipotecar
Noua casă

i

Costuri adiționale mai puțin știute la achiziție: taxe notariale, comisioane etc.

Insight premium disponibil după login

Proprietăți recomandate

Detalii de contact

iAdvise

Adrian Bucuras Consultant Imobiliar

iAdvise
PRO

Abonează-te la newsletter să fii primul care primește cele mai noi recomandări de proprietăți și sfaturi de la experți.

CONTACT

Creează alertă

Salvează căutarea ca să primești pe email ultimele anunțuri publicate

Apartamente cu 2 camere de vânzare în Săcele, Județul Brașov