Apartament 2 camere | Direct Dezvoltator | Premium | Buncloc

180.170 € + TVA

Săcele, Județul Brașov

Nr. cam.:
2
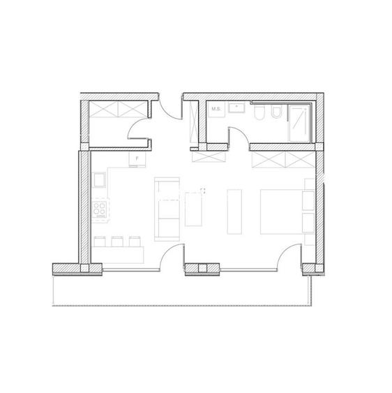
Sup. utilă:
44,86 mp
Etaj:
2 / 2
An constr.:
2026 (În construcție)
  • • Locație aproximativă

Descriere apartament

Vă prezentăm apartamente moderne în cadrul ansamblului rezidențial Bunloc Club Residence, situat într-o zonă liniștită și ecologică, la poalele Masivul Piatra Mare, cu priveliști spectaculoase către Postăvarul și Munții Bucegi. Proiectul este amplasat în cartierul Bunloc, la doar aproximativ 10 minute de centrul orașului Brașov. Ansamblul este format din doar 9 apartamente premium, într-un imobil cu regim redus de înălțime, oferind intimitate, liniște și o comunitate restrânsă. Avantaje ale proiectului: - Locație premium aproape de pădure și natură - Priveliști panoramice către munți - Curte privată și spații de relaxare - Sală de fitness pentru locatari - Zonă BBQ și spații verzi - Acces securizat și comunitate exclusivistă - În apropiere se află Parc Aventura Brașov, Lacul Noua, iar centrul orașului Brașov este la doar câteva minute de mers cu mașina. Caracteristici tehnice: - Fundație din beton - Structură de rezistență din beton armat - Termoizolație cu vată bazaltică - Încălzire în pardoseală cu centrală proprie - Tâmplărie PVC VEKA cu 3 foi de sticlă Apartamentele sunt proiectate pentru a maximiza lumina naturală, spațiul și funcționalitatea, fiind livrate cu finisaje moderne și materiale de calitate. - Loc de parcare suprateran: 6.500 € + TVA - Loc de parcare subteran: 12.000 € + TVA Pentru mai multe detalii contactați-mă telefonic:
0727 **** Vezi tot numărul
- Adrian Sajin
Citește mai mult Citește mai puțin
Confort lux 1 Balcon / Terasă / Logie Încălzire prin pardoseală Zonă de deal / munte

Detalii apartament

ID anunț: XF4U100QL Copiat! 275216155 Copiat!
Actualizat în: 07 Martie 2026
Suprafață construită: 57 mp
Nr. bucătării: 1
Nr. băi: 1
Structură rezistență: Cărămidă
Tip imobil: Bloc de apartamente
Regim înălțime: P+2E

Utilități

Utilități
Curent Apă Canalizare CATV Gaze Telefon
Internet
Cablu
Amenajare străzi
Iluminat stradal Mijloace de transport în comun Asfaltate
Comision
standard

Disponibilitate proprietate:

Imediat

Puncte de interes

Mijloace transport
bus-station
Statia Pantex, linia 17barat
Stații autobuz aprox. 913 m
bus-station
Statia Aurora Darste, linia 17barat
Stații autobuz aprox. 1625 m
train-station
Brasov Darste
Stații tren aprox. 1645 m
bus-station
Dirste
Stații autobuz aprox. 1645 m
Școală
school
Scoala
Școli aprox. 759 m
school
Scoala generala nr 21
Școli aprox. 1430 m
kindergarten
Gradinita cu program normal nr. 21 SG (fosta nr. 68)
Gradinițe aprox. 1824 m
Recreere
cafe
Mol Shop
Cafenea aprox. 671 m
restaurant
Corleone
Restaurant aprox. 864 m
sports-ground
Teren sportiv
Terenuri sport aprox. 1812 m
park
Parc
Parcuri aprox. 1993 m

Detalii despre preț și costuri

Prețul pe piață

Preț cerut: 180.170 €

Preț min. zonă 45.999 €
Preț max. zonă 139.999 €

i

Proprietate cu prețul cerut în afara intervalului mai multe...

Posibile explicații pentru faptul că prețul proprietății este peste cel maxim: imobil nou cu suprafață mare, are dotări și finisaje de lux.
Bine de știut: prețul unei proprietăți este influențat și de alte caracteristici, cum ar fi: vechime, localizare, vecinătăți, suprafață, compartimentare, amenajări, dotări, etc.

Costuri cu achiziția

Fără credit
10.384 RON
Credit ipotecar
12.422 RON
Noua casă
1.251 RON+ taxe notariale

i

Costuri adiționale mai puțin știute la achiziție: taxe notariale, comisioane etc.

Proprietăți similare

Apartament cu 3 camere decomandat în Bunloc
171.950 € + TVA
Județul Brașov, Săcele
3 camere
81,5 mp
Etaj 2 / 2
Apartament cu 3 camere decomandat în Bunloc
195.448 € + TVA
Județul Brașov, Săcele
3 camere
100,23 mp
Parter
Apartament cu 2 camere decomandat, mobilat în Tractorul
179.000 €
Brașov, Tractorul
2 camere
47 mp
Etaj 8 / 9

Detalii de contact

Abonează-te la newsletter să fii primul care primește cele mai noi recomandări de proprietăți și sfaturi de la experți.

CONTACT

Creează alertă

Salvează căutarea ca să primești pe email ultimele anunțuri publicate

Apartamente cu 2 camere de vânzare în Săcele, Județul Brașov