Apartament 2 camere tip studio 49mp

85.000 €

Sânpetru, Județul Brașov

Nr. cam.:
2
Sup. utilă:
49 mp
Etaj:
Parter / 4
An constr.:
2026 (Finalizată)
  • • Locație aproximativă

Descriere apartament

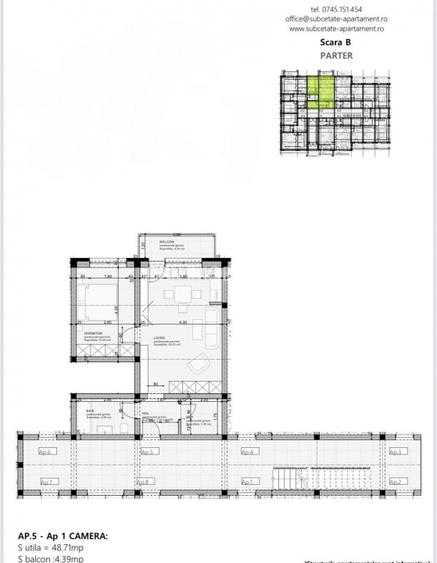
BSK Imobiliare va propune spre achizitie un apartament cu 2 camere tip studio, situat in ansamblul Subcetate City 2, pe Strada Marin Preda, in Sanpetru. Imobilul este amplasat la parter, in Vila 6, fiind finalizat si disponibil pentru tranzactionare imediata. Suprafata utila: 48,71 mp Balcon: 4,4 mp Parcare: loc de parcare privat inclus in pret Compartimentarea este practica si moderna: living cu bucatarie open-space, dormitor, baie, hol si dressing, oferind un plus de spatiu pentru depozitare si confort. Locuinta beneficiaza de incalzire in pardoseala si acces facil catre magazinele din cartier si statia de autobuz. Pret: 85.000 euro Modalitati de plata acceptate: cash sau credit Comision agentie: 2% Pentru informatii suplimentare si programarea unei vizionari, va rugam sa contactati echipa BSK Imobiliare.
Citește mai mult Citește mai puțin
Nemobilat 1 Balcon / Terasă / Logie Centrală proprie Încălzire prin pardoseală 1 Parcare 1 Parcare / Garaj / Parcare subterană

Detalii apartament

ID anunț: XFJM1002U Copiat! 275172291 Copiat!
Actualizat în: 03 Martie 2026
Nr. bucătării: 1
Nr. băi: 1
Structură rezistență: Cărămidă
Tip imobil: Bloc de apartamente
Regim înălțime: P+4E

Utilități

Destinație
Rezidențial
Pereți
Vopsea lavabilă Faianță
Podele
Parchet Gresie
Ușă intrare
Metal
Uși interior
Celulare
Izolații termice
Exterior
Contorizare
Apometre Contor gaz
Facilități imobil
Interfon
Utilități
Curent Apă Canalizare Gaze
Amenajare străzi
Asfaltate Iluminat stradal Mijloace de transport în comun
Comision
2%

Disponibilitate proprietate:

imediat

Puncte de interes

Mijloace transport
bus-station
Stupini
Stații autobuz aprox. 539 m
bus-station
Statia Tipografia Brastar, linia 40, 18
Stații autobuz aprox. 1537 m
bus-station
Tipografia Brastar
Stații autobuz aprox. 1537 m
bus-station
Statia Tipografia Brastar, linia 40, 18
Stații autobuz aprox. 1601 m
Școală
school
Colegiul Tehnic "Sfintii Voievozi Romani"
Școli aprox. 1906 m
Recreere
restaurant
Hotel restaurant STOP
Restaurant aprox. 1724 m

Detalii despre preț și costuri

Prețul pe piață

Preț cerut: 85.000 €

Preț min. zonă 78.500 €
Preț max. zonă 125.000 €

72% dintre proprietățile similare ca zonă și nr. camere au prețul cerut mai mare. mai multe...

Bine de știut: prețul unei proprietăți este influențat și de alte caracteristici, cum ar fi: vechime, localizare, vecinătăți, suprafață, compartimentare, amenajări, dotări, etc. mai puțin...

Costuri cu achiziția

Fără credit
14.068 RON
Credit ipotecar
15.494 RON
Noua casă
573 RON+ taxe notariale

i

Costuri adiționale mai puțin știute la achiziție: taxe notariale, comisioane etc.

Proprietăți similare

Apartament cu 2 camere în Sânpetru
91.900 €
Județul Brașov, Sânpetru
2 camere
46 mp
Parter / 4
Apartament cu 2 camere decomandat în Sânpetru
82.500 €
Județul Brașov, Sânpetru
2 camere
55 mp
Parter / 4
Apartament cu 2 camere decomandat în Sânpetru
86.000 €
Județul Brașov, Sânpetru
2 camere
45 mp
Etaj 3

Detalii de contact

BSK IMOBILIARE

George Florin Besca Manager

BSK IMOBILIARE

Abonează-te la newsletter să fii primul care primește cele mai noi recomandări de proprietăți și sfaturi de la experți.

CONTACT

Creează alertă

Salvează căutarea ca să primești pe email ultimele anunțuri publicate

Apartamente noi cu 2 camere de vânzare în Sânpetru, Județul Brașov