15

2 camere Nusco City I Finalizat I Contract Vanzare I COMISION 0%

200.000 €

Aviației, București

Nr. cam.:
2
Sup. utilă:
55 mp
Etaj:
5 / 11
An constr.:
2025 (Finalizată)
  • • Comision 0%
  • • Exclusivitate
  • • Locație exactă

Descriere apartament

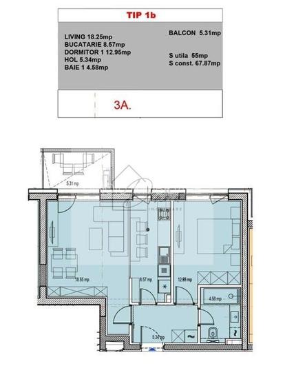
Va ofer spre vanzare apartament cu 2 camere in complexul premium Nusco City 2, langa statia de Metrou Pipera, langa metrou Aurel Vlaicu si Promenada Mall, situat in Aviatiei - Pipera, in centrul zonei cu cladiri de birouri din nordul capitalei, intr-o zona deosebita si intr-o comunitate foarte selecta si moderna. Detalii vanzare: contract de vanzare cumparare; COMISION AGENTIE = 0% - achizitie PF: 200.0000 euro, tva inclus - achizitie PJ : 165.000 euro, cu taxare inversa Apartamentul este decomandat, situat la etajul 5,6 si 10/11, intr-un imobil construit in 2025, cu suprafata utila totala de 55 mp (50mp plus balcon de 5,3mp), cu o compartimentare inteligenta si moderna, cu spatii vitrate mari, dupa cum urmeaza: - hol intrare de 5,3 mp - living de 18,3 mp cu iesire catre balcon - bucatarie de 8,6 mp, inchisa cu perete sticla; cu fereastra - ideal pentru aerisire naturala - dormitor de 13 mp - baie de 4,6 mp - balcon de 5,3mp, cu vedere panoramica superba catre curtea interioara a complexului sau catre exterior, catre Fabrica de Glucoza Dotari si finisaje apartament si complex: - centrala termica in condensatie WIESMANN - incalzire in pardoseala REH - parchet triplustratificat din stejar Haro/Germania care asigură un aspect elegant și durabilitate - plăci ceramice Cristacer Spania - finisaje de înaltă calitate pentru băi și bucătărie - obiecte sanitare Ideal Standard Italia cu design modern și funcționalitate superioară - tâmplărie din aluminiu SCHUCO-PINUM - pentru o izolare termică și fonică optime - instalatii electrice LEGRAND/Italia - ușa intrare blindata ALIAS/Italia pentru securitate sporită și protecție - usi interior Pinum - sistem de aer condiționat Mitsubishi pentru confort termic ridicat vara - compartimentare interioara din caramida POROTHERM cu goluri de 15 cm Facilitati complex Nusco City: fatada ventilata (termoizolatie cu vata minerala bazaltica) - paza 24/7 si acces securizat - 2500 mp de spatii verzi spectaculoase; locuri de joaca pentru copii - strazi si alei interioare largi - lift KONE de mare viteza - parcare subterana si supraterana - iluminat stradal Facilitati locatie: - zona de birouri din Pipera, Aurel Vlaicu, Barbu Vacrescu, Floreasca, Baneasa - metrou Pipera la cateva minute; metrou Aurel Vlaicu - magazine: Lidl, Kaufland, Mall Promenada - acces rapid A3, centura Bucuresti - acces rapid aeroporturi Baneasa si Otopeni - spitale si clinici medicale de stat si private (Spital Medicover, Policlina Medicaver, clinica Regina Maria, etc) Va invit sa programati o vizionare! Alina Dinoiu
Citește mai mult Citește mai puțin
Confort lux Decomandat Nemobilat 1 Balcon / Terasă / Logie Curte comună Aer condiționat Centrală imobil Încălzire prin pardoseală

Detalii apartament

ID anunț: XFBQ100EH Copiat! 274882219 Copiat!
Actualizat în: 21 Mai 2026
Nr. bucătării: 1
Nr. băi: 1
Structură rezistență: Cărămidă
Tip imobil: Bloc de apartamente
Tip tranzacție: De vânzare prin agent
Regim înălțime: P+11E
Modalitate de plată: Cash sau Credit

Utilități

Pereți
Faianță Vopsea lavabilă
Podele
Gresie Parchet
Ușă intrare
Metal
Uși interior
Lemn
Izolații termice
Exterior Interior
Ferestre cu geam termopan
Aluminiu
Contorizare
Apometre Contor căldură Contor gaz
Diverse
Senzor de fum Telecomandă poartă acces auto
Facilități imobil
Interfon Lift Videointerfon
Utilități
Curent Apă Canalizare CATV Gaze
Servicii imobil
Pază Supraveghere video
Amenajare străzi
Iluminat stradal Mijloace de transport în comun Asfaltate
Comision
0%

Vecinătăți:

Zona Aviatiei din Nordul Bucurestiului, langa statia de metrou Aurel Vlaicu.

În zona se află numeroase clădiri de birouri – Aurel Vlaicu, PIpera si Barbu Vacarescu.

Aproape:
Mall Promenada: 800 m
Metrou Aurel Vlaicu: 850 m
Herastrau: 2 km

La intrarea in complex se afla mijloace de transport în comun: stația de autobuz numerele 343, 449, 459,etc.

Acces rapid la A3 si centura Bucuresti.

Disponibilitate proprietate:

Imediat

Puncte de interes

Mijloace transport
bus-station
Statia Marin Dracea, linia 135, N119, 112
Stații autobuz aprox. 244 m
bus-station
Statia Pipera S.A., linia 135, N119, 112
Stații autobuz aprox. 269 m
tram-station
"Platforma Pipera" RATB terminal (en)
Stații tramvai aprox. 271 m
metro-station
Pipera (M2)
Stații metrou aprox. 584 m
Școală
school
Colegiul Tehnic Edmond Nicolau, fostul Electronica
Școli aprox. 293 m
school
Grupul Scolar Industrial Constantin Brancusi (en)
Școli aprox. 391 m
kindergarten
Gradinita SOS Satul Copiilor
Gradinițe aprox. 940 m
kindergarten
Gradinita Miniterra
Gradinițe aprox. 1101 m
Recreere
restaurant
Casa Vera
Restaurant aprox. 245 m
park
Parc
Parcuri aprox. 285 m
sports-ground
Teren sportiv
Terenuri sport aprox. 317 m
supermarket
Carrefour Market
Supermarket aprox. 453 m

Istoricul prețurilor

Acces la informații premium după autentificare
Login Gratuit

Detalii despre preț și costuri

Prețul pe piață

Preț cerut: 200.000 €

Preț min. zonă
Preț max. zonă

59% dintre proprietățile similare ca zonă și nr. camere au prețul cerut mai mic. mai multe...

Bine de știut: prețul unei proprietăți este influențat și de alte caracteristici, cum ar fi: vechime, localizare, vecinătăți, suprafață, compartimentare, amenajări, dotări, etc. mai puțin...

Acces la informații premium după autentificare
Login Gratuit

Costuri cu achiziția

Fără credit
Credit ipotecar
Noua casă

i

Costuri adiționale mai puțin știute la achiziție: taxe notariale, comisioane etc.

Acces la informații premium după autentificare
Login Gratuit

Proprietăți similare

Apartament cu 2 camere semidecomandat în Aviației
206.910 €
București, Aviației
2 camere
55,31 mp
Etaj 2
Apartament cu 3 camere decomandat, mobilat în Aviației
183.000 €
București, Aviației
3 camere
67 mp
Etaj 6 / 8
Apartament cu 3 camere în Aviației
199.900 €
București, Aviației
3 camere
91 mp
Etaj 2

Detalii de contact

DINOIU IMOBILIARE

Alina Dinoiu Managing Director

DINOIU IMOBILIARE
PRO

Abonează-te la newsletter să fii primul care primește cele mai noi recomandări de proprietăți și sfaturi de la experți.

CONTACT

Creează alertă

Salvează căutarea ca să primești pe email ultimele anunțuri publicate

Apartamente noi cu 2 camere de vânzare în zona Aviației, Sector 1