Apartament spațios 2 camere + dressing, UPground, 82 mp, etaj 6, mobilat lux.

224.999 €

Aviației, București

Nr. cam.:
2
Sup. utilă:
82 mp
Etaj:
6 / 16
An constr.:
2011
  • • Locație aproximativă

Descriere apartament

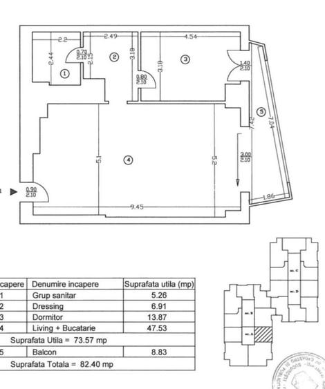
Cristal Imobiliare oferă spre vânzare un apartament spațios cu 2 camere, situat în complexul rezidențial UPground, unul dintre cele mai apreciate ansambluri din zona de nord a Capitalei. la 5 min de metrou Pipera. Proprietatea are o suprafață utilă de 82 mp, se află la etajul 6, foarte luminos, beneficiind de o compartimentare aerisită, cu bucătărie open-space și un dressing separat. Apartamentul se vinde mobilat și este potrivit atât pentru locuire confortabilă, cât și pentru investiție. Detalii apartament: 2 camere Suprafață utilă 82 mp Etaj 6 Bucătărie open-space cu livingul Dormitor spațios Dressing separat Baie Balcon Apartament mobilat Compartimentare modernă și eficientă Localizare: Metrou Pipera (aprox. 5 minute) Complex UPground Acces rapid către zona de birouri Pipera – Barbu Văcărescu Aproape de Promenada Mall, supermarketuri, restaurante și săli de fitness Condiții de vânzare: Comisionul agenției este de 2 %. Oferim consultanță imobiliară până la finalizarea tranzacției. Agenția noastră vă poate oferi consultanță bancară gratuită pentru obținerea unui credit ipotecar/Noua Casă sau alte informații bancare. Pentru mai multe oferte imobiliare va rugam accesati site-ul:
Citește mai mult Citește mai puțin
Confort lux Semidecomandat 1 Balcon / Terasă / Logie

Detalii apartament

ID anunț: X7NU2034U Copiat! 275480426 Copiat!
Actualizat în: 26 Aprilie 2026
Nr. bucătării: 1
Nr. băi: 1
Tip imobil: Bloc de apartamente
Regim înălțime: P+16E

Utilități

Utilități
Curent Apă Canalizare
Comision
standard

Disponibilitate proprietate:

Imediat

Puncte de interes

Mijloace transport
metro-station
Metrorex. Stația Pipera (M2)(1987)
Stații metrou aprox. 425 m
tram-station
Electronica
Stații tramvai aprox. 471 m
bus-station
Soseaua Fabrica de Glucoza statie 16, 36
Stații autobuz aprox. 621 m
trolleybus-station
Statia Doamna Ghica, linia 66
Stații troleibuz aprox. 1974 m
Școală
school
Colegiul Tehnic Edmond Nicolau, fostul Electronica
Școli aprox. 841 m
school
Grupul Scolar Industrial Constantin Brancusi (en)
Școli aprox. 878 m
kindergarten
Gradinita nr. 7
Gradinițe aprox. 1007 m
university
Facultatea de Cai Ferate Drumuri si Poduri, Facultate de Geodezie
Universități aprox. 1558 m
Recreere
restaurant
Q'inn
Restaurant aprox. 210 m
supermarket
Carrefour
Supermarket aprox. 506 m
park
Parc
Parcuri aprox. 630 m
sports-ground
Teren sportiv
Terenuri sport aprox. 708 m

Detalii despre preț și costuri

Prețul pe piață

Preț cerut: 224.999 €

Preț min. zonă
Preț max. zonă

86% dintre proprietățile similare ca zonă și nr. camere au prețul cerut mai mare. mai multe...

Bine de știut: prețul unei proprietăți este influențat și de alte caracteristici, cum ar fi: vechime, localizare, vecinătăți, suprafață, compartimentare, amenajări, dotări, etc. mai puțin...

Insight premium disponibil după login

Costuri cu achiziția

Fără credit
Credit ipotecar
Noua casă

i

Costuri adiționale mai puțin știute la achiziție: taxe notariale, comisioane etc.

Insight premium disponibil după login

Proprietăți similare

Apartament cu 2 camere semidecomandat în Aviației
215.000 € + TVA
București, Aviației
2 camere
40 mp
Etaj 7 / 15
Apartament cu 2 camere decomandat, mobilat în Aviației
228.000 €
București, Aviației
2 camere
74 mp
Etaj 3
Apartament cu 2 camere decomandat, mobilat în Aviației
235.000 €
București, Aviației
2 camere
54 mp
Etaj 3

Detalii de contact

CRISTAL IMOBILIARE

Cristina Brinzila Agent Imobiliar

5.00(4 review-uri)

CRISTAL IMOBILIARE
PRO

Abonează-te la newsletter să fii primul care primește cele mai noi recomandări de proprietăți și sfaturi de la experți.

CONTACT

Creează alertă

Salvează căutarea ca să primești pe email ultimele anunțuri publicate

Apartamente cu 2 camere de vânzare în zona Aviației, Sector 1