3 camere | curte proprie | bloc nou

319.900 €

Aviației, București

Nr. cam.:
3
Sup. utilă:
79,3 mp
Etaj:
Parter / 3
An constr.:
2025 (Finalizată)
  • • Locație exactă

Descriere apartament

Impact Real Estate Advisors va prezinta un apartament cu 3 camere, aflat in zona Aviatiei, la 2 minute distanta de Scoala Mea si farmacia Tei. Proprietar persoana fizica, pretul nu este purtator de TVA. Apartamentul este nou, dispune ce centrala termica proprie Viessmann si incalzire in pardoseala TECE cu reglarea temperaturii prin termostat din fiecare camera. Proprietatea dispune de living cu bucatarie open space (bucataria se poate inchide), dormitor matrimonial cu baie proprie, dormitor secundar, baie, hol. Din living se iesi in terasa si curtea proprie, orientata catre spatele blocului, ferita comple de zgomot. Blocul a fost receptionat, apartamentul are cadastru si intabulare, este clasa energetica A si se accepta plata prin credit. In pretul afisat sunt incluse finisajele proprietatii. Viitorul proprietar are posibilitatea de a isi personaliza interiorul dupa propriile preferinte. Locurile de parcare sunt doar la subteran si se vand separat la pretul de 17.000 euro + tva. Imobil clasa energetica A.
Citește mai mult Citește mai puțin
Confort 1 Decomandat Grădină Centrală proprie Încălzire prin pardoseală

Detalii apartament

ID anunț: XC7L101M1 Copiat! 271227556 Copiat!
Actualizat în: 04 Martie 2026
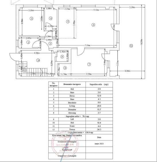
Suprafață construită: 130.4 mp
Nr. bucătării: 1
Nr. băi: 2
Structură rezistență: Beton
Tip imobil: Bloc de apartamente
Regim înălțime: S+P+3E
Nr. terase: 1

Utilități

Pereți
Faianță Vopsea lavabilă
Podele
Gresie Parchet
Ușă intrare
Metal
Uși interior
Lemn
Ferestre cu geam termopan
PVC
Contorizare
Apometre Contor gaz
Alte spații utile
Terasă
Facilități imobil
Interfon Lift
Utilități
Curent Apă Canalizare CATV Gaze Telefon
Internet
Cablu Wireless
Amenajare străzi
Iluminat stradal Mijloace de transport în comun Asfaltate
Comision
standard

Certificat energetic:

Clasa energetică: A

Disponibilitate proprietate:

Imediat

Puncte de interes

Mijloace transport
bus-station
Pasaj Baneasa statie 605, 5
Stații autobuz aprox. 456 m
tram-station
Maguricea
Stații tramvai aprox. 607 m
metro-station
Metrorex. Stația Aurel Vlaicu (M2)(1987)
Stații metrou aprox. 1248 m
airport
Aeroportul Internațional Băneasa (Aurel Vlaicu) - LRBS (BBU)
Aeroporturi aprox. 1508 m
Școală
school
Scoala primara si gimnaziala MEA
Școli aprox. 122 m
school
Grup Scolar Industrial Henri Coanda
Școli aprox. 397 m
kindergarten
Grădinița Mary Poppins
Gradinițe aprox. 827 m
university
Școala Superioară de Aviație Civilă - S.S.Av.C.
Universități aprox. 1224 m
Recreere
supermarket
Lidl
Supermarket aprox. 225 m
park
Parc
Parcuri aprox. 481 m
restaurant
EL BACHA Lebanese Restaurant
Restaurant aprox. 638 m
sports-ground
Teren sportiv
Terenuri sport aprox. 1119 m

Detalii despre preț și costuri

Prețul pe piață

Preț cerut: 319.900 €

Preț min. zonă
Preț max. zonă

92% dintre proprietățile similare ca zonă și nr. camere au prețul cerut mai mic. mai multe...

Bine de știut: prețul unei proprietăți este influențat și de alte caracteristici, cum ar fi: vechime, localizare, vecinătăți, suprafață, compartimentare, amenajări, dotări, etc. mai puțin...

Insight premium disponibil după login

Costuri cu achiziția

Fără credit
Credit ipotecar
Noua casă

i

Costuri adiționale mai puțin știute la achiziție: taxe notariale, comisioane etc.

Insight premium disponibil după login

Proprietăți recomandate

Detalii de contact

IMPACT REAL ESTATE ADVISORS

Viorel Ionita Manager

IMPACT REAL ESTATE ADVISORS
PRO

Abonează-te la newsletter să fii primul care primește cele mai noi recomandări de proprietăți și sfaturi de la experți.

CONTACT

Creează alertă

Salvează căutarea ca să primești pe email ultimele anunțuri publicate

Apartamente noi cu 3 camere de vânzare în zona Aviației, Sector 1