3 Camere | Complex Walter Loft Space | 10 Min. De Metrou Aurel Vlaicu

319.500 € + TVA

Aviației, București

Nr. cam.:
3
Sup. utilă:
86,4 mp
Etaj:
3 / 3
An constr.:
2025 (Finalizată)
  • • Locație exactă

Descriere apartament

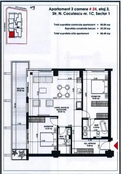
Situat în complexul rezidențial Walter Loft Space, la 10 minute de statia de metrou Aurel Vlaicu, acest apartament decomandat cu 3 camere se află la etajul 3 din 3, într-un imobil boutique cu regim redus de înălțime, ce oferă intimitate și confort. Locuința are o suprafață utilă de 86.40 mp și o suprafață construită de 98.60 mp, la care se adaugă o terasă generoasă de 20.25 mp construiți, ideală pentru amenajarea unei zone de relaxare în aer liber. Compartimentarea decomandată asigură o delimitare eficientă a spațiilor, oferind funcționalitate și intimitate. Interiorul este gândit într-un stil modern, cu finisaje de calitate și atenție la detalii. Pardoseala este realizată din parchet din lemn natural, care adaugă eleganță și căldură ambientului. Pereții exteriori beneficiază de soluții tehnice cu protecție la foc și umiditate, contribuind la siguranța și durabilitatea construcției. Pereții interiori sunt executați conform detaliilor tehnice de stratificație, pentru un confort fonic și structural optim. Baile sunt amenajate în stil contemporan, cu obiecte sanitare moderne, iar finisajele ceramice sunt alese pentru a completa armonios designul general al apartamentului. Ușile interioare și detaliile de execuție sunt integrate într-un concept unitar, adaptat cerințelor actuale de locuire urbană. Prin poziționarea la un etaj intermediar, suprafața bine optimizată și terasa spațioasă, acest apartament reprezintă o alegere excelentă atât pentru locuință proprie, cât și pentru investiție. Pret: 319.500 euro + TVA Posibilitate achizitionare loc de parcare subteran. Pozele sunt cu titlu de prezentare. Contact: Nicoleta Necula
+403 ........ Vezi tot numărul
VAUNT ID: 110701
Citește mai mult Citește mai puțin
Confort lux Decomandat 1 Balcon / Terasă / Logie Ventiloconvectoare Calorifere Centrală imobil Încălzire prin pardoseală Bine întreținut (Bună)

Detalii apartament

ID anunț: X7QH201CA Copiat! 275204879 Copiat!
Actualizat în: 05 Martie 2026
Suprafață utilă totală: 86.4 mp
Suprafață construită: 98.6 mp
Nr. bucătării: 1
Nr. băi: 2
Structură rezistență: Beton
Tip imobil: Bloc de apartamente
Regim înălțime: P+3E

Utilități

Destinație
Rezidențial
Pereți
Vopsea lavabilă Faianță
Podele
Gresie Marmură
Ușă intrare
Parchet Metal
Uși interior
Celulare
Ferestre cu geam termopan
PVC
Contorizare
Apometre Contor gaz
Diverse
Senzor de fum
Alte spații utile
Terasă WC Serviciu Debara
Facilități imobil
Videointerfon Interfon Lift
Utilități
Gaze Curent Apă Canalizare
Internet
Fibră optică Cablu
Servicii imobil
Administrare Menaj Pază Supraveghere video
Amenajare străzi
Iluminat stradal Mijloace de transport în comun Asfaltate

Certificat energetic:

Clasa energetică: A

Puncte de interes

Mijloace transport
bus-station
Maguricea
Stații autobuz aprox. 253 m
tram-station
Maguricea
Stații tramvai aprox. 263 m
metro-station
Metrorex. Stația Aurel Vlaicu (M2)(1987)
Stații metrou aprox. 723 m
airport
Aeroportul Internațional Băneasa (Aurel Vlaicu) - LRBS (BBU)
Aeroporturi aprox. 1871 m
Școală
school
Scoala cu clasele I-VIII nr.12 "Herastrau"
Școli aprox. 483 m
school
Scoala Generala Nr. 12
Școli aprox. 505 m
kindergarten
Gradinita Miniterra
Gradinițe aprox. 509 m
university
Școala Superioară de Aviație Civilă - S.S.Av.C.
Universități aprox. 1750 m
Recreere
park
Parc
Parcuri aprox. 154 m
bar
Simbi's
Bar aprox. 366 m
supermarket
Lidl
Supermarket aprox. 497 m
sports-ground
Teren sportiv
Terenuri sport aprox. 578 m

Detalii despre preț și costuri

Prețul pe piață

Preț cerut: 319.500 €

Preț min. zonă 179.500 €
Preț max. zonă 425.000 €

79% dintre proprietățile similare ca zonă și nr. camere au prețul cerut mai mic. mai multe...

Bine de știut: prețul unei proprietăți este influențat și de alte caracteristici, cum ar fi: vechime, localizare, vecinătăți, suprafață, compartimentare, amenajări, dotări, etc. mai puțin...

Costuri cu achiziția

Fără credit
16.169 RON
Credit ipotecar
18.922 RON
Noua casă
2.109 RON+ taxe notariale

i

Costuri adiționale mai puțin știute la achiziție: taxe notariale, comisioane etc.

Proprietăți similare

Apartament cu 3 camere decomandat, mobilat în Aviației
300.000 €
București, Aviației
3 camere
86 mp
Etaj 3
Apartament cu 3 camere decomandat în Aviației
300.000 €
București, Aviației
3 camere
92 mp
Etaj 2
Apartament cu 2 camere decomandat în Aviației
299.000 €
București, Aviației
2 camere
60 mp
Etaj 7 / 9

Detalii de contact

R&D ADVISERS

Nicoleta Necula

R&D ADVISERS
PRO

Abonează-te la newsletter să fii primul care primește cele mai noi recomandări de proprietăți și sfaturi de la experți.

CONTACT

Creează alertă

Salvează căutarea ca să primești pe email ultimele anunțuri publicate

Apartamente noi cu 3 camere de vânzare în zona Aviației, Sector 1