Apartament 3 Camere Aviatiei-Baneasa | Nou | Compartimentat Excelent

184.500 € + TVA

Aviației, București

Nr. cam.:
3
Sup. utilă:
82 mp
Etaj:
2 / 4
An constr.:
2025 (Finalizată)
  • • Locație aproximativă

Descriere apartament

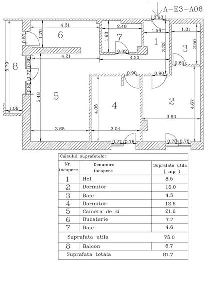
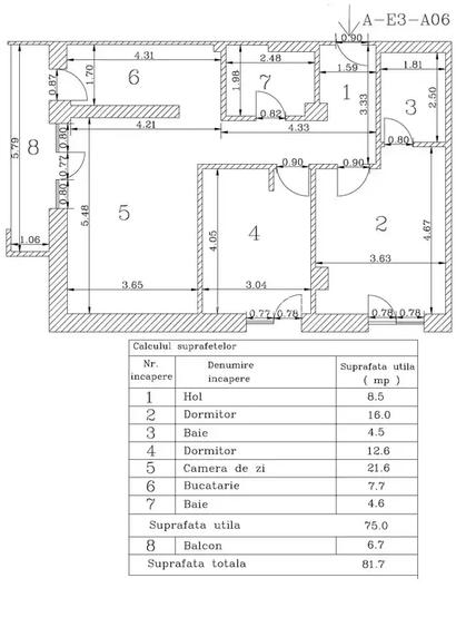
Te invit sa vizitezi acest apartament cu trei camere, care se afla intr-o zona accesibila si linistita. Compartimentarea foarte buna iti va permite sa il organizezi asa cum doresti tu. Daca ai copii la gradinita sau la scoala, vei putea sa ii duci pe jos la "Gradinita Mea", sau la "Scoala Mea". Tot in apropiere, la 10 minute cu masina, vei putea ajunge la Promenada Mall sau la Baneasa Mall. Apartamentul este foarte luminos, fiind situat spre sud-vest. Compartimentarea apartamentului este foarte eficienta si bine gandita, fiind decomandat. Astfel: - livingul, de 21,6 mp se deschide spre balconul de 6,7 mp - bucataria inchisa, cu suprafata de7,7 mp, are, de asemenea, usa catre balcon -dormitor matrimonial de 16 mp, cu baia proprie -dormitor de 12,6 mp - baie de 4,6 mp Dotari premium: - centrala proprie - incalzire in pardoseala - Parchet SPC – waterproof - Băi complet echipate, finisaje modern La pretul afisat se adauga TVA. Vino sa vezi cu ochii tai! VAUNT ID: 110955
Citește mai mult Citește mai puțin
Confort 1 Decomandat 1 Balcon / Terasă / Logie Centrală proprie Încălzire prin pardoseală Bine întreținut (Bună)

Detalii apartament

ID anunț: X7QH201JC Copiat! 275232898 Copiat!
Actualizat în: 09 Martie 2026
Suprafață utilă totală: 82 mp
Suprafață construită: 96 mp
Nr. băi: 2
Structură rezistență: Beton
Tip imobil: Bloc de apartamente
Regim înălțime: P+4E

Utilități

Destinație
Rezidențial
Pereți
Vopsea lavabilă Faianță
Podele
Gresie
Ușă intrare
Parchet Metal
Uși interior
Celulare
Izolații termice
Exterior
Contorizare
Apometre Contor gaz
Alte spații utile
WC Serviciu
Facilități imobil
Interfon Lift
Utilități
Gaze Curent Apă Canalizare
Internet
Fibră optică Cablu Wireless
Servicii imobil
Administrare
Amenajare străzi
Iluminat stradal Mijloace de transport în comun Asfaltate

Puncte de interes

Mijloace transport
bus-station
Capat C.F.R Constanta linii : 112,135,445
Stații autobuz aprox. 570 m
tram-station
Drumul Nisipoasa
Stații tramvai aprox. 946 m
metro-station
Pipera (M2)
Stații metrou aprox. 1191 m
airport
Aeroportul Internațional Băneasa (Aurel Vlaicu) - LRBS (BBU)
Aeroporturi aprox. 1456 m
Școală
school
Colegiul Tehnic Edmond Nicolau, fostul Electronica
Școli aprox. 1196 m
school
Scoala primara si gimnaziala MEA
Școli aprox. 1260 m
kindergarten
Gradinita Miniterra
Gradinițe aprox. 1439 m
kindergarten
Grădinița Pentru Hipoacuzici NR. 65
Gradinițe aprox. 1746 m
Recreere
sports-ground
Teren sportiv
Terenuri sport aprox. 838 m
restaurant
Domino's Pizza
Restaurant aprox. 1033 m
park
Parc
Parcuri aprox. 1044 m
supermarket
Carrefour
Supermarket aprox. 1120 m

Detalii despre preț și costuri

Prețul pe piață

Preț cerut: 184.500 €

Preț min. zonă 179.500 €
Preț max. zonă 425.000 €

95% dintre proprietățile similare ca zonă și nr. camere au prețul cerut mai mare. mai multe...

Bine de știut: prețul unei proprietăți este influențat și de alte caracteristici, cum ar fi: vechime, localizare, vecinătăți, suprafață, compartimentare, amenajări, dotări, etc. mai puțin...

Costuri cu achiziția

Fără credit
10.570 RON
Credit ipotecar
12.631 RON
Noua casă
1.278 RON+ taxe notariale

i

Costuri adiționale mai puțin știute la achiziție: taxe notariale, comisioane etc.

Proprietăți similare

Apartament cu 2 camere decomandat în Aviației
179.000 € + TVA
București, Aviației
2 camere
51,55 mp
Etaj 4 / 10
Apartament cu 2 camere decomandat, mobilat în Aviației
180.000 €
București, Aviației
2 camere
56,12 mp
Etaj 2 / 4
Apartament cu 2 camere semidecomandat în Aviației
175.000 € + TVA
București, Aviației
2 camere
55,33 mp
Etaj 2 / 18

Detalii de contact

R&D ADVISERS

Gabriela Andrei Project Manager

4.92(4 review-uri)

R&D ADVISERS
PRO

Abonează-te la newsletter să fii primul care primește cele mai noi recomandări de proprietăți și sfaturi de la experți.

CONTACT

Creează alertă

Salvează căutarea ca să primești pe email ultimele anunțuri publicate

Apartamente noi cu 3 camere de vânzare în zona Aviației, Sector 1