1

4 camere în One Lake Club lângă Promenada Mall

665.500 €

Aviației, București

Nr. cam.:
4
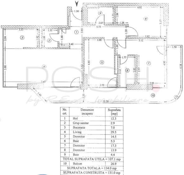
Sup. utilă:
107,1 mp
Etaj:
2 / 9
An constr.:
2025 (Finalizată)
  • • Locație exactă

Descriere apartament

Posh Estate Apartament 4 camere, decomandat, la etajul 2 din 9, în complexul rezidențial One Lake Club, care oferă peste 7.000 mp de spații de relaxare, loc de joacă pentru copii, sală de sport, pază 24/7 și spații comerciale pentru confortul zilnic, construit în anul 2025. - Suprafață totală de 136,52 mp: 107,4 mp utili+ 29,12 mp balcon. - Configurație: 3 dormitoare, living cu bucătărie open space, hol, 3 băi și balcon. - Încălzire în pardoseală asigurată de centrala de imobil și climatizare prin ventiloconvectoare. Preț 550.000 EUR + TVA ( sau 665.500 EUR TVA inclus ). Opțional, 2 locuri de parcare subterane sunt disponibile pentru achiziție. Acces rapid la transportul public: 3 minute până la statiile STB, 12 minute până la metrou Pipera. Localizare: pe malul Lacului Tei, la câțiva pași de Hotel Caro, Muzeul Aviației, Globalworth și Promenada Mall, cu acces rapid la Șoseaua Fabrica de Glucoză, Barbu Vacărescu, Floreasca, Parcul Herăstrau, Autostrada A3 București-Ploiești și Aeroportul International Henri Coandă. Contactează-ne pentru detalii suplimentare și programarea unei vizionări private. Cod proprietate P9473.
Citește mai mult Citește mai puțin
Confort 1 Decomandat Nemobilat 1 Balcon / Terasă / Logie Ventiloconvectoare Centrală imobil Încălzire prin pardoseală 2 Parcări Bine întreținut (Bună)

Detalii apartament

ID anunț: XG9L0000K Copiat! 275388938 Copiat!
Actualizat în: 28 Aprilie 2026
Suprafață construită: 157.9 mp
Nr. bucătării: 1
Nr. băi: 3
Structură rezistență: Beton
Tip imobil: Bloc de apartamente
Tip tranzacție: De vânzare prin agent
Regim înălțime: P+9E
Modalitate de plată: Cash sau Credit

Utilități

Pereți
Vopsea lavabilă Faianță
Podele
Parchet Gresie
Ușă intrare
Metal
Uși interior
Lemn
Izolații termice
Exterior
Ferestre cu geam termopan
Aluminiu
Contorizare
Apometre Contor gaz
Diverse
Telecomandă poartă acces auto
Alte spații utile
Terasă
Facilități imobil
Videointerfon Lift Spații agrement
Utilități
Curent Apă Canalizare Gaze CATV
Internet
Fibră optică
Servicii imobil
Supraveghere video
Amenajare străzi
Asfaltate Iluminat stradal Mijloace de transport în comun
Comision
Standard

Certificat energetic:

Clasa energetică: A

Puncte de interes

Mijloace transport
tram-station
Statia Platforma Pipera, linia 16,36
Stații tramvai aprox. 447 m
tram-station
Platforma Industriala Pipera (Urcare)
Stații tramvai aprox. 461 m
bus-station
Statia Soseaua Fabrica de Glucoza, linia 135, N119
Stații autobuz aprox. 494 m
metro-station
Metrorex. Stația Pipera (M2)(1987)
Stații metrou aprox. 553 m
Școală
school
Colegiul Tehnic Edmond Nicolau, fostul Electronica
Școli aprox. 617 m
school
Grupul Scolar Industrial Constantin Brancusi (en)
Școli aprox. 623 m
kindergarten
Gradinita SOS Satul Copiilor
Gradinițe aprox. 867 m
university
Facultatea de Constructii Civile
Universități aprox. 1613 m
Recreere
restaurant
Fosta baza Keoke (en)
Restaurant aprox. 125 m
park
Parc
Parcuri aprox. 472 m
sports-ground
Teren sportiv
Terenuri sport aprox. 499 m
supermarket
Carrefour
Supermarket aprox. 618 m

Detalii despre preț și costuri

Prețul pe piață

Preț cerut: 805.255 €

Preț min. zonă
Preț max. zonă

100% dintre proprietățile similare ca zonă și nr. camere au prețul cerut mai mic. mai multe...

Bine de știut: prețul unei proprietăți este influențat și de alte caracteristici, cum ar fi: vechime, localizare, vecinătăți, suprafață, compartimentare, amenajări, dotări, etc. mai puțin...

Acces la informații premium după autentificare
Login Gratuit

Costuri cu achiziția

Fără credit
Credit ipotecar
Noua casă

i

Costuri adiționale mai puțin știute la achiziție: taxe notariale, comisioane etc.

Acces la informații premium după autentificare
Login Gratuit

Proprietăți similare

Apartament cu 3 camere decomandat în Aviației
546.315 €
București, Aviației
3 camere
97 mp
Etaj 6 / 6
Apartament cu 4 camere decomandat în Aviației
565.000 €
București, Aviației
4 camere
124 mp
Etaj 7
Apartament cu 4 camere decomandat în Aviației
540.797 €
București, Aviației
4 camere
131 mp
Etaj 11

Detalii de contact

Posh Estate

Emanuel Lapadatu

Posh Estate

Abonează-te la newsletter să fii primul care primește cele mai noi recomandări de proprietăți și sfaturi de la experți.

CONTACT

Creează alertă

Salvează căutarea ca să primești pe email ultimele anunțuri publicate

Apartamente noi cu 4+ camere de vânzare în zona Aviației, Sector 1