Luxury Living | 3 Camere | 104mp | Baneasa | Aviatiei | Premium

250.000 € + TVA

Băneasa, București

Nr. cam.:
3
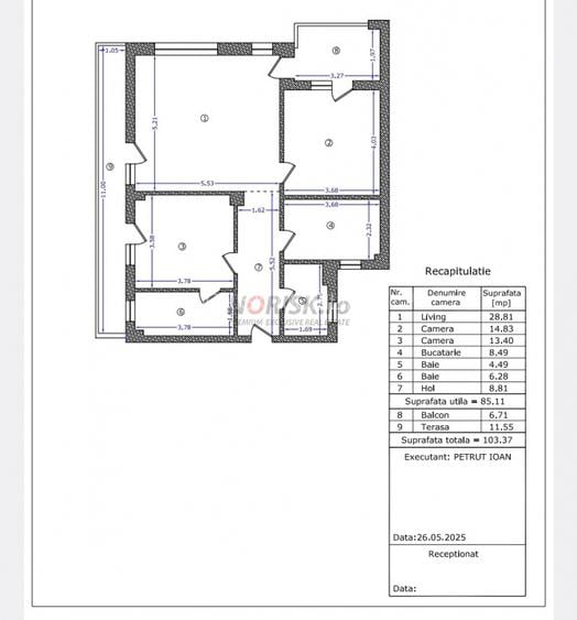
Sup. utilă:
85,11 mp
Etaj:
2 / 3
An constr.:
2025 (Finalizată)
  • • Comision 0%
  • • Locație aproximativă

Descriere apartament

Va prezentam un apartament premium, situat intr-un imobil boutique nou, finalizat in 2025, amplasat intr-o zona de top, dedicata celor care cauta calitate, intimitate si standarde inalte de locuire. Imobilul are regim redus de inaltime – P+2E+M, cu doar 14 apartamente, oferind un nivel ridicat de confort si exclusivitate. In prezent, avem disponibile 10 apartamente, cu 3 si 4 camere, la preturi cuprinse intre 210.000 € si 420.000 €, in functie de suprafata si compartimentare. Finisaje premium – fara compromisuri: Tamplarie Rehau Geneo 82, tripan Parchet Barlinek, lipit, model herringbone Gresie si faianta Marazzi Obiecte sanitare Geberit Prize si intrerupatoare GE / Chorus Usi interioare din lemn masiv Usa de intrare Maco Centrala termica Viessmann Incalzire in pardoseala Video-interfon Balcoane cu balustrade din sticla Apartamentul se remarca prin spatii generoase, compartimentare eficienta, lumina naturala abundenta si un nivel de finisare rar intalnit in proiectele rezidentiale standard. Ideal pentru: rezidenta proprie de lux investitie sigura intr-o zona premium clienti care cauta un proiect exclusivist, nu de masa Mentiune importanta: In acelasi imobil mai sunt disponibile inca 9 apartamente, cu suprafete si configuratii diferite. Va putem prezenta toate optiunile disponibile. Pentru detalii complete, planuri, vizionari si oferte personalizate, va stau la dispozitie. Vasile Mucenicu, Norisk Imobiliare
Citește mai mult Citește mai puțin
Confort lux Decomandat Nemobilat 1 Balcon / Terasă / Logie Centrală proprie Încălzire prin pardoseală

Detalii apartament

ID anunț: X79O100FM Copiat! 274019248 Copiat!
Actualizat în: 02 Martie 2026
Nr. bucătării: 1
Nr. băi: 2
Structură rezistență: Beton
Tip imobil: Bloc de apartamente
Regim înălțime: P+3E

Utilități

Destinație
Rezidențial
Pereți
Vopsea lavabilă Faianță
Podele
Parchet Gresie
Ușă intrare
Metal
Uși interior
Lemn
Izolații termice
Bloc izolat termic
Utilități
Curent Apă Canalizare Gaze
Facilități imobil
Interfon

Certificat energetic:

Clasa energetică: A

Disponibilitate proprietate:

imediat

Puncte de interes

Mijloace transport
bus-station
statie Bd. Ficusului 205, 261, 335, N113
Stații autobuz aprox. 360 m
bus-station
Carutasilor / Pasajul Aviatiei statie 301, 112
Stații autobuz aprox. 485 m
tram-station
Apicola
Stații tramvai aprox. 688 m
metro-station
Metrorex. Stația Aurel Vlaicu (M2)(1987)
Stații metrou aprox. 1296 m
Școală
kindergarten
Grădinița Mary Poppins
Gradinițe aprox. 242 m
school
Grupul Scolar "Viaceslav Harnaj"
Școli aprox. 509 m
kindergarten
Gradinita
Gradinițe aprox. 692 m
university
Școala Superioară de Aviație Civilă - S.S.Av.C.
Universități aprox. 1085 m
Recreere
park
Parc
Parcuri aprox. 191 m
supermarket
Mega Image
Supermarket aprox. 509 m
sports-ground
Teren sportiv
Terenuri sport aprox. 509 m
public-square
Piata Montreal
Piețe publice aprox. 1787 m

Detalii despre preț și costuri

Prețul pe piață

Preț cerut: 250.000 €

Preț min. zonă 155.000 €
Preț max. zonă 420.000 €

55% dintre proprietățile similare ca zonă și nr. camere au prețul cerut mai mic. mai multe...

Bine de știut: prețul unei proprietăți este influențat și de alte caracteristici, cum ar fi: vechime, localizare, vecinătăți, suprafață, compartimentare, amenajări, dotări, etc. mai puțin...

Costuri cu achiziția

Fără credit
13.290 RON
Credit ipotecar
15.687 RON
Noua casă
1.682 RON+ taxe notariale

i

Costuri adiționale mai puțin știute la achiziție: taxe notariale, comisioane etc.

Proprietăți similare

Apartament cu 3 camere decomandat în Băneasa
251.900 €
București, Băneasa
3 camere
83 mp
Etaj 1
Apartament cu 3 camere decomandat, mobilat în Băneasa
249.900 €
București, Băneasa
3 camere
77,22 mp
Etaj 2
Apartament cu 4 camere decomandat, mobilat în Băneasa
265.000 €
București, Băneasa
4 camere
92 mp
Etaj 2 / 4

Detalii de contact

NORISK IMOBILIARE

Vasile Mucenicu Manager

NORISK IMOBILIARE
PRO

Abonează-te la newsletter să fii primul care primește cele mai noi recomandări de proprietăți și sfaturi de la experți.

CONTACT

Creează alertă

Salvează căutarea ca să primești pe email ultimele anunțuri publicate

Apartamente noi cu 3 camere de vânzare în zona Băneasa, Sector 1