REA1028374 3 camere - Baneasa-Antena 1 - parcare inclusa - terasa

299.000 €

Băneasa, București

Nr. cam.:
3
Sup. utilă:
99 mp
Etaj:
2 / 4
An constr.:
2011 (Finalizată)
  • • Locație aproximativă
  • • Vizionare prin apel video

Descriere apartament

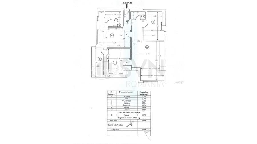
SVN Romania va propune spre vanzare un apartament cu 3 camere situat in cartierul Baneasa, in spatele fostului sediu Antena 1. Proprietatea are o suprafata totala de 99,57 mp, din care 10,38 mp reprezinta suprafata terasei. Apartamentul este situat la etajul 2 si beneficiaza de o orientare sud-vest, fiind foarte luminos pe tot parcursul zilei. Dispune de finisaje moderne, 2 bai, centrala termica proprie, aer conditionat si bucatarie complet mobilata si utilata. Mobilierul executat la comanda din sufragerie, bucatarie, dormitor si hol este inclus in pret, oferind un plus de confort si functionalitate. In plus, apartamentul beneficiaza de un loc de parcare in garajul subteran al cladirii, precum si de o boxa de depozitare, iar blocul este dotat cu lift. Strada este una linistita, fara trafic intens, aflata in imediata apropiere a lacului Baneasa. O alegere ideala pentru cei care cauta un spatiu modern, luminos si bine compartimentat intr-o zona linistita si bine conectata. Pentru mai multe informatii, nu ezitati sa ne contactati.
Citește mai mult Citește mai puțin
Confort 1 Semidecomandat 1 Balcon / Terasă / Logie Aer condiționat Calorifere Centrală proprie Beci 1 Parcare

Detalii apartament

ID anunț: X658007KS Copiat! 275366147 Copiat!
Actualizat în: 27 Martie 2026
Suprafață utilă totală: 109 mp
Suprafață construită: 110 mp
Nr. bucătării: 1
Nr. băi: 2
Structură rezistență: Beton
Tip imobil: Bloc de apartamente
Regim înălțime: P+4E

Utilități

Destinație
Rezidențial
Pereți
Faianță
Podele
Gresie Parchet
Izolații termice
Exterior
Ferestre cu geam termopan
PVC
Bucătărie
Mobilată
Alte spații utile
WC Serviciu
Facilități imobil
Interfon Lift
Utilități
Gaze
Comision
Standard

Vicii:

Fără vicii.

Alte detalii:

Cartier Băneasa, alegerea perfectă pentru achiziția imobilelor

Unul dintre cartierele învecinate cu Aviatorilor, Băneasa este unul dintre cele mai căutate și mai apreciate cartiere bucureștene. În apropierea parcului Herăstrău, Băneasa este zona care dă tonul în materie de achiziții imobiliare.

Acest cartier este potrivit pentru persoane care pleacă des în străinătate, aeroportul fiind în vecinătate. Alcătuit din blocuri construite atât după 1980, cât și în ultimii ani, ansamblurile rezidențiale reprezintă alegerea potrivită pentru familii cu tipuri de venit medii și mari. În această zonă au fost construite mai multe ansambluri rezidențiale precum:

● Greenfield Residence;
● Buena Vista Residencial;
● The Ivy;
● Embassy Residence;
● La Citadela.

Acesta cuprinde multe obiective turistice ale capitalei, cum ar fi Arcul de Triumf, Muzeul Satului, Muzeul de Artă Veche Apuseană, vila Nicolae Minovici.

Zona Băneasa, spații verzi și centre comerciale complete

Cartierul Băneasa este alegerea potrivită pentru iubitorii de natură, fiind amplasat lângă lacul Băneasa și pădurea cu același nume. De asemenea, pe lângă activitățile în natură, cei care își achiziționează o locuință în acest cartier se bucură și de alte facilități precum:

● centrul comercial Băneasa Shopping Center cu peste 250 de magazine;
● acces facil la două dintre cele mai cunoscute aeroporturi din țară, Băneasa și Otopeni;
● acces facil la linia de transport în comun;
● școli;
● spitale.

Disponibilitate proprietate:

data_properties.property_availability.Disponibil din 26/03/2026.

Puncte de interes

Mijloace transport
bus-station
Autogara Baneasa
Stații autobuz aprox. 340 m
bus-station
Aeroportul Baneasa / Soseaua Bucuresti-Ploiesti statie 205, 261, 605, 301, 112
Stații autobuz aprox. 371 m
tram-station
Statie RATB 5
Stații tramvai aprox. 436 m
tram-station
Aeroport Baneasa
Stații tramvai aprox. 447 m
Școală
school
Scoala Nr. 6
Școli aprox. 223 m
school
Scoala Generala nr. 6
Școli aprox. 223 m
kindergarten
Gradinita
Gradinițe aprox. 468 m
university
Școala Superioară de Aviație Civilă - S.S.Av.C.
Universități aprox. 601 m
Recreere
park
Loc de Joaca
Parcuri aprox. 207 m
supermarket
Gulliver
Supermarket aprox. 376 m
sports-ground
Teren sportiv
Terenuri sport aprox. 866 m
mall
Baneasa Shopping Center
Mall aprox. 1941 m

Detalii despre preț și costuri

Prețul pe piață

Preț cerut: 299.000 €

Preț min. zonă 155.000 €
Preț max. zonă 420.000 €

60% dintre proprietățile similare ca zonă și nr. camere au prețul cerut mai mic. mai multe...

Bine de știut: prețul unei proprietăți este influențat și de alte caracteristici, cum ar fi: vechime, localizare, vecinătăți, suprafață, compartimentare, amenajări, dotări, etc. mai puțin...

Costuri cu achiziția

Fără credit
13.173 RON
Credit ipotecar
15.556 RON
Noua casă
1.664 RON+ taxe notariale

i

Costuri adiționale mai puțin știute la achiziție: taxe notariale, comisioane etc.

Proprietăți similare

Apartament cu 3 camere decomandat, mobilat în Băneasa
285.000 €
București, Băneasa
3 camere
70 mp
Etaj 3
Apartament cu 3 camere semidecomandat, mobilat în Băneasa
319.000 €
București, Băneasa
3 camere
72,88 mp
Etaj 3
Apartament cu 3 camere decomandat, mobilat în Băneasa
295.000 €
București, Băneasa
3 camere
71,58 mp
Etaj 5

Detalii de contact

Abonează-te la newsletter să fii primul care primește cele mai noi recomandări de proprietăți și sfaturi de la experți.

CONTACT

Creează alertă

Salvează căutarea ca să primești pe email ultimele anunțuri publicate

Apartamente cu 3 camere de vânzare în zona Băneasa, Sector 1