Apartament 3 camere | Bloc Nou Finalizat | Baneasa

200.000 € + TVA

Băneasa, București

Nr. cam.:
3
Sup. utilă:
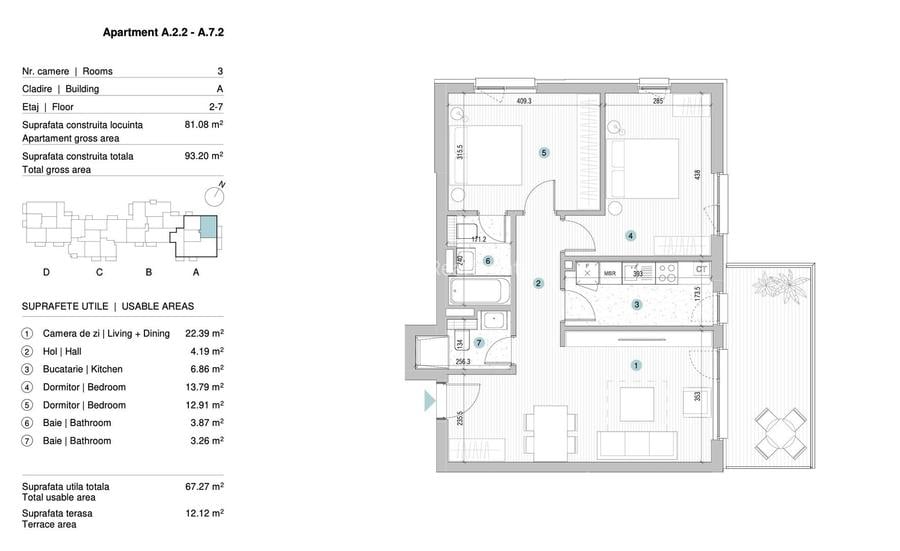
67,27 mp
Etaj:
3 / 7
An constr.:
2023 (Finalizată)
  • • Comision 0%
  • • Locație aproximativă

Descriere apartament

***PENTRU MAI MULTE OFERTE ACCESATI Rivera Real Estate va prezinta un apartament cu 3 camere intr-un bloc nou finalizat situat in zona Baneasa. Proiectul vine la pachet cu o serie de avantaje remarcabile: > Locatie: Situat intr-o zona Premium - Baneasa, acest proiect ofera o pozitie privilegiata fiind in apropiere de Parcul Herastrau. > Constructie si materiale de cea mai buna calitate, tamplarie de aluminiu si finisaje de inalta calitate. > Raport calitate-pret excelent. Complexul dispune de locuri parcare subterana si supraterana care se achizitioneaza separat. Pretul apartamentului este 200.000 Euro + TVA 21% - Parcare subterana - 19.000 EUR; - Parcare supraterana acoperita - 16.000 EUR; - Parcare supraterana - 15.000 EUR; - Parcare subterana in sistem Klaus - 9.500 EUR. ***Pozele sunt din showroom. Apartamentul este compartimentat identic dar se viinde nemobilat. ***COMISION 0%
Citește mai mult Citește mai puțin
Confort lux Semidecomandat Curte comună Aer condiționat Centrală proprie Încălzire prin pardoseală

Detalii apartament

ID anunț: XBBF1007J Copiat! 275456381 Copiat!
Actualizat în: 20 Aprilie 2026
Suprafață construită: 81.08 mp
Nr. bucătării: 1
Nr. băi: 2
Structură rezistență: Beton
Tip imobil: Bloc de apartamente
Regim înălțime: P+7E
Nr. terase: 1

Utilități

Pereți
Faianță Vopsea lavabilă
Podele
Gresie Parchet
Ușă intrare
Metal
Izolații termice
Exterior
Ferestre cu geam termopan
Aluminiu
Contorizare
Apometre Contor gaz
Alte spații utile
Terasă
Facilități imobil
Lift
Utilități
Curent Apă Canalizare Gaze
Amenajare străzi
Iluminat stradal Mijloace de transport în comun Asfaltate
Comision
0%

Vecinătăți:

Casa Presei, Petrom City

Disponibilitate proprietate:

Imediat

Puncte de interes

Mijloace transport
bus-station
Statie Foradex 148, 149, 112
Stații autobuz aprox. 267 m
bus-station
statie Combinatul Fondului Plastic 148, 149, 112
Stații autobuz aprox. 404 m
tram-station
Cartier Damaroaia
Stații tramvai aprox. 921 m
metro-station
Stație metrou "Jiului"
Stații metrou aprox. 1782 m
Școală
school
Colegiul Tehnic "Media"
Școli aprox. 332 m
school
Grup Scolar de arte si meserii Dimitrie Paciurea
Școli aprox. 341 m
kindergarten
Gradinita cu program prelungit Winnie
Gradinițe aprox. 1225 m
university
Bioterra (en)
Universități aprox. 1341 m
Recreere
sports-ground
Teren sportiv
Terenuri sport aprox. 308 m
supermarket
Crystal System S.R.L.
Supermarket aprox. 519 m
park
Loc de joaca
Parcuri aprox. 793 m
public-square
Piata Montreal
Piețe publice aprox. 1452 m

Detalii despre preț și costuri

Prețul pe piață

Preț cerut: 200.000 €

Preț min. zonă
Preț max. zonă

58% dintre proprietățile similare ca zonă și nr. camere au prețul cerut mai mic. mai multe...

Bine de știut: prețul unei proprietăți este influențat și de alte caracteristici, cum ar fi: vechime, localizare, vecinătăți, suprafață, compartimentare, amenajări, dotări, etc. mai puțin...

Insight premium disponibil după login

Costuri cu achiziția

Fără credit
Credit ipotecar
Noua casă

i

Costuri adiționale mai puțin știute la achiziție: taxe notariale, comisioane etc.

Insight premium disponibil după login

Proprietăți similare

Apartament cu 2 camere decomandat, mobilat în Băneasa
195.000 €
București, Băneasa
2 camere
68 mp
Parter
Apartament cu 3 camere în Băneasa
219.900 € + TVA
București, Băneasa
3 camere
91 mp
Etaj 2
Apartament cu 2 camere semidecomandat, mobilat în Băneasa
195.000 €
București, Băneasa
2 camere
64 mp
Etaj 3

Detalii de contact

Rivera Real Estate

Silviu Amisculesei Partner Head of Sales

Rivera Real Estate
PRO

Abonează-te la newsletter să fii primul care primește cele mai noi recomandări de proprietăți și sfaturi de la experți.

CONTACT

Creează alertă

Salvează căutarea ca să primești pe email ultimele anunțuri publicate

Apartamente noi cu 3 camere de vânzare în zona Băneasa, Sector 1