SI Development Group va prezinta spre vanzare un apartament de 4 camere, situat in zona Iancu Nicolae, intr-un imobil boutique exclusivist, conceput pentru un stil de viata modern, confortabil si rafinat.
Cu o suprafata generoasa de peste 168 mp utili, incluzand terasele, aceasta proprietate se adreseaza celor care cauta mai mult decat un simplu apartament — un spatiu echilibrat, luminos si bine gandit, intr-una dintre cele mai apreciate zone rezidentiale din nordul capitalei.
Parte dintr-un proiect restrans, cu doar 17 unitati, apartamentul ofera intimitate, liniste si un nivel ridicat de calitate, intr-o comunitate selecta.
____________________________________________________
PROIECT & ARHITECTURA :
Imobilul este realizat pe structura din beton armat, cu fatada ventilata placata cu materiale premium Dekton, fiind gandit pentru durabilitate, eficienta energetica si un design contemporan.
→ Regim de inaltime: 2S + P + 4E
→ Parcare subterana pe doua niveluri
→ Comunitate restransa – doar 17 apartamente
→ Termen de finalizare: Septembrie 2026
Tehnologiile integrate asigura un confort superior:
→ Pompa de caldura individuala
→ Incalzire in pardoseala
→ Ventiloconvectoare pentru racire
→ Sistem smart home Grenton
_______________________________________________________
DESIGN & FINISAJE :
Fiecare detaliu este atent ales pentru a crea un ambient modern si elegant:
→ Tamplarie Schuco, cu suprafete vitrate ample
→ Parchet triplustratificat
→ Usi filomuro pentru un design minimalist
→ Obiecte sanitare Villeroy & Boch
→ Baterii premium Gessi
→ Balcoane cu pardoseala flotanta si balustrade din sticla
_______________________________________________________
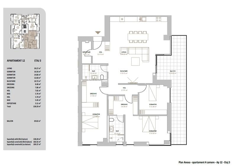
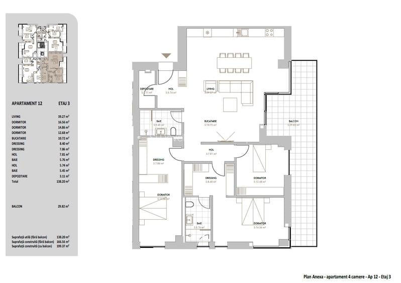
SUPRAFETE :
→ Suprafata utila: 138.20 mp
→ Suprafata balcon: 29.82 mp
→ Suprafata utila totala: 168.02 mp
→ Suprafata construita: 199.37 mp
_______________________________________________________
COMPARTIMENTARE :
Spatiul este organizat eficient, cu delimitare clara intre zona de zi si zona de noapte:
→ Living generos, cu zona de dining si acces catre terasa
→ Bucatarie open space, integrata natural in zona de zi
→ 3 dormitoare luminoase si bine proportionate
→ Dormitor matrimonial cu dressing
→ Dressinguri suplimentare si spatii de depozitare
→ 2 bai
_______________________________________________________
LOCALIZARE :
Pozitionat in zona Iancu Nicolae, unul dintre cele mai cautate repere rezidentiale din nordul Bucurestiului, apartamentul beneficiaza de acces rapid catre principalele puncte de interes:
→ Scoli internationale: American School, British School, Cambridge School
→ Baneasa Shopping City, Jolie Ville, restaurante si cafenele
→ Padurea Baneasa si zone de recreere
→ Zona de business Pipera – Barbu Vacarescu
→ Aeroportul Otopeni
Zona este recunoscuta pentru comunitatea internationala, siguranta si calitatea vietii.
_______________________________________________________
DETALII FINANCIARE :
→ Apartament nr. 12, etaj 3
→ Pret: 518.892 Euro + TVA
→ Comision 0% pentru cumparator
→ Posibilitate achizitie locuri de parcare subterane si boxa, contra-cost.
→ Oferim asistenta gratuita prin brokeri de credite parteneri, pentru obtinerea celei mai avantajoase solutii de finantare.
_______________________________________________________
PREDARE :
→ Termen estimat: Septembrie 2026
→ Predare complet finisata, conform standardelor proiectului
_______________________________________________________
Nota: Suprafetele sunt preluate din documentatia tehnica a dezvoltatorului si pot exista mici diferente fata de masuratorile finale.
_______________________________________________________
Pentru prezentare completa, schite i detalii suplimentare si vizionari, va stam la dispozitie atat pe site-urile de specialitate, WhatsApp cat si telefonic.
Citește mai mult
Citește mai puțin
Confort lux
Semidecomandat
Acceptă animale de companie
Nemobilat
1 Balcon / Terasă / Logie
Ventiloconvectoare
Pompă caldură
2 Parcări
Asfaltate
Iluminat stradal
Mijloace de transport în comun
Comision
0%
Vecinătăți:
EDUCATIE
→ American School of Bucharest
→ Cambridge School of Bucharest
→ Mark Twain International School
→ British School of Bucharest
→ Olga Gudynn International School
SHOPPING & SUPERMARKETURI
→ Lidl Iancu Nicolae
→ Mega Image Iancu Nicolae
→ Jolie Ville Galleria
→ Baneasa Shopping City
→ Metro Baneasa
91%dintre proprietățile similare ca zonă și nr. camere au prețul cerutmai mic.
mai multe...
Bine de știut: prețul unei proprietăți este influențat și de alte caracteristici, cum ar fi: vechime, localizare, vecinătăți, suprafață, compartimentare, amenajări, dotări, etc.
mai puțin...
Costuri cu achiziția
Fără credit
20.722 RON
Credit ipotecar
24.038 RON
Noua casă
2.785 RON+ taxe notariale
i
Costuri adiționale mai puțin știute la achiziție: taxe notariale, comisioane etc.
Sediul central - Timișoara
Bulevardul Victor Babeș nr. 2, 300230, Timișoara, România
Tel: +40.374.40.44.98 / Fax: +40.256.401.179
Email: suport@imobiliare.ro
Luni - Vineri 08:00 - 20:00
Punct de lucru - București: Iride Business Park, Bld. Dimitrie
Pompeiu 9-9A, Clădirea B2B,
020335, Sector 2, București, România
CONTACT
Sediul central - Timișoara
Bulevardul Victor Babeș nr. 2, 300230, Timișoara, România
Tel: +40.374.40.44.98 / Fax: +40.256.401.179
Email: suport@imobiliare.ro
Luni - Vineri 08:00 - 20:00
Punct de lucru - București: Iride Business Park, Bld. Dimitrie
Pompeiu 9-9A, Clădirea B2B,
020335, Sector 2, București, România
BIO-MEDICA International S.A-Voluntari(cartierul Pipera) (en)
aprox.
1969 m
Phill
aprox.
620 m
Green Garlic Pub
aprox.
878 m
Restaurant Tecadra
aprox.
890 m
Studio 80
aprox.
1019 m
Complex turistic Casa Albă
aprox.
1928 m
Doncafe Brasserie
aprox.
1341 m
Unicredit Tiriac Bank (en)
aprox.
1943 m
UniCredit Bank - Ag. Pipera
aprox.
1954 m
Înainte să pleci...
Ești sigur că ai văzut și aceste proprietăți?
545.800 €
București, Băneasa
3 camere
109,58 mp
Etaj 4 / 5
482.000 €
București, Băneasa
4 camere
135 mp
Etaj 5 / 6
479.000 €
București, Băneasa
4 camere
157,31 mp
Etaj 1
Creează alertă
Salvează căutarea ca să primești pe email ultimele anunțuri publicate
Apartamente cu 4+ camere de vânzare în zona Băneasa, Sector 1
Cere detalii prin email
*
*
*
*
Detaliile tale de contact vor fi partajate cu Si Development Group
Statistici proprietate
Apartamente 4 camere de vânzare
350.000 €
Medie preț cerut la vânzare
2.993 €/mp
Medie preț cerut pe metru pătrat
1.800 €
Medie chirie lunară
Preț total2.665.929 RON (522.956 €)
Costuri cu achiziția20.722 RON
Preț de achiziție2.645.207 RON
Costuri cu achiziția20.722 RON
Comision agenție Întreabă agenţia
Onorariu notarial16.754 RON
Taxă înscriere OCPI3.968 RON
Preț de achiziție2.645.207 RON
Preț locuință2.645.207 RON
TVA 0%Inclus în prețul cerut
Cost total424.921 RON (83.353 €)
Avans (15%)396.781 RON
Cost achitat în prima lună4.102 RON
Costuri cu achiziția24.038 RON
Cost achitat în prima lună4.102 RON
Comision analiză dosar
400 RON - 900 RON
Taxă evaluare imobil(până la)
575 RON
Rata lunară (variabilă)11.783 RON
Asigurare anuală imobil2.645 RON
Arhivă electronică102 RON
Poliță PAD130 RON
Asigurare de viață/lună Costul este variabil. În funcție de banca aleasă, procentul variază între 0.0259% și 0.035% din soldul creditului.
Costuri cu achiziția24.038 RON
Comision agenție Întreabă agenţia
Onorariu notarial16.754 RON
Taxă întabulare OCPI3.968 RON
Autentificare contract credit3.316 RON
Preț de achiziție2.645.207 RON
Preț locuință2.645.207 RON
TVA 0%Inclus în prețul cerut
Preț de achiziție2.645.207 RON
Preț locuință2.645.207 RON
TVA 0%
Inclus în prețul cerut
Avans minim2.038.569 RON
Credit pe 30 de ani606.638 RON
Cost achitat în prima lună
Taxa evaluare imobil(până la)
575 RON
Rata lunară (variabilă)4.262 RON
Depozit colateral12.786 RON
Comision de garantare FNGCIMM220 RON
Asigurare anuală imobil2.645 RON
Poliță PAD130 RON
Tarif arhivă electronică102 RON
Costuri adiționale2.785 RON + taxe notariale
Asigurare viață și complexă (opțională)Costul este variabil. În funcție de banca aleasă, procentul variază între 0.0259% și 0.035% din soldul creditului
Onorariu notarialconform tarif notarial
Taxă întabulare OCPI2.785 RON
i
Toate valorile de mai sus sunt estimative și nu reprezintă în mod obligatoriu costurile exacte pe care le veți primi de la companiile/instituțiile prin care veți încheia tranzacția.