Bucurestii Noi, sos. Chitilei, ap. demisol, sup. 74.57mp, loc parcare

110.000 €

Bucureștii Noi, București

Nr. cam.:
2
Sup. utilă:
74,57 mp
Etaj:
Demisol
An constr.:
2019
  • • Locație exactă

Descriere apartament

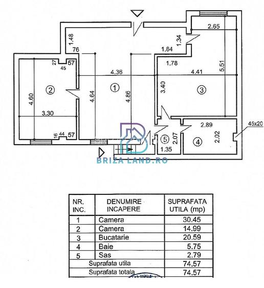
Agentia BrizaLand propune spre vanzare apartament 2 camere, localizat in cartier Bucurestii Noi, sos. Chitilei, Fortunei, an constructie 2019, situat la demisol, bloc compus din Demisol + Parter + 2 Etaje + Mansarda, semidecomandat, cu suprafata utila totala 74.57mp, loc de parcare la demisol. Compartimentare: sas, living, bucatarie inchisa, dormitor, baie. Structura de rezistenta : pe cadre de beton armat si pereti din caramida poroterm de 30cm. Situatie juridica: cadastru si intabulare; extras carte funciara liber de sarcini. in acte figureaza lot demisol. Finisaje: finisat modern 2024: gresie, faianta, parchet, usi interioare celulare, obiecte sanitare, centrala termica si calorifere, geamuri termopan, usa exterioara metalica; exterior izolat cu polistiren si tencuit decorativ. Transport: imobilul este situat la 2 minute de mers pe jos fata de statia stb si 17 minute fata de statia de metrou, calculat prin google maps. Puncte de interes : magazin MegaImage se afla la 3 minute de mers pe jos sau doua minute cu masina, zona comerciala Colosseum se afla la 3 minute cu masina, zona comerciala Afi City se afla la 5 minute cu masina, magazinul Lidl se afla la 13 minute de mers pe jos sau 4 minute cu masina, parcul Basilescu se afla la 11 minute de mers pe jos, piata 16 Februarie se afla la 10 minute de mers pe jos sau 4 minute cu masina, Gradinita nr. 47 la 3 minute cu masina; Scoala Gimnaziala Nr. 184 la 7 minute de mers pe jos, Scoala Gimnaziala Nr. 192 la 13 minute de mers pe jos sau 4 minute cu masina, in apropiere mai puteti gasi restaurante, cabinet stomatologic, veterinar, farmacii, bancomate, sali de sport, service/spalatorii auto, benzinarii, frizerii si altele. Alte detalii: apartamentul nu a fost locuit sunt doua intrari, intrare separata din curtea blocului si prin demisol apartamentul se vinde mobilat ca in poze; loc de parcare demisol; interfon, internet, cablu tv, supraveghere video. nu se accepta credit Pret : 110.000 euro
Citește mai mult Citește mai puțin
Confort 1 Semidecomandat Calorifere Centrală imobil 1 Parcare 1 Garaj

Detalii apartament

ID anunț: X9GH0003Q Copiat! 268723930 Copiat!
Actualizat în: 09 August 2025
Nr. bucătării: 1
Nr. băi: 1
Structură rezistență: Beton
Tip imobil: Bloc de apartamente
Regim înălțime: D+P+2E+M

Utilități

Destinație
Rezidențial Birouri
Utilități
Curent Apă Canalizare Gaze
Internet
Cablu
Amenajare străzi
Asfaltate Iluminat stradal Mijloace de transport în comun
Comision
conventional%

Puncte de interes

Mijloace transport
tram-station
Statia Mezes linia 45
Stații tramvai aprox. 206 m
bus-station
Capat Mezes linii : 45,112.
Stații autobuz aprox. 209 m
train-station
Gara - Halta Pajura - zisa si Triaj
Stații tren aprox. 770 m
metro-station
Acces stația Parc Bazilescu (M4)
Stații metrou aprox. 926 m
Școală
school
Scoala Generala nr 183 Bucuresti
Școli aprox. 396 m
school
Scoala Generala Nr. 183
Școli aprox. 406 m
kindergarten
Gradinita Nr. 47
Gradinițe aprox. 781 m
kindergarten
Gradinita de copii nr.47
Gradinițe aprox. 790 m
Recreere
park
Parc
Parcuri aprox. 345 m
supermarket
City Shop Non-Stop
Supermarket aprox. 408 m
sports-ground
Teren sportiv
Terenuri sport aprox. 688 m
restaurant
"La linie", drink&gossip
Restaurant aprox. 788 m

Detalii despre preț și costuri

Prețul pe piață

Preț cerut: 110.000 €

Preț min. zonă
Preț max. zonă

92% dintre proprietățile similare ca zonă și nr. camere au prețul cerut mai mare. mai multe...

Bine de știut: prețul unei proprietăți este influențat și de alte caracteristici, cum ar fi: vechime, localizare, vecinătăți, suprafață, compartimentare, amenajări, dotări, etc. mai puțin...

Insight premium disponibil după login

Costuri cu achiziția

Fără credit
Credit ipotecar
Noua casă

i

Costuri adiționale mai puțin știute la achiziție: taxe notariale, comisioane etc.

Insight premium disponibil după login

Proprietăți similare

Apartament cu 3 camere semidecomandat în Bucureștii Noi
119.900 €
București, Bucureștii Noi
3 camere
57,94 mp
Etaj 2
Apartament cu 2 camere decomandat în Bucureștii Noi
117.500 €
București, Bucureștii Noi
2 camere
41 mp
Parter
Apartament cu 2 camere semidecomandat, mobilat în Bucureștii Noi
112.500 €
București, Bucureștii Noi
2 camere
42,01 mp
Etaj 3 / 4

Detalii de contact

BRIZA LAND SRL

Bunea Bogdan admin

3.67(10 review-uri)

BRIZA LAND SRL
PRO

Abonează-te la newsletter să fii primul care primește cele mai noi recomandări de proprietăți și sfaturi de la experți.

CONTACT

Creează alertă

Salvează căutarea ca să primești pe email ultimele anunțuri publicate

Apartamente cu 2 camere de vânzare în zona Bucureștii Noi, Sector 1