5

Duplex 3camere/Str Miercani/Imobil 2025

253.500 €

Bucureștii Noi, București

Nr. cam.:
3
Sup. utilă:
97 mp
Etaj:
1 / 2
An constr.:
2025 (Finalizată)
  • • Locație exactă

Descriere apartament

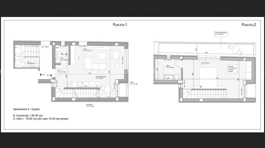
Descriere COMISION 0 Duplex de vânzare, construcție 2025, situat într-o zonă rezidențială de case și vile foarte bine cotată și liniștită, la circa 7minute de mers de metrou și parcul Bazilescu(Miercani 26) Bloc cu regim redus de înălțime P+2, cu doar trei unități locative. Apartamentul este dispus pe două niveluri etaj1+etaj2 și are următoarele suprafețe: Etaj2 -living 18 mp -bucatarie 14,60mp -grup sanitar 3,10 mp -terasa 11,90mp Etaj1 -dormitor 12,40mp -baie 3,60 mp -dormitor 16,45 mp -baie 4,80mp -hol,scara12,30 mp (compartimentarea o regăsiți anexata la fotografiile de prezentare) Finisat complet, încălzire prin pardoseală, centrală termică proprie, Bucătărie mobilată și utilată. Prețul include loc de parcare în incinta imobilului Pentru detalii suplimentare și vizionare vă stăm la dispoziție. Colaborăm cu brokeri de încredere care te pot îndruma către cele mai bune oferte de finanțare disponibile.
Citește mai mult Citește mai puțin
Confort 1 Decomandat Nemobilat 1 Balcon / Terasă / Logie Curte comună Centrală proprie Încălzire prin pardoseală 1 Parcare Renovat

Detalii apartament

ID anunț: XD1O0001O Copiat! 275390057 Copiat!
Actualizat în: 15 Mai 2026
Suprafață utilă totală: 97 mp
Suprafață construită: 117 mp
Nr. bucătării: 1
Nr. băi: 3
Tip imobil: Bloc de apartamente
Tip tranzacție: De vânzare prin agent
Regim înălțime: P+2E
Modalitate de plată: Cash sau Credit
Mobilat: Nemobilat

Utilități

Destinație
Rezidențial
Pereți
Faianță Vopsea lavabilă Vinarom
Podele
Gresie Parchet
Ușă intrare
Metal
Uși interior
Celulare
Izolații termice
Exterior Interior
Ferestre cu geam termopan
PVC
Contorizare
Contor gaz Apometre Contor căldură
Bucătărie
Utilată Mobilată
Electrocasnice
Aragaz Hotă Mașină spălat vase Frigider
Diverse
Scară interioară
Alte spații utile
Terasă WC Serviciu
Utilități
Gaze Curent Canalizare Apă
Internet
Fibră optică
Amenajare străzi
Asfaltate

Certificat energetic:

Clasa energetică: A

Puncte de interes

Mijloace transport
metro-station
Laminorului (M4)
Stații metrou aprox. 618 m
bus-station
Statia Laromet, linia 97,N117, 304
Stații autobuz aprox. 637 m
tram-station
Jimbolia
Stații tramvai aprox. 665 m
metro-station
Acces stația Parc Bazilescu (M4)
Stații metrou aprox. 1038 m
Școală
kindergarten
Gradinita Ursuletu
Gradinițe aprox. 732 m
school
Scoala numarul 179 clasele I-VIII
Școli aprox. 803 m
kindergarten
Gradinita de copii nr.47
Gradinițe aprox. 836 m
university
Universitatea Biotera
Universități aprox. 1845 m
Recreere
sports-ground
Teren sportiv
Terenuri sport aprox. 250 m
park
Parc
Parcuri aprox. 366 m
cafe
Cafe Bar
Cafenea aprox. 604 m
supermarket
CRIS-TIM
Supermarket aprox. 607 m

Istoricul prețurilor

Acces la informații premium după autentificare
Login Gratuit

Detalii despre preț și costuri

Prețul pe piață

Preț cerut: 253.500 €

Preț min. zonă
Preț max. zonă

62% dintre proprietățile similare ca zonă și nr. camere au prețul cerut mai mic. mai multe...

Bine de știut: prețul unei proprietăți este influențat și de alte caracteristici, cum ar fi: vechime, localizare, vecinătăți, suprafață, compartimentare, amenajări, dotări, etc. mai puțin...

Acces la informații premium după autentificare
Login Gratuit

Costuri cu achiziția

Fără credit
Credit ipotecar
Noua casă

i

Costuri adiționale mai puțin știute la achiziție: taxe notariale, comisioane etc.

Acces la informații premium după autentificare
Login Gratuit

Proprietăți similare

Apartament cu 4 camere decomandat în Bucureștii Noi
255.000 €
București, Bucureștii Noi
4 camere
99 mp
Etaj 1 / 4
Apartament cu 4 camere decomandat în Bucureștii Noi
255.000 €
București, Bucureștii Noi
4 camere
99 mp
Etaj 1
Apartament cu 3 camere decomandat în Bucureștii Noi
259.000 €
București, Bucureștii Noi
3 camere
112,89 mp
Parter / 4

Detalii de contact

Abonează-te la newsletter să fii primul care primește cele mai noi recomandări de proprietăți și sfaturi de la experți.

CONTACT

Creează alertă

Salvează căutarea ca să primești pe email ultimele anunțuri publicate

Apartamente noi cu 3 camere de vânzare în zona Bucureștii Noi, Sector 1