3

AP. 2 CAMERE CHITILA, RENOVAT, BLOC NOU, CENTRALA, COMISION 0%

85.000 €

Chitila, București

Nr. cam.:
2
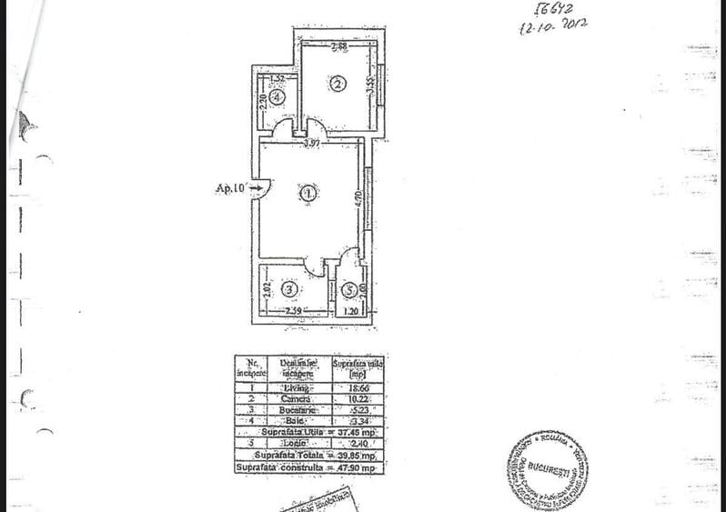
Sup. utilă:
40 mp
Etaj:
3 / 3
An constr.:
2013 (Finalizată)
  • • Comision 0%
  • • Locație aproximativă
  • • Vizionare prin apel video

Descriere apartament

AM Imobiliare va prezinta spre vanzare un apartament de 2 camere, decomandat, nemobilat, situat in zona Chitila, mai exact pe strada Crinului. Acesta este amplasat la etajul 3/3 fara lift, intr-un imobil nou din anul 2013 si se intinde pe o suprafata utila de 40 mp, inclusiv 1 balcon de 2,40 mp. Confortul termic este asigurat cu ajutorul centralei proprii pe gaz cu incalzire in calorifere. Bucataria este inchisa, pentru confortul zilnic. Apartamentul este complet renovat in anul 2025. Pret: 85,000 euro - COMISION 0% Daca doresti mai multe detalii, nu ezita sa ne contactezi, te vom insoti la vizionare si iti vom oferi toate detaliile de care ai nevoie! De asemenea te invit pe site-ul agentiei noastre, , pentru a vedea si alte proprietati pe care le avem in portofoliu.
Citește mai mult Citește mai puțin
Confort 1 Decomandat Nemobilat 1 Balcon Calorifere Centrală proprie Renovat

Detalii apartament

ID anunț: XC2M10E75 Copiat! 274944834 Copiat!
Actualizat în: 13 Februarie 2026
Suprafață construită: 50 mp
Nr. bucătării: 1
Nr. băi: 1
Structură rezistență: Beton
Tip imobil: Bloc de apartamente
Regim înălțime: P+3E

Utilități

Destinație
Rezidențial
Pereți
Faianță Vopsea lavabilă
Podele
Gresie Parchet
Ușă intrare
Metal
Uși interior
Celulare
Izolații termice
Exterior
Ferestre cu geam termopan
PVC
Contorizare
Apometre Contor căldură Contor gaz
Diverse
Senzor de fum
Dotări imobil
Acoperiș Interfon
Utilități
Curent Apă Canalizare CATV Gaze Telefon
Acces internet
Cablu Wireless
Servicii imobil
Supraveghere video
Amenajare străzi
Iluminat stradal Mijloace de transport în comun Asfaltate
Comision
0%

Disponibilitate proprietate:

Imediat

Puncte de interes

Mijloace transport
tram-station
Crinului
Stații tramvai aprox. 71 m
bus-station
Statia Crinului, linia N118, 45
Stații autobuz aprox. 79 m
metro-station
Metrorex. Stația Jiului (M4)(2011)
Stații metrou aprox. 561 m
train-station
Gara - Halta Pajura - zisa si Triaj
Stații tren aprox. 900 m
Școală
school
Scoala ajutatoare
Școli aprox. 467 m
school
Scoala Nr. 182 Alexandru Costescu
Școli aprox. 495 m
kindergarten
Gradinita 97
Gradinițe aprox. 524 m
kindergarten
Gradinita Ursuletu
Gradinițe aprox. 1068 m
Recreere
supermarket
Supermarket NIC
Supermarket aprox. 501 m
park
Parc
Parcuri aprox. 615 m
sports-ground
Teren sportiv
Terenuri sport aprox. 657 m
restaurant
"La linie", drink&gossip
Restaurant aprox. 822 m

Detalii despre preț și costuri

Prețul pe piață

Preț cerut: 85.000 €

Preț min. zonă 76.500 €
Preț max. zonă 175.000 €

60% dintre proprietățile similare ca zonă și nr. camere au prețul cerut mai mare. mai multe...

Bine de știut: prețul unei proprietăți este influențat și de alte caracteristici, cum ar fi: vechime, localizare, vecinătăți, suprafață, compartimentare, amenajări, dotări, etc. mai puțin...

Costuri cu achiziția

Fără credit
5.404 RON
Credit ipotecar
6.830 RON
Noua casă
573 RON+ taxe notariale

i

Costuri adiționale mai puțin știute la achiziție: taxe notariale, comisioane etc.

Proprietăți recomandate

Detalii de contact

AM IMOBILIARE

Mihaela Mariuta Manager

4.55(23 review-uri)

AM IMOBILIARE
PRO

Abonează-te la newsletter să fii primul care primește cele mai noi recomandări de proprietăți și sfaturi de la experți.

CONTACT

Creează alertă

Salvează căutarea ca să primești pe email ultimele anunțuri publicate

Apartamente cu 2 camere de vânzare în zona Chitila, Sector 1