8

2 camere I bloc 2013 I etaj 3/3 I Bucurestii Noi I Damaroaia

130.000 €

Dămăroaia, București

Nr. cam.:
2
Sup. utilă:
46 mp
Etaj:
3
An constr.:
2013
  • • Comision 0%
  • • Locație aproximativă

Descriere apartament

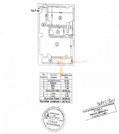
Avem plăcerea de a vă prezenta spre vanzare un apartament de 2 camere, situat in zona Bucurestii Noi, in apropiere de Damaroaia, pe str Piatra Morii, aflat in apropierea mijloacelor de transport in comun precum: -stația de metrou Jiului, care se află la o distanță de 10 minute de mers pe jos -liniile STB 53, 331 aflate la 1 minut de mers pe jos. Apartamentul se află la etajul 3, al unui bloc de 3 etaje construit in anul 2013. Oferă o suprafață utilă de 46mp, la care se adauga 2 balcoane insumand 7mp, rezultând o suprafață totală de 53mp. Acesta prezintă finisaje de calitate ridicată. Încălzirea se realizează prin centrala termica proprie cu calorifere, confortul termic fiind asigurat. Apartamentul se vinde precum in poze, mobilat/utilat. Nu ratați oportunitatea de a achiziționa acest apartament pentru cei care doresc să locuiasca într-o zonă liniștită și bine conectată la facilitățile orașului. Pentru o vizionare sau mai multe informații, vă rugăm să ne contactați. Contact: Destine Imobiliare este aici pentru a vă asigura că fiecare pas al tranzacției imobiliare se desfășoară fără probleme și cu succes. Despre noi: Destine Imobiliare este o agenție imobiliară inovatoare, dedicată să ofere soluții optime și de încredere pentru clienții săi.
Citește mai mult Citește mai puțin
Confort 2 Semidecomandat Mobilat 2 Balcoane / Terase / Logii Aer condiționat Centrală proprie Bine întreținut (Bună)

Detalii apartament

ID anunț: XBCG103V5 Copiat! 275398380 Copiat!
Actualizat în: 19 Mai 2026
Suprafață construită: 63.1 mp
Nr. bucătării: 1
Nr. băi: 1
Structură rezistență: Cărămidă
Tip imobil: Bloc de apartamente
Tip tranzacție: De vânzare prin agent
Regim înălțime: P+3E
Modalitate de plată: Cash sau Credit

Utilități

Pereți
Vopsea lavabilă Var Faianță
Podele
Parchet Gresie
Ușă intrare
Metal
Uși interior
Lemn
Izolații termice
Exterior Interior
Ferestre cu geam termopan
PVC PVC
Contorizare
Apometre Contor gaz
Bucătărie
Mobilată Utilată
Electrocasnice
Mașină de spălat Frigider Aragaz Mașină spălat vase TV Cuptor microunde Hotă
Facilități imobil
Interfon
Utilități
Curent Apă Canalizare Gaze CATV Telefon
Servicii imobil
Supraveghere video
Amenajare străzi
Asfaltate Iluminat stradal Mijloace de transport în comun
Comision
0%

Certificat energetic:

Clasa energetică: A

Puncte de interes

Mijloace transport
bus-station
Statie Capat Cartier Damaroaia linii : 331.
Stații autobuz aprox. 51 m
bus-station
Cartier Damaroaia
Stații autobuz aprox. 64 m
tram-station
Statie Cartier Damaroaia Tv24
Stații tramvai aprox. 75 m
metro-station
Acces stația Parc Bazilescu N117, 112, 20, 97, M4
Stații metrou aprox. 1014 m
Școală
school
Scoala Nr. 177 Nicolae Grigorescu
Școli aprox. 150 m
school
Scoala Gimnaziala Nicolae Grigorescu Nr. 177
Școli aprox. 158 m
kindergarten
Gradinita cu program prelungit Winnie
Gradinițe aprox. 680 m
university
Universitatea Biotera
Universități aprox. 1560 m
Recreere
sports-ground
Teren sportiv
Terenuri sport aprox. 260 m
park
Parc
Parcuri aprox. 350 m
restaurant
Rotiserie
Restaurant aprox. 491 m
supermarket
Profi
Supermarket aprox. 584 m

Detalii despre preț și costuri

Prețul pe piață

Preț cerut: 130.000 €

Preț min. zonă
Preț max. zonă

86% dintre proprietățile similare ca zonă și nr. camere au prețul cerut mai mic. mai multe...

Bine de știut: prețul unei proprietăți este influențat și de alte caracteristici, cum ar fi: vechime, localizare, vecinătăți, suprafață, compartimentare, amenajări, dotări, etc. mai puțin...

Acces la informații premium după autentificare
Login Gratuit

Costuri cu achiziția

Fără credit
Credit ipotecar
Noua casă

i

Costuri adiționale mai puțin știute la achiziție: taxe notariale, comisioane etc.

Acces la informații premium după autentificare
Login Gratuit

Proprietăți similare

Apartament cu 2 camere semidecomandat, mobilat în Dămăroaia
119.900 €
București, Dămăroaia
2 camere
42 mp
Etaj 1 / 3
Apartament cu 2 camere decomandat în Pipera
135.520 €
București, Pipera
2 camere
43,57 mp
Etaj 2
Apartament cu 2 camere în Pipera
140.965 €
București, Pipera
2 camere
52,7 mp
Etaj 1

Detalii de contact

DESTINE IMOBILIARE

Calin Chivu Agent Imobiliar

DESTINE IMOBILIARE

Abonează-te la newsletter să fii primul care primește cele mai noi recomandări de proprietăți și sfaturi de la experți.

CONTACT

Creează alertă

Salvează căutarea ca să primești pe email ultimele anunțuri publicate

Apartamente cu 2 camere de vânzare în zona Dămăroaia, Sector 1