24

Raritate absoluta in zona Domenii !

499.500 €

Domenii, București

Nr. cam.:
4
Sup. utilă:
147 mp
Etaj:
1 / 2
An constr.:
2025 (Finalizată)
  • • Exclusivitate
  • • Locație exactă
  • • Vizionare prin apel video

Descriere apartament

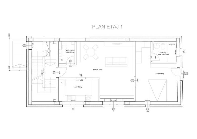
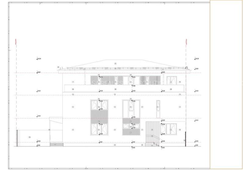
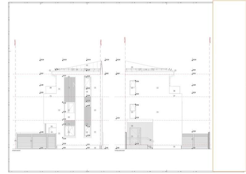
Pe o strada rezidentiala linistita din zona Pietei Domenii, intr-un cadru elegant si verde, se afla o vila complet noua, finalizata in 2025 – o raritate autentica intr-o zona consacrata, unde majoritatea imobilelor sunt reconvertite sau supraetajate. Proprietatea cuprinde doar doua apartamente: parterul, pastrat de proprietar (care locuieste 11 luni pe an in strainatate), si duplexul de la etajele 1 si 2, disponibil acum spre vanzare. Practic, viitorul proprietar va beneficia de intimitatea si linistea unei vile aproape individuale, intr-o locatie cu prestigiu. Apartamentul se desfasoara pe doua niveluri si ofera o zona de zi bine proportionata, cu living si dining ce comunica natural cu bucataria separata, completata de 3 dormitoare, fiecare cu baie proprie, plus un grup sanitar suplimentar. In exterior, se afla o curte privata de cca. 50 mp, ideala pentru relaxare, gradinarit sau o zona lounge, precum si doua locuri de parcare in curte. Constructia este integral noua, realizata la standarde moderne, cu incalzire in pardoseala si finisaje contemporane, aflate acum in faza finala de montaj (parchet, usi interioare si bai). Imobilul se afla in ultimele etape de finisare, astfel ca in locul fotografiilor finale sunt disponibile planurile duplexului, fatada cladirii si o randare orientativa, menite sa ofere o imagine corecta asupra arhitecturii si compartimentarii. O proprietate rara si rafinata, potrivita celor care cauta liniste, discretie si calitate, intr-un imobil nou, cu doar doi proprietari si o atmosfera de vila individuala. ID intern: NEO011642.
Citește mai mult Citește mai puțin
Confort 1 Decomandat 1 Balcon / Terasă / Logie Centrală proprie 2 Parcări

Detalii apartament

ID anunț: X71S101L9 Copiat! 271232054 Copiat!
Actualizat în: 04 Martie 2026
Suprafață utilă totală: 147 mp
Suprafață construită: 179 mp
Nr. bucătării: 1
Nr. băi: 3
Structură rezistență: Altele
Tip imobil: Casă/Vilă
Regim înălțime: P+2E

Utilități

Destinație
Rezidențial
Izolații termice
Exterior

Puncte de interes

Mijloace transport
tram-station
Bd. Mihalache
Stații tramvai aprox. 343 m
bus-station
Bd. Maresal Averescu
Stații autobuz aprox. 345 m
trolleybus-station
Statie Cimitirul Sf. Vineri 65, 97, 86
Stații troleibuz aprox. 728 m
metro-station
Statie Grivita M4
Stații metrou aprox. 796 m
Școală
school
Gradinita Cami
Școli aprox. 75 m
school
Gradinita de copii nr.222
Școli aprox. 211 m
kindergarten
Gradinita nr. 222
Gradinițe aprox. 221 m
university
Facultatea de Biotehnologii
Universități aprox. 927 m
Recreere
park
Parc
Parcuri aprox. 321 m
supermarket
Mega Image Domenii Non-Stop
Supermarket aprox. 441 m
sports-ground
Teren sportiv
Terenuri sport aprox. 532 m
public-square
Piața Aviatorilor
Piețe publice aprox. 1449 m

Detalii despre preț și costuri

Prețul pe piață

Preț cerut: 499.500 €

Preț min. zonă
Preț max. zonă

79% dintre proprietățile similare ca zonă și nr. camere au prețul cerut mai mic. mai multe...

Bine de știut: prețul unei proprietăți este influențat și de alte caracteristici, cum ar fi: vechime, localizare, vecinătăți, suprafață, compartimentare, amenajări, dotări, etc. mai puțin...

Insight premium disponibil după login

Costuri cu achiziția

Fără credit
Credit ipotecar
Noua casă

i

Costuri adiționale mai puțin știute la achiziție: taxe notariale, comisioane etc.

Insight premium disponibil după login

Proprietăți recomandate

Detalii de contact

NEOCASA REAL ESTATE SOLUTIONS

Suport Clienti Consultant Imobiliar

NEOCASA REAL ESTATE SOLUTIONS
PRO

Abonează-te la newsletter să fii primul care primește cele mai noi recomandări de proprietăți și sfaturi de la experți.

CONTACT

Creează alertă

Salvează căutarea ca să primești pe email ultimele anunțuri publicate

Apartamente noi cu 4+ camere de vânzare în zona Domenii, Sector 1