2

De vanzare - Apartament cochet Domenii

420.000 €

Domenii, București

Nr. cam.:
3
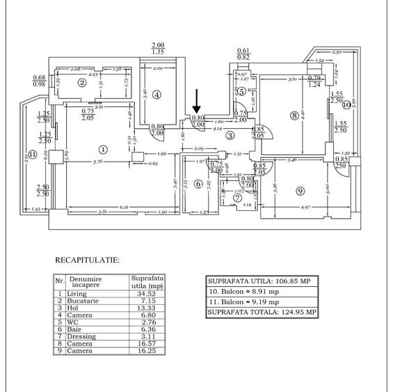
Sup. utilă:
125 mp
Etaj:
2 / 2
An constr.:
2000 (Finalizată)
  • • Comision 0%
  • • Exclusivitate
  • • Locație exactă

Descriere apartament

Comision 0% Cumparator!. Am placerea a va prezenta spre tranzactionare un apartament cu Suprafata Utila Totala de 125mp situat la etajul 2 al unui imobil cu regim de inaltime D+P+2+M. Imobilul este construit in anul 2000, cu structura pe cadre si plansee din beton armat si zidarie exterioara si interioara din caramida G.V.P., cu fundatie continua din beton armat. A fost achizitionat in 2017 de actualii proprietari si re-expertizat tehnic inclusiv pe structura. Imobilul a fost renovat complet si extins cu mansarda in anul 2018, apartamentat in anul 2021 cu numere cadastrale separate si intabulate individual. Toate lucrarile au fost efectuate cu autorizatii si cu furnizori autorizati (constructor, instalatii electrice, instalatii sanitare, acoperis, izolatii, instalatii gaz, interfon, etc). Se va oferi garantie completa pentru vicii ascunse 12 luni. Renovarea a fost atat la exterior cat si la interior. Toate instalatiile electrice, termice si apa / canalizare au fost schimbate complet, inclusiv canalizare, cămine, alimentare apa. La exterior, imobilul este izolat complet cu vata bazaltica, iar acoperisul este din tigla, izolat de asemenea cu vata bazaltica. Geamurile si usile de la terase sunt tripan, iar usile de acces in apartamente sunt metalice. Scara comuna de acces este din marmura. Imobilul nu are lift, dar proprietarul este dispus sa il instaleze pe costurile lor in termenul cel mai scurt, cu respectarea legii (urbanism + autorizatie). La interior, toate compartimentarile sunt din caramida. Usile de interior sunt Pinum. Toate obiectele sanitare / baterii / dus / cada sunt Ideal Standard. Incalzirea se face cu centrala termica proprie Viesmann Vitodens 50, cu distributie automata Purmo catre calorifere si termostat programabil individual pentru fiecare camera, cu automatizare. Utilitatile (gaz, electricitate) sunt separate pe fiecare apartament in parte, cu contracte de utilitati si contoare separate si cu citire la strada a contoarelor individuale. Toate reviziile (instalatie gaz, centrale termice) sunt efectuate la zi. Parcarea se face la comun in rampa (2 locuri), in fata imobilului (2 locuri) sau pe strada. Strada nu este aglomerata, fiind o strada cu o singura cale de acces, foarte linistita si ferita complet de trafic, cu o comunitate de vecini excelenta. Pentru detalii suplimentare si stabilire vizionari nu ezitati a ma contacta!.
Citește mai mult Citește mai puțin
Confort 1 Semidecomandat Mobilat Lux 2 Balcoane / Terase / Logii Aer condiționat Calorifere Centrală proprie 1 Parcare Renovat

Detalii apartament

ID anunț: XETS0002C Copiat! 275239277 Copiat!
Actualizat în: 11 Martie 2026
Suprafață utilă totală: 125 mp
Suprafață construită: 147 mp
Nr. bucătării: 1
Nr. băi: 2
Structură rezistență: Beton
Tip imobil: Bloc de apartamente
Regim înălțime: D+P+2E+M

Utilități

Destinație
Rezidențial
Pereți
Vopsea lavabilă
Podele
Parchet
Ușă intrare
Metal
Uși interior
Lemn
Izolații termice
Exterior
Ferestre cu geam termopan
PVC
Contorizare
Apometre Contor gaz
Bucătărie
Mobilată Utilată
Alte spații utile
WC Serviciu Terasă
Utilități
CATV Gaze Curent Canalizare Apă
Internet
Fibră optică Wireless Cablu
Amenajare străzi
Asfaltate Betonate Iluminat stradal Mijloace de transport în comun
Comision
0%

Vecinătăți:

Metrou 1 Mai
Bd. Ion Mihalache

Disponibilitate proprietate:

Maxim 60 zile!

Puncte de interes

Mijloace transport
bus-station
Statie R.A.R. N117, 105, 65, 97, 86
Stații autobuz aprox. 357 m
tram-station
Clabucet
Stații tramvai aprox. 407 m
metro-station
Metrorex Statia 1 Mai M4
Stații metrou aprox. 435 m
train-station
Halta CFR Bucuresti Basarab h
Stații tren aprox. 914 m
Școală
school
Clubul Sportiv Scolar nr.1 Pajura
Școli aprox. 187 m
school
Colegiul Tehnic Mircea cel Batran
Școli aprox. 270 m
kindergarten
Gradinita nr. 43
Gradinițe aprox. 368 m
university
Facultatea de Biotehnologii
Universități aprox. 474 m
Recreere
park
Parc
Parcuri aprox. 136 m
supermarket
Magazin Alimentar
Supermarket aprox. 241 m
sports-ground
Teren sportiv
Terenuri sport aprox. 321 m
public-square
Piata Montreal
Piețe publice aprox. 1339 m

Detalii despre preț și costuri

Prețul pe piață

Preț cerut: 420.000 €

Preț min. zonă 105.000 €
Preț max. zonă 412.000 €

i

Proprietate cu prețul cerut în afara intervalului mai multe...

Posibile explicații pentru faptul că prețul proprietății este peste cel maxim: imobil nou cu suprafață mare, are dotări și finisaje de lux.
Bine de știut: prețul unei proprietăți este influențat și de alte caracteristici, cum ar fi: vechime, localizare, vecinătăți, suprafață, compartimentare, amenajări, dotări, etc.

Costuri cu achiziția

Fără credit
17.319 RON
Credit ipotecar
20.214 RON
Noua casă
2.280 RON+ taxe notariale

i

Costuri adiționale mai puțin știute la achiziție: taxe notariale, comisioane etc.

Proprietăți similare

Apartament cu 3 camere decomandat în Domenii
396.550 € + TVA
București, Domenii
3 camere
91 mp
Etaj 1 / 3
Apartament cu 3 camere decomandat în Domenii
397.000 € + TVA
București, Domenii
3 camere
91,5 mp
Parter
Apartament cu 3 camere decomandat în Domenii
412.000 € + TVA
București, Domenii
3 camere
84 mp
Parter

Detalii de contact

MANCIU ESTATE

Claudiu Manciu

5.00(7 review-uri)

MANCIU ESTATE

Abonează-te la newsletter să fii primul care primește cele mai noi recomandări de proprietăți și sfaturi de la experți.

CONTACT

Creează alertă

Salvează căutarea ca să primești pe email ultimele anunțuri publicate

Apartamente cu 3 camere de vânzare în zona Domenii, Sector 1