Apartament tip Duplex 3 camere Domenii | Loc de parcare

187.500 €

Domenii, București

Nr. cam.:
3
Sup. utilă:
77 mp
Etaj:
Parter / 2
An constr.:
2021 (Finalizată)
  • • Locație aproximativă

Descriere apartament

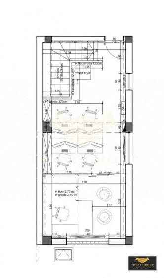
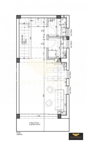
Va propunem un apartament tip duplex de trei camere in zona Domenii , in apropiere de mijloacele de transport in comun, parc si alte facilitati. Apartamentul este situat la parterul unui imobil finalizat in anul 2021, izolat termic pe exterior si securizat cu interfon. Dispune de o suprafata totala de 77mp, este decomandat si compartimentat astfel: living, bucatarie, doua dormitoare, doua bai, hol, si spatiii de depozitare. Finisaje de exceptie, import Italia. Parchet stratificat herringbone, placi ceramice dimensiuni mari, fototapet in grupuri sanitare, spatii depozitare, incalzire in pardoseala, centrala proprie, usi filomuro, supraveghere video. Achizitia se face de pe Persoana Juridica si se adauga TVA la acest pret. Apartamentul detine un loc de parcare si se achizitioneaza separat. *Proprietatea a fost verificata si este valabila, confirmarea fiind facuta, atat timp cat este la promovare. *Pentru mai multe detalii si pentru programarea unei vizionari, sunati in orice zi intre orele 09:00 si 21:00 inclusiv in week-end incepand cu ora 10:00 pana la 22:00.
Citește mai mult Citește mai puțin
Confort 1 Parțial mobilat 1 Balcon / Terasă / Logie Aer condiționat Calorifere Centrală proprie

Detalii apartament

ID anunț: XEK510E13 Copiat! 275386652 Copiat!
Actualizat în: 01 Aprilie 2026
Suprafață construită: 90 mp
Nr. bucătării: 1
Nr. băi: 2
Tip imobil: Bloc de apartamente
Regim înălțime: P+2E

Utilități

Destinație
Birouri
Pereți
Vopsea lavabilă Faianță
Podele
Parchet Gresie
Ușă intrare
Metal
Uși interior
Lemn
Izolații termice
Bloc izolat termic
Ferestre cu geam termopan
Aluminiu
Contorizare
Apometre Contor gaz
Bucătărie
Mobilată Utilată
Facilități imobil
Interfon
Utilități
Curent Apă Canalizare Gaze CATV
Amenajare străzi
Asfaltate
Comision
standard

Disponibilitate proprietate:

data_properties.property_availability.imediat

Puncte de interes

Mijloace transport
train-station
Halta CFR Bucuresti Basarab h
Stații tren aprox. 102 m
tram-station
George Valsan
Stații tramvai aprox. 291 m
metro-station
Metrorex. Stația Grivița (M4) (en)
Stații metrou aprox. 504 m
bus-station
Grivita (M4)
Stații autobuz aprox. 522 m
Școală
kindergarten
Gradinita Happy Tweety
Gradinițe aprox. 412 m
school
Gradinita Numarul 40
Școli aprox. 417 m
kindergarten
Gradinita nr 40
Gradinițe aprox. 418 m
university
Institutul de Cercetări Metalurgice
Universități aprox. 947 m
Recreere
supermarket
Mega Image Giulesti-Prunaru
Supermarket aprox. 308 m
sports-ground
Teren sportiv
Terenuri sport aprox. 437 m
park
Parc
Parcuri aprox. 507 m
restaurant
Fast-Food Mario Non-Stop
Restaurant aprox. 508 m

Detalii despre preț și costuri

Prețul pe piață

Preț cerut: 187.500 €

Preț min. zonă 105.000 €
Preț max. zonă 412.000 €

68% dintre proprietățile similare ca zonă și nr. camere au prețul cerut mai mare. mai multe...

Bine de știut: prețul unei proprietăți este influențat și de alte caracteristici, cum ar fi: vechime, localizare, vecinătăți, suprafață, compartimentare, amenajări, dotări, etc. mai puțin...

Costuri cu achiziția

Fără credit
9.343 RON
Credit ipotecar
11.252 RON
Noua casă
1.096 RON+ taxe notariale

i

Costuri adiționale mai puțin știute la achiziție: taxe notariale, comisioane etc.

Proprietăți similare

Apartament cu 2 camere semidecomandat, mobilat în Domenii
189.800 €
București, Domenii
2 camere
43,71 mp
Etaj 2 / 8
Apartament cu 2 camere, mobilat în Domenii
189.800 €
București, Domenii
2 camere
43,71 mp
Etaj 2 / 8
Apartament cu 2 camere decomandat, mobilat în Domenii
195.000 €
București, Domenii
2 camere
43 mp
Etaj 7 / 8

Detalii de contact

TRUST GROUP REAL ESTATE

Gabriel Maris Founder REALTOR

4.88(18 review-uri)

TRUST GROUP REAL ESTATE
PRO

Abonează-te la newsletter să fii primul care primește cele mai noi recomandări de proprietăți și sfaturi de la experți.

CONTACT

Creează alertă

Salvează căutarea ca să primești pe email ultimele anunțuri publicate

Apartamente noi cu 3 camere de vânzare în zona Domenii, Sector 1