1

Duplex 3 camere//Birou***Showroom***DOMENII//PARTER+ Demisol

180.500 € + TVA

Domenii, București

Nr. cam.:
3
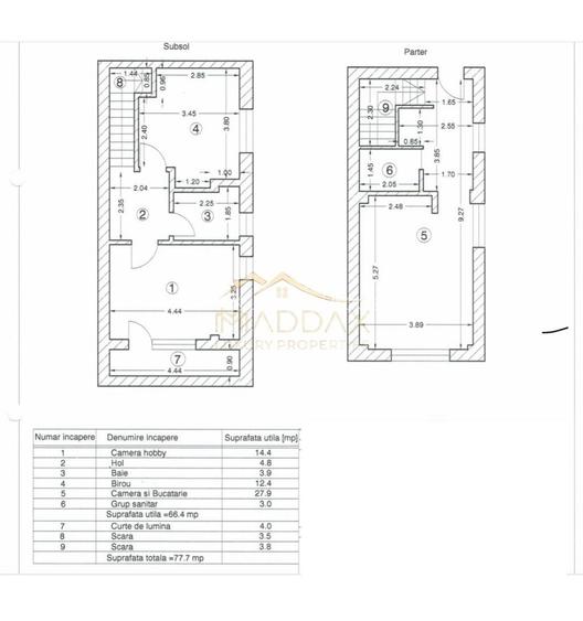
Sup. utilă:
66,4 mp
Etaj:
Demisol / 2
An constr.:
2021 (Finalizată)
  • • Locație aproximativă

Descriere apartament

MADDAX Luxury Properties va ofera oportunitatea de a deveni proprietarii unui duplex superb din zona Domenii, situat intr-un imobil de tip boutique cu 2 etaje si 6 apartamente, construit in anul 2021. Aceasta proprietate este inregistrata la ANAF ca spatiu comercial, fiind ideala ca locatie de business: cabinet medical/salon/birou avocatura/notariat/ateliere/cursuri etc. Actualmente este amenajat ca showroom pentru atelier de arhitectura si design. Amplasata intr-o zona linistita cu case si imobile cu regim mic de inaltime, in proximitatea statiilor pentru mijloacele de transport in comun (metrou Grivita - 2 minute, autobuze), scoli, gradinite, Parcul Ciresarii, Piata Domenii, restaurante, magazine si alte facilitati locale, aceasta proprietate reprezinta o alegere ideala pentru cei care cauta confort, rafinament si accesibilitate. Duplexul cu suprafata utila 66.4 mp, avand compartimentare open space pe fiecare nivel, dispune de: * 2 Grupuri sanitare * Chicineta utilata. * Finisaje de exceptie, importate din Italia, parchet stratificat herringbone, placi ceramice de dimensiuni mari, fototapet in grupurile sanitare, usi filomoro, * Spatii de depozitare, * Incalzire in pardoseala, * Centrala proprie. Proprietatea dispune de un loc de parcare suprateran, inclus in pret + un loc de parcare extra. Pentru mai multe detalii, suntem aici pentru tine, Echipa MADDAX
Citește mai mult Citește mai puțin
Confort lux Decomandat Mobilat Lux Aer condiționat Centrală proprie Încălzire prin pardoseală 1 Parcare

Detalii apartament

ID anunț: XDJC10796 Copiat! 275403798 Copiat!
Actualizat în: 04 Aprilie 2026
Suprafață construită: 77.7 mp
Nr. bucătării: 1
Nr. băi: 2
Structură rezistență: Cărămidă
Tip imobil: Bloc de apartamente
Regim înălțime: S+D+P+2E
Nr. terase: 1

Utilități

Pereți
Tapet Var
Podele
Parchet
Ușă intrare
Metal
Uși interior
Celulare
Izolații termice
Exterior Interior
Contorizare
Contor căldură Contor gaz
Bucătărie
Mobilată
Electrocasnice
Aragaz Frigider Hotă Mașină spălat vase
Diverse
Scară interioară Sistem de alarmă
Alte spații utile
WC Serviciu Terasă
Facilități imobil
Acoperiș Interfon Videointerfon
Utilități
Curent Apă Canalizare CATV Gaze Telefon
Internet
Cablu Wireless
Servicii imobil
Supraveghere video
Amenajare străzi
Iluminat stradal Mijloace de transport în comun Asfaltate
Comision
standard

Vecinătăți:

Metrou Grivita, Piata Domenii, Parcul Ciresarii

Disponibilitate proprietate:

Imediat

Puncte de interes

Mijloace transport
metro-station
Metrorex. Stația Grivița (M4) (en)
Stații metrou aprox. 230 m
bus-station
Griro bus N117, 105, 65, 97, 86
Stații autobuz aprox. 235 m
trolleybus-station
Statie Caraiman 65, 97, 86
Stații troleibuz aprox. 263 m
train-station
Halta CFR Bucuresti Basarab h
Stații tren aprox. 313 m
Școală
kindergarten
Gradinita Nr. 43
Gradinițe aprox. 426 m
school
Scoala Nr. 173 Eugen Barbu
Școli aprox. 430 m
kindergarten
Gradinita Happy Tweety
Gradinițe aprox. 496 m
university
Facultatea de Biotehnologii
Universități aprox. 1155 m
Recreere
park
Loc de joaca
Parcuri aprox. 254 m
supermarket
Mega Image Giulesti-Prunaru
Supermarket aprox. 295 m
sports-ground
Teren sportiv
Terenuri sport aprox. 395 m
hypermarket
Intrarea in caminele C si D din grozavesti
Hipermarket aprox. 1908 m

Detalii despre preț și costuri

Prețul pe piață

Preț cerut: 180.500 €

Preț min. zonă 105.000 €
Preț max. zonă 412.000 €

56% dintre proprietățile similare ca zonă și nr. camere au prețul cerut mai mare. mai multe...

Bine de știut: prețul unei proprietăți este influențat și de alte caracteristici, cum ar fi: vechime, localizare, vecinătăți, suprafață, compartimentare, amenajări, dotări, etc. mai puțin...

Costuri cu achiziția

Fără credit
10.403 RON
Credit ipotecar
12.443 RON
Noua casă
1.253 RON+ taxe notariale

i

Costuri adiționale mai puțin știute la achiziție: taxe notariale, comisioane etc.

Proprietăți similare

Apartament cu 2 camere semidecomandat în Domenii
175.000 €
București, Domenii
2 camere
57 mp
Mansardă / 5
Apartament cu 2 camere semidecomandat, mobilat în Domenii
189.800 €
București, Domenii
2 camere
44 mp
Etaj 2
Apartament cu 2 camere semidecomandat, mobilat în Domenii
189.800 €
București, Domenii
2 camere
51 mp
Etaj 2 / 8

Detalii de contact

Abonează-te la newsletter să fii primul care primește cele mai noi recomandări de proprietăți și sfaturi de la experți.

CONTACT

Creează alertă

Salvează căutarea ca să primești pe email ultimele anunțuri publicate

Apartamente noi cu 3 camere de vânzare în zona Domenii, Sector 1