18

Apartament 2 camere Piata Victoriei, complet mobilat

199.990 €

Dorobanți, București

Nr. cam.:
2
Sup. utilă:
67 mp
Etaj:
Parter / 2
Tip prop.:
Casă/Vilă
  • • Comision 0%
  • • Locație exactă

Descriere apartament

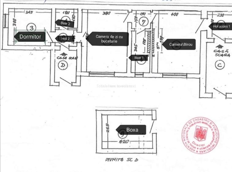
Apartamentul se vinde complet mobilat, cu bucatarie utilata (combina frigorifica incorporabila No Frost Samsung, cuptor electric, plita, masina de spalat rufe cu uscator AEG, masina de spalat vase Bosch). Apartamentul este situat la parterul unui imobil tip vila cu regim de inaltime P+2, in zona ultracentrala, la jumatatea distantei dintre Piata Romana si Piata Victoriei, in imediata apropiere a SNSPA. Accesul in imobil se face din curtea interioara comuna, ceea ce asigura liniste si intimitate. Apartamentul a fost complet renovat in 2020, interior si exterior, inclusiv partea de instalatii electrice, termice, sanitare. Apartamentul dispune de: - 2 bai, ambele cu dus; - centrala termica proprie Bosch; - rulouri exterioare automate Somfy, actionate prin telecomanda si aplicatie mobila; - 2 aparate aer conditionat; - sistem de alarma Ajax, cu senzori de miscare si deschidere usi, cu notificari si setari din aplicatia mobila; - boxa de 12 mp amenajata; - 2 cai de acces, avand intrari din 2 scari, putand astfel fi impartit in 2 locuinte distincte sau o locuinta si spatiu de lucru. Pozitia ultracentrala aduce beneficii in privinta accesului la reteaua publica de transport ( metrou si RATB), apartamentul fiind ideal atat ca locuinta, cat si ca spatiu pentru birouri sau cabinete.
Citește mai mult Citește mai puțin
Confort 1 Semidecomandat

Detalii apartament

ID anunț: XV0N007QF Copiat! 21914199 Copiat!
Actualizat în: 15 Februarie 2026
Nr. băi: 2
An construcție: Înainte de 1941
Regim înălțime: P+2E

Utilități

Comision
0%

Puncte de interes

Mijloace transport
bus-station
Orlando
Stații autobuz aprox. 133 m
tram-station
Pasaj Victoria
Stații tramvai aprox. 314 m
trolleybus-station
Statia Piata Romana linii : 79,86
Stații troleibuz aprox. 459 m
metro-station
Metrorex. Piata Victoriei 1/2 (M1) , (M2)
Stații metrou aprox. 466 m
Școală
university
SNSPA
Universități aprox. 81 m
university
Scoala Nationala de Studii Politice si Administrative (SNSPA)
Universități aprox. 95 m
school
Gradinita de copii nr.50
Școli aprox. 258 m
kindergarten
Gradinita nr. 252 cu program prelungit
Gradinițe aprox. 524 m
Recreere
park
Parcul Nicolae Iorga
Parcuri aprox. 362 m
public-square
Piața Romană
Piețe publice aprox. 443 m
mall
"METROPLIS CENTER"
Mall aprox. 450 m
supermarket
Bila Supermarket
Supermarket aprox. 473 m

Detalii despre preț și costuri

Prețul pe piață

Preț cerut: 199.990 €

Preț min. zonă 106.900 €
Preț max. zonă 280.000 €

69% dintre proprietățile similare ca zonă și nr. camere au prețul cerut mai mare. mai multe...

Bine de știut: prețul unei proprietăți este influențat și de alte caracteristici, cum ar fi: vechime, localizare, vecinătăți, suprafață, compartimentare, amenajări, dotări, etc. mai puțin...

Costuri cu achiziția

Fără credit
9.766 RON
Credit ipotecar
11.727 RON
Noua casă
1.159 RON+ taxe notariale

i

Costuri adiționale mai puțin știute la achiziție: taxe notariale, comisioane etc.

Proprietăți similare

Apartament cu 2 camere semidecomandat în Dorobanți
189.000 €
București, Dorobanți
2 camere
60 mp
Etaj 6
Apartament cu 3 camere decomandat în Dorobanți
180.000 €
București, Dorobanți
3 camere
70 mp
Etaj 5
Apartament cu 4 camere decomandat în Dorobanți
180.000 €
București, Dorobanți
4 camere
80 mp
Etaj 1 / 2

Detalii de contact

Ana-Maria Popescu

Ana-Maria Popescu

Proprietar

Abonează-te la newsletter să fii primul care primește cele mai noi recomandări de proprietăți și sfaturi de la experți.

CONTACT

Creează alertă

Salvează căutarea ca să primești pe email ultimele anunțuri publicate

Apartamente cu 2 camere de vânzare în zona Dorobanți, Sector 1