Apartament 4 camere de vanzare in vila zona Dorobanti - ASE, Bucuresti

415.000 €

Dorobanți, București

Nr. cam.:
4
Sup. utilă:
74 mp
Etaj:
2 / 2
Tip prop.:
Casă/Vilă
  • • Locație aproximativă

Descriere apartament

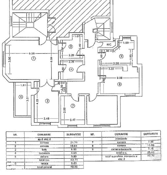
Apartamentul este situat la etajul doi al unui imobil aflat in zona Dorobanti, foarte aproape de Academia de Studii Economice Bucuresti. Descriere: Etaj 2: 4 camere, bucatarie, baie; Facilitati: parchet triplu stratificat; gresie si faianta de calitate deosebita; obiecte sanitare modern; instalatii termice, electrice si sanitare complet refacute; au fost pastrate mozaicul original si usile interioare, spectaculoase, cu cristal fatetat. Descriere: Etaj 2: 4 camere, bucatarie, baie; Facilitati: parchet triplu stratificat; obiecte sanitare modern; instalatii termice, electrice si sanitare complet refacute; au fost pastrate mozaicul original si usile interioare, spectaculoase, cu cristal fatetat.
Citește mai mult Citește mai puțin
Confort 1 Decomandat Nemobilat 1 Balcon / Terasă / Logie Centrală proprie Renovat

Detalii apartament

ID anunț: X3RN001JD Copiat! 196757848 Copiat!
Actualizat în: 08 Octombrie 2025
Suprafață utilă totală: 74 mp
Suprafață construită: 97 mp
Nr. bucătării: 1
Nr. băi: 2
An construcție: Înainte de 1941
Structură rezistență: Beton
Regim înălțime: D+P+2E

Utilități

Destinație
Rezidențial Birouri
Pereți
Vopsea lavabilă
Podele
Parchet
Ușă intrare
Lemn
Uși interior
Lemn
Ferestre cu geam termopan
PVC
Contorizare
Contor gaz
Alte spații utile
WC Serviciu
Utilități
Curent Apă Canalizare Gaze
Amenajare străzi
Asfaltate Iluminat stradal Mijloace de transport în comun
Comision
Standard

Vecinătăți:

Piata Romana
ASE
B-dul Dacia

Puncte de interes

Mijloace transport
bus-station
Stefan cel Mare
Stații autobuz aprox. 59 m
tram-station
Stadion Dinamo
Stații tramvai aprox. 128 m
metro-station
Metrorex. Stația Ștefan cel Mare (M1)(1989)
Stații metrou aprox. 143 m
trolleybus-station
Statia Calea Dorobantilor; Liniile:79, 86,
Stații troleibuz aprox. 623 m
Școală
school
Clubul Sportiv Dinamo Bucuresti
Școli aprox. 130 m
kindergarten
Gradinita nr. 138 cu program prelungit
Gradinițe aprox. 306 m
school
Scoala nr. 24
Școli aprox. 344 m
university
CROS - Universitatea Alternativa
Universități aprox. 430 m
Recreere
park
Parc
Parcuri aprox. 223 m
sports-ground
Stadionul Dinamo
Terenuri sport aprox. 270 m
supermarket
Mega Image - IANCU DE HUNEDOARA
Supermarket aprox. 413 m
mall
"METROPLIS CENTER"
Mall aprox. 445 m

Detalii despre preț și costuri

Prețul pe piață

Preț cerut: 415.000 €

Preț min. zonă
Preț max. zonă

100% dintre proprietățile similare ca zonă și nr. camere au prețul cerut mai mic. mai multe...

Bine de știut: prețul unei proprietăți este influențat și de alte caracteristici, cum ar fi: vechime, localizare, vecinătăți, suprafață, compartimentare, amenajări, dotări, etc. mai puțin...

Insight premium disponibil după login

Costuri cu achiziția

Fără credit
Credit ipotecar
Noua casă

i

Costuri adiționale mai puțin știute la achiziție: taxe notariale, comisioane etc.

Insight premium disponibil după login

Proprietăți recomandate

Detalii de contact

REGATTA

Ana-Maria Popescu Real Estate Broker Residential Department

REGATTA
PRO

Abonează-te la newsletter să fii primul care primește cele mai noi recomandări de proprietăți și sfaturi de la experți.

CONTACT

Creează alertă

Salvează căutarea ca să primești pe email ultimele anunțuri publicate

Apartamente cu 4+ camere de vânzare în zona Dorobanți, Sector 1