Apartament 4 Camere | Dorobanti | Comision 0 |

293.000 €

Dorobanți, București

Nr. cam.:
4
Sup. utilă:
82 mp
Etaj:
3 / 10
An constr.:
1980 (Finalizată)
  • • Comision 0%
  • • Locație exactă

Descriere apartament

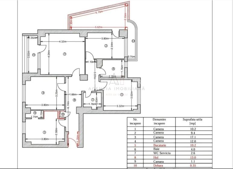
Vă propunem spre vânzare un apartament spațios de 4 camere, situat pe Calea Dorobanți nr. 20, una dintre cele mai exclusiviste și căutate artere din București, recunoscută pentru poziționarea centrală, accesul rapid către zonele de business și atmosfera elegantă. Comision 0 pentru Cumparator Detalii proprietate: Suprafață totală: 94 mp Suprafață utilă: 82 mp Compartimentare: 4 camere 3 dormitoare Living generos Băi: 2 Etaj: 3 Stare: necesită renovare completă (100%) Puncte forte ale apartamentului: Compartimentare excelentă, cu separarea clară a zonei de zi față de zona de noapte Suprafață generoasă, rar întâlnită în zonă Etaj intermediar – ideal pentru confort termic și fonic Două băi – un mare avantaj pentru familii sau investiție Potențial ridicat de personalizare – poate fi amenajat exact după gustul viitorului proprietar Ideal atât pentru locuință proprie, cât și pentru investiție (închiriere pe termen lung sau office rezidențial) Avantajele locației – Calea Dorobanți Locația este principalul atu al acestei proprietăți: Zonă ultra-centrală, cu acces rapid către: Piața Romană Piața Victoriei Floreasca Aviatorilor Aproape de restaurante premium, cafenele, bănci, clinici, școli și centre de business Acces facil la mijloace de transport în comun Zonă cu cerere constantă pe piața imobiliară, ideală pentru investiții sigure Pentru mai multe informatii nu ezitati sa ma contactati
Citește mai mult Citește mai puțin
Confort 1 Decomandat Nemobilat 2 Balcoane / Terase / Logii Calorifere Termoficare Necesită renovare

Detalii apartament

ID anunț: XDVL100N6 Copiat! 275255589 Copiat!
Actualizat în: 11 Martie 2026
Suprafață construită: 94 mp
Nr. bucătării: 1
Nr. băi: 2
Structură rezistență: Beton
Tip imobil: Bloc de apartamente
Regim înălțime: P+10E

Utilități

Podele
Gresie Parchet
Uși interior
Celulare
Contorizare
Apometre Contor căldură Contor gaz
Facilități imobil
Interfon Lift
Utilități
Curent Apă Canalizare CATV Gaze
Amenajare străzi
Iluminat stradal Mijloace de transport în comun Asfaltate
Comision
0%

Disponibilitate proprietate:

Imediat

Puncte de interes

Mijloace transport
trolleybus-station
Statia Calea Dorobantilor; Liniile:79, 86,
Stații troleibuz aprox. 80 m
metro-station
Statia Metrou Piata Romana(M2)Metrorex
Stații metrou aprox. 302 m
bus-station
Piata Lahovari
Stații autobuz aprox. 314 m
tram-station
Statie tramvai 1, 46 - Calea Dorobantilor
Stații tramvai aprox. 532 m
Școală
university
ASE - Cibernetica
Universități aprox. 60 m
kindergarten
Gradinita nr. 85
Gradinițe aprox. 65 m
school
Cladirea Virgil Madgearu
Școli aprox. 71 m
university
ASE Cibernetica (en)
Universități aprox. 96 m
Recreere
supermarket
BILLA - Dorobanti
Supermarket aprox. 64 m
park
Parcul Piata Romana
Parcuri aprox. 251 m
public-square
Piața Romană
Piețe publice aprox. 265 m
mall
"METROPLIS CENTER"
Mall aprox. 501 m

Detalii despre preț și costuri

Prețul pe piață

Preț cerut: 293.000 €

Preț min. zonă 207.000 €
Preț max. zonă 950.000 €

60% dintre proprietățile similare ca zonă și nr. camere au prețul cerut mai mare. mai multe...

Bine de știut: prețul unei proprietăți este influențat și de alte caracteristici, cum ar fi: vechime, localizare, vecinătăți, suprafață, compartimentare, amenajări, dotări, etc. mai puțin...

Costuri cu achiziția

Fără credit
12.959 RON
Credit ipotecar
15.315 RON
Noua casă
1.633 RON+ taxe notariale

i

Costuri adiționale mai puțin știute la achiziție: taxe notariale, comisioane etc.

Proprietăți similare

Apartament cu 4 camere decomandat în Dorobanți
297.000 €
București, Dorobanți
4 camere
80 mp
Etaj 2
Apartament cu 3 camere semidecomandat în Dorobanți
268.000 €
București, Dorobanți
3 camere
72 mp
Etaj 4 / 8
Apartament cu 3 camere decomandat în Dorobanți
293.000 €
București, Dorobanți
3 camere
97 mp
Etaj 3 / 10

Detalii de contact

Abonează-te la newsletter să fii primul care primește cele mai noi recomandări de proprietăți și sfaturi de la experți.

CONTACT

Creează alertă

Salvează căutarea ca să primești pe email ultimele anunțuri publicate

Apartamente cu 4+ camere de vânzare în zona Dorobanți, Sector 1