3 camere PREMIUM| 117 MP + 10 MP terasa

600.000 € + TVA

Floreasca, București

Nr. cam.:
3
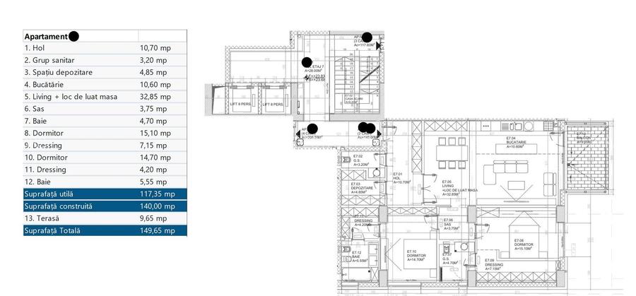
Sup. utilă:
117,35 mp
Etaj:
1 / 8
An constr.:
2021 (Finalizată)
  • • Locație aproximativă

Descriere apartament

Impact Real Estate Advisors vă propune spre vânzare un apartament premium cu 3 camere, decomandat, 127 mp, într-un proiect rezidențial exclusivist din zona Floreasca – una dintre cele mai căutate și apreciate zone din București. ***La pretul afisat se adauga TVA. ***Locul de parcare poate fi achizionat separat la pretul de 28.000 +TVA, la subteran -1 sau in sitem Klaus, la -2, 30.000 +TVA -2locuri. Arhitectura modernă și designul elegant se îmbină perfect cu spațiile interioare ample și luminoase, datorită ferestrelor vitrate și finisajelor de cea mai bună calitate. Unul dintre punctele forte ale proprietății îl reprezintă vederea panoramică spectaculoasă către Parcul Verdi, ce oferă liniște și o oază de verdeață chiar în mijlocul orașului. Compartimentare: - Zona de intrare: hol generos cu spațiu de depozitare, zonă de spălătorie și grup sanitar. - Zona de zi: living luminos cu loc de luat masa și bucătărie open-space. - Zona de noapte: dormitor matrimonial cu baie proprie (cada) și dressing, dormitor secundar și baie cu duș. Dotări și finisaje premium - Încălzire prin pardoseală – centrală proprie de bloc - Sistem de climatizare LG VR-F - Plăci ceramice Marazzi (dimensiuni floor-to-ceiling 320x160 mm) - Parchet triplu stratificat Bauwerk (Elveția) - Obiecte sanitare Villeroy & Boch - Uși de interior și acces Dierre - Tâmplărie aluminiu Alumil Imobilul dispune de paza pe timp de zi si supraveghere video 24/7. Vecinătăți: Apartamentul este situat într-o zonă premium, cu acces rapid către: - Parcul Verdi – la câțiva pași - Mall Promenada – 2 minute - Școli și grădinițe de prestigiu: Școala „Herăstrău”, Liceul „Jean Monnet”, Grădinița Bambi Step by Step, British School - Centre medicale și clinici private - Restaurante, cafenele și zone de lifestyle din Floreasca și Dorobanți - Acces facil către mijloace de transport și principalele artere din nordul Capitalei Certificatul energetic va fi disponibil la momentul vânzării. Pentru mai multe detalii sau pentru a programa o vizionare, vă invităm să ne contactați.
Citește mai mult Citește mai puțin
Confort lux Semidecomandat Nemobilat Curte comună Aer condiționat

Detalii apartament

ID anunț: XC7L101JN Copiat! 269894130 Copiat!
Actualizat în: 08 Aprilie 2026
Suprafață construită: 140 mp
Nr. bucătării: 1
Nr. băi: 3
Structură rezistență: Cărămidă
Tip imobil: Bloc de apartamente
Regim înălțime: P+8E
Nr. terase: 1

Utilități

Pereți
Vopsea lavabilă
Podele
Gresie Parchet
Ușă intrare
Metal
Izolații termice
Exterior
Ferestre cu geam termopan
Aluminiu
Contorizare
Apometre Contor căldură Contor gaz
Electrocasnice
TV
Diverse
Telecomandă poartă garaj
Alte spații utile
WC Serviciu Terasă
Facilități imobil
Acoperiș Interfon Lift Videointerfon
Utilități
Curent Apă Canalizare CATV Gaze Telefon
Internet
Cablu
Servicii imobil
Supraveghere video
Amenajare străzi
Iluminat stradal Mijloace de transport în comun Asfaltate
Comision
standard

Vecinătăți:

Calea Floreasca, Barbu Vacarescu, Mall Promenada, Aviatiei, Dorobanti, Parcul Herastrau

Disponibilitate proprietate:

Imediat

Puncte de interes

Mijloace transport
bus-station
Statia Soseaua Fabrica de Glucoza, linia 135, N119
Stații autobuz aprox. 377 m
bus-station
Statia Ancuta Baneasa, linia 135, N119
Stații autobuz aprox. 401 m
tram-station
Muzeul Aviatiei
Stații tramvai aprox. 563 m
metro-station
Aurel Vlaicu (M2)
Stații metrou aprox. 713 m
Școală
kindergarten
Gradinita SOS Satul Copiilor
Gradinițe aprox. 281 m
school
LICEUL TEORETIC "C.A. ROSETTI"
Școli aprox. 679 m
kindergarten
Gradinita nr. 12 Albinuta
Gradinițe aprox. 1010 m
university
Universitatea Atenaeum
Universități aprox. 1295 m
Recreere
sports-ground
Teren sportiv
Terenuri sport aprox. 321 m
park
Parcul Verdi
Parcuri aprox. 586 m
supermarket
Promenada
Supermarket aprox. 637 m
public-square
Piața Aviatorilor
Piețe publice aprox. 1865 m

Detalii despre preț și costuri

Prețul pe piață

Preț cerut: 600.000 €

Preț min. zonă
Preț max. zonă

i

Proprietate cu prețul cerut în afara intervalului mai multe...

Posibile explicații pentru faptul că prețul proprietății este peste cel maxim: imobil nou cu suprafață mare, are dotări și finisaje de lux.
Bine de știut: prețul unei proprietăți este influențat și de alte caracteristici, cum ar fi: vechime, localizare, vecinătăți, suprafață, compartimentare, amenajări, dotări, etc.
Insight premium disponibil după login

Costuri cu achiziția

Fără credit
Credit ipotecar
Noua casă

i

Costuri adiționale mai puțin știute la achiziție: taxe notariale, comisioane etc.

Insight premium disponibil după login

Proprietăți recomandate

Detalii de contact

IMPACT REAL ESTATE ADVISORS

Alexandra Smarandoiu Broker

3.25(4 review-uri)

IMPACT REAL ESTATE ADVISORS
PRO

Abonează-te la newsletter să fii primul care primește cele mai noi recomandări de proprietăți și sfaturi de la experți.

CONTACT

Creează alertă

Salvează căutarea ca să primești pe email ultimele anunțuri publicate

Apartamente noi cu 3 camere de vânzare în zona Floreasca, Sector 1