Parc Verdi | 4 camere | 3 bai | terase generoase | Lacul Floreasca

835.000 € + TVA

Floreasca, București

Nr. cam.:
4
Sup. utilă:
130 mp
Etaj:
2 / 5
An constr.:
2023 (Finalizată)
  • • Comision 0%
  • • Locație exactă
  • • Vizionare prin apel video

Descriere apartament

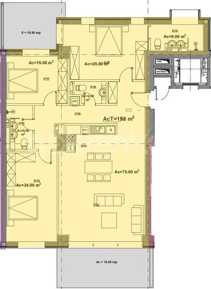
Pe malul Lacului Floreasca, beneficiind de vederi spectaculoase catre acesta, imobilul 2S+P+5 este compus din 35 de unitati rezidentiale cu 2-6 camere impartite pe 2 scari. Apartamentele au suprafete mari vitrate, vederi catre lac, suprafete generoase si sunt insorite datorita orientarii Sud - Est - Vest. Situat la etajul 2, acest apartament are o suprafata construita de 181mp dintre care 130mp utili si 28mp terasa. Este compus din living generos cu zona de dining, bucatarie, terasa 17mp, grup sanitar, dormitor matrimonial cu baie proprie si dressing, si 2 dormitoare secundare cu baie si terasa de 10mp. Finisajele si materialele folosite sunt de top (tamplarie aluminiu, fatada ventilata, incalzire in pardoseala) de la producatorii de top din domeniu. Locatia unica pe malul lacului, calitatea exceptionala a constructiei si proximitatea polului de birouri Floreasca - Promenada Mall - Aurel Vlaicu, facilitatile moderne, fac ca experienta rezidentiala sa fie la cel mai inalt nivel.
Citește mai mult Citește mai puțin
Confort lux Decomandat 2 Balcoane / Terase / Logii Piscină Aer condiționat Centrală imobil Încălzire prin pardoseală 2 Garaje

Detalii apartament

ID anunț: X1UR102RC Copiat! 275434880 Copiat!
Actualizat în: 15 Aprilie 2026
Suprafață construită: 181 mp
Nr. bucătării: 1
Nr. băi: 3
Structură rezistență: Beton
Tip imobil: Bloc de apartamente
Regim înălțime: S+P+5E
Nr. terase: 2

Utilități

Pereți
Faianță Vopsea lavabilă
Podele
Gresie Parchet
Ușă intrare
Metal
Uși interior
Lemn
Izolații termice
Exterior
Ferestre cu geam termopan
Aluminiu
Contorizare
Apometre Contor căldură Contor gaz
Diverse
Telecomandă poartă acces auto Telecomandă poartă garaj
Alte spații utile
WC Serviciu Terasă
Facilități imobil
Lift Videointerfon
Utilități
Curent Apă Canalizare CATV Gaze Telefon
Internet
Cablu
Servicii imobil
Pază Supraveghere video
Amenajare străzi
Iluminat stradal Mijloace de transport în comun Asfaltate
Comision
0%

Vecinătăți:

Lacul Floreasca
Parcul Verdi
Promenada Mall
Metrou Aurel Vlaicu

Disponibilitate proprietate:

2023

Puncte de interes

Mijloace transport
bus-station
Statia Ancuta Baneasa, linia 135, N119
Stații autobuz aprox. 276 m
tram-station
Muzeul Aviatiei
Stații tramvai aprox. 408 m
bus-station
Statia Soseaua Fabrica de Glucoza, linia 135, N119
Stații autobuz aprox. 429 m
metro-station
Aurel Vlaicu (M2)
Stații metrou aprox. 925 m
Școală
kindergarten
Gradinita SOS Satul Copiilor
Gradinițe aprox. 400 m
school
LICEUL TEORETIC "C.A. ROSETTI"
Școli aprox. 453 m
kindergarten
Gradinita nr. 12 Albinuta
Gradinițe aprox. 868 m
university
Athenaeum University (en)
Universități aprox. 1154 m
Recreere
park
Parcul Verdi
Parcuri aprox. 225 m
sports-ground
Teren sportiv
Terenuri sport aprox. 348 m
restaurant
Pescariu Sports & Spa - .pescariusports.ro (en)
Restaurant aprox. 412 m
supermarket
Promenada
Supermarket aprox. 740 m

Detalii despre preț și costuri

Prețul pe piață

Preț cerut: 835.000 €

Preț min. zonă
Preț max. zonă

100% dintre proprietățile similare ca zonă și nr. camere au prețul cerut mai mic. mai multe...

Bine de știut: prețul unei proprietăți este influențat și de alte caracteristici, cum ar fi: vechime, localizare, vecinătăți, suprafață, compartimentare, amenajări, dotări, etc. mai puțin...

Insight premium disponibil după login

Proprietăți similare

Apartament cu 4 camere în Floreasca
890.000 € + TVA
București, Floreasca
4 camere
144 mp
Etaj 15
Apartament cu 6 camere decomandat în Floreasca
785.000 €
București, Floreasca
6 camere
195 mp
Etaj 5
Apartament cu 3 camere decomandat în Floreasca
784.491 € + TVA
București, Floreasca
3 camere
183,98 mp
Etaj 1 / 4

Detalii de contact

Abonează-te la newsletter să fii primul care primește cele mai noi recomandări de proprietăți și sfaturi de la experți.

CONTACT

Creează alertă

Salvează căutarea ca să primești pe email ultimele anunțuri publicate

Apartamente noi cu 4+ camere de vânzare în zona Floreasca, Sector 1