63

REA1004085 2 camere PROIECT NOU HERASTRAU- CARTIERUL FRANCEZ

195.000 € + TVA

Herăstrău, București

Nr. cam.:
2
Sup. utilă:
51 mp
Etaj:
4 / 4
An constr.:
2022 (Finalizată)
  • • Locație aproximativă
  • • Vizionare prin apel video

Descriere apartament

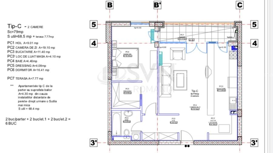
Avem deosebita placere de a va oferi spre vanzare un apartament cu 2 camere situat la etajul 4 din 4 ce fac parte dintr-un imobil finalizat, in zona Herastrau- Cartierul Francez. Apartamentul este decomandat si are suprafata utila de 51,3 mp, la care se adauga terasa cu suprafata de 4 mp. Beneficiaza de finisaje de calitate superioara, inclusiv de incalzire in pardoseala. Amplasamentul este de exceptie, in imediata vecinatate a parcului Herastrau, zona impanzita de restaurante, cafenele, sali de sport, 10 minute fata de mall Promenada etc. Apartamentele sunt ideale atat pentru locuinta, cat si pentru investitie, datorita proximitatii fata de marile companii multinationale. Fotografiile sunt cu titlu de prezentare. Pentru mai multe detalii si vizionari va stau la dispozitie.
Citește mai mult Citește mai puțin
Confort 1 Decomandat Centrală proprie Încălzire prin pardoseală

Detalii apartament

ID anunț: X65810088 Copiat! 1000861 Copiat!
Actualizat în: 24 Aprilie 2026
Suprafață utilă totală: 55 mp
Suprafață construită: 60 mp
Nr. bucătării: 1
Nr. băi: 1
Structură rezistență: Beton
Tip imobil: Bloc de apartamente
Regim înălțime: P+4E

Utilități

Destinație
Rezidențial
Pereți
Faianță
Podele
Gresie Parchet
Ferestre cu geam termopan
PVC
Contorizare
Contor căldură Apometre
Facilități imobil
Interfon Lift
Utilități
Gaze CATV Curent
Internet
Wireless
Servicii imobil
Supraveghere video Pază
Comision
Standard

Vicii:

Fără vicii.

Disponibilitate proprietate:

Disponibil din 29/01/2026.

Puncte de interes

Mijloace transport
bus-station
Carutasilor / Pasajul Aviatiei statie 301, 112
Stații autobuz aprox. 259 m
bus-station
Pasaj Baneasa statie 605, 5
Stații autobuz aprox. 488 m
tram-station
Maguricea
Stații tramvai aprox. 589 m
metro-station
Metrorex. Stația Aurel Vlaicu (M2)(1987)
Stații metrou aprox. 999 m
Școală
kindergarten
Grădinița Mary Poppins
Gradinițe aprox. 91 m
kindergarten
Grădinița Pentru Hipoacuzici NR. 65
Gradinițe aprox. 498 m
school
Scoala generala nr.12
Școli aprox. 688 m
university
Școala Superioară de Aviație Civilă - S.S.Av.C.
Universități aprox. 1414 m
Recreere
park
Parc
Parcuri aprox. 152 m
supermarket
ART Business Center 5
Supermarket aprox. 250 m
sports-ground
Teren sportiv
Terenuri sport aprox. 454 m
public-square
Piata Montreal
Piețe publice aprox. 1743 m

Detalii despre preț și costuri

Prețul pe piață

Preț cerut: 195.000 €

Preț min. zonă
Preț max. zonă

55% dintre proprietățile similare ca zonă și nr. camere au prețul cerut mai mare. mai multe...

Bine de știut: prețul unei proprietăți este influențat și de alte caracteristici, cum ar fi: vechime, localizare, vecinătăți, suprafață, compartimentare, amenajări, dotări, etc. mai puțin...

Insight premium disponibil după login

Costuri cu achiziția

Fără credit
Credit ipotecar
Noua casă

i

Costuri adiționale mai puțin știute la achiziție: taxe notariale, comisioane etc.

Insight premium disponibil după login

Proprietăți similare

Apartament cu 2 camere decomandat, mobilat în Herăstrău
210.000 €
București, Herăstrău
2 camere
50,74 mp
Parter / 3
Apartament cu 2 camere decomandat în Herăstrău
209.000 € + TVA
București, Herăstrău
2 camere
53,3 mp
Parter / 5
Apartament cu 2 camere decomandat, mobilat în Herăstrău
209.990 €
București, Herăstrău
2 camere
55 mp
Etaj 1 / 5

Detalii de contact

Abonează-te la newsletter să fii primul care primește cele mai noi recomandări de proprietăți și sfaturi de la experți.

CONTACT

Creează alertă

Salvează căutarea ca să primești pe email ultimele anunțuri publicate

Apartamente noi cu 2 camere de vânzare în zona Herăstrău, Sector 1