2

Apartament tip duplex de vanzare 4 camere zona Herastrau - Nordului, Bucuresti

1.300.000 €

Herăstrău, București

Nr. cam.:
4
Sup. utilă:
185 mp
Etaj:
Parter / 5
An constr.:
2005 (Finalizată)
  • • Locație aproximativă

Descriere apartament

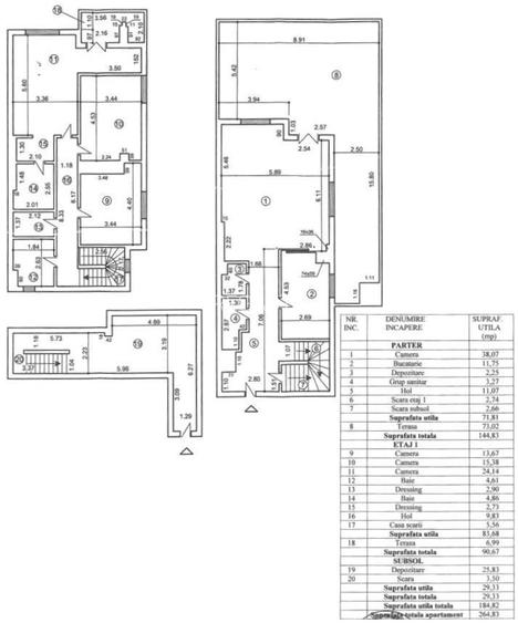
Apartamentul este situat la parterul si etajul intai al unui imobil rezidential din 2005, aflat in zona Herastrau-Nordului, langa Parcul Herastrau, oferind acces rapid catre numeroase puncte de interes. Dotari si facilitati: • intrare din strada, separat; • complet mobilat (Mobexpert si Divani&Sofa) si utilat (Samsung); • paza umana permanenta imobil, monitorizare video imobil si duplex; • dormitor matrimonial cu baie si dressing proprii; • terasa 73 mp, incalzita electric, amenajata pentru relaxare cu intrare din living, cu jacuzzi, tv, gratar; • dressinguri generoase si multe spatii pentru depozitare; • 3 locuri de parcare (2 subterane si 1 suprateran). Suprafata terasa: 73 mp
Citește mai mult Citește mai puțin
Confort lux Decomandat 1 Balcon / Terasă / Logie 3 Parcări 1 Garaj

Detalii apartament

ID anunț: X3RN001NL Copiat! 253463251 Copiat!
Actualizat în: 29 Ianuarie 2026
Suprafață utilă totală: 265 mp
Suprafață construită: 297 mp
Nr. bucătării: 1
Nr. băi: 3
Structură rezistență: Beton
Tip imobil: Bloc de apartamente
Regim înălțime: S+P+5E

Utilități

Destinație
Rezidențial
Comision
Standard

Vecinătăți:

Le Club
Parcul Herastrau
Sos Nordului

Puncte de interes

Mijloace transport
bus-station
Carutasilor / Pasajul Aviatiei statie 301, 112
Stații autobuz aprox. 268 m
bus-station
Pasaj Baneasa statie 605, 5
Stații autobuz aprox. 487 m
tram-station
Maguricea
Stații tramvai aprox. 598 m
metro-station
Metrorex. Stația Aurel Vlaicu (M2)(1987)
Stații metrou aprox. 1021 m
Școală
kindergarten
Grădinița Mary Poppins
Gradinițe aprox. 64 m
kindergarten
Grădinița Pentru Hipoacuzici NR. 65
Gradinițe aprox. 525 m
school
Scoala generala nr.12
Școli aprox. 715 m
university
Școala Superioară de Aviație Civilă - S.S.Av.C.
Universități aprox. 1387 m
Recreere
park
Parc
Parcuri aprox. 127 m
supermarket
ART Business Center 5
Supermarket aprox. 275 m
sports-ground
Teren sportiv
Terenuri sport aprox. 451 m
public-square
Piata Montreal
Piețe publice aprox. 1746 m

Detalii despre preț și costuri

Prețul pe piață

Preț cerut: 1.300.000 €

Preț min. zonă
Preț max. zonă

i

Proprietate cu prețul cerut în afara intervalului mai multe...

Posibile explicații pentru faptul că prețul proprietății este peste cel maxim: imobil nou cu suprafață mare, are dotări și finisaje de lux.
Bine de știut: prețul unei proprietăți este influențat și de alte caracteristici, cum ar fi: vechime, localizare, vecinătăți, suprafață, compartimentare, amenajări, dotări, etc.
Insight premium disponibil după login

Proprietăți recomandate

Detalii de contact

REGATTA

Ana-Maria Popescu Real Estate Broker Residential Department

REGATTA
PRO

Abonează-te la newsletter să fii primul care primește cele mai noi recomandări de proprietăți și sfaturi de la experți.

CONTACT

Creează alertă

Salvează căutarea ca să primești pe email ultimele anunțuri publicate

Apartamente cu 4+ camere de vânzare în zona Herăstrău, Sector 1