1

Penthouse duplex cu 5 camere, 3 bai | 244mp | Vedere panoramica

740.000 € + TVA

Herăstrău, București

Nr. cam.:
5
Sup. utilă:
141 mp
Etaj:
6 / 7
An constr.:
2021 (Finalizată)
  • • Exclusivitate
  • • Locație exactă
  • • Vizionare prin apel video

Descriere apartament

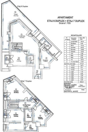
La cativa pasi de Parcul Herastrau, acest penthouse duplex impresionant se afla la ultimele 2 nivele ale unui imobil rezidential modern 2S+P+7 finalizat in 2021. Beneficiaza de o vedere panoramica superba care parc si peste intreaga zona. Este insorit toata ziua fiind orientat sud-vest. Suprafata totala este de 244mp din care 141mp utili plus 40mp terasa. La etajul 6 are zona de zi compusa din living foarte luminos cu zona de dining, birou (poate fi adaugat livingului rezultand 45mp), terasa mare de 40mp, bucatarie mobilata si echipata complet, grup sanitar si hol cu dressing. La etajul 7 are dormitorul matrimonial cu baie si dressing proprii, plus 2 dormitoare secundare care impart o baie cu dus. Fiecare camera are balcon. Finisajele sunt noi, de foarte buna calitate (ferestre aluminiu panoramice floor-to-ceiling, fatada ventilata, incalzire in pardoseala cu termostate individuale in fiecare camera, AC, parchet triplu stratificat, ceramica moderna, rulouri electrice). La subsol sunt disponibile 2 locuri de parcare la pretul de 30.000 euro+TVA/loc. Avand in vedere locatia apropiata de majoritatea punctelor de interes si spatiul generos oferit, este potrivit pentru resedinta unei familii.
Citește mai mult Citește mai puțin
Confort lux Decomandat Parțial mobilat Aer condiționat Centrală imobil Încălzire prin pardoseală 2 Garaje

Detalii apartament

ID anunț: X1UR102R0 Copiat! 275364490 Copiat!
Actualizat în: 27 Martie 2026
Suprafață construită: 244 mp
Nr. bucătării: 1
Nr. băi: 3
Structură rezistență: Beton
Tip imobil: Bloc de apartamente
Regim înălțime: S+P+7E
Nr. terase: 1

Utilități

Pereți
Faianță Tapet Vopsea lavabilă
Podele
Gresie Parchet
Rulouri/Obloane
Aluminiu
Ușă intrare
Metal
Uși interior
Lemn
Izolații termice
Exterior
Ferestre cu geam termopan
Aluminiu
Contorizare
Apometre Contor căldură
Bucătărie
Utilată
Electrocasnice
Aragaz Frigider Hotă Mașină de spălat Mașină spălat vase TV
Diverse
Scară interioară Telecomandă poartă acces auto
Alte spații utile
WC Serviciu Terasă
Facilități imobil
Interfon Lift Videointerfon
Utilități
Curent Apă Canalizare CATV Gaze Telefon
Internet
Cablu Wireless
Servicii imobil
Supraveghere video
Amenajare străzi
Iluminat stradal Mijloace de transport în comun Asfaltate
Comision
standard

Disponibilitate proprietate:

Imediat

Puncte de interes

Mijloace transport
bus-station
statie Horia Macelariu 205, 261, 335, N113
Stații autobuz aprox. 118 m
tram-station
Apicola
Stații tramvai aprox. 310 m
metro-station
Metrorex. Stația Aurel Vlaicu (M2)(1987)
Stații metrou aprox. 1625 m
airport
Aeroportul Internațional Băneasa (Aurel Vlaicu) - LRBS (BBU)
Aeroporturi aprox. 1945 m
Școală
school
Grupul Scolar "Viaceslav Harnaj"
Școli aprox. 97 m
kindergarten
Gradinita
Gradinițe aprox. 277 m
school
Gradinita nr.283
Școli aprox. 387 m
university
Școala Superioară de Aviație Civilă - S.S.Av.C.
Universități aprox. 682 m
Recreere
restaurant
EL BACHA Lebanese Restaurant
Restaurant aprox. 198 m
park
Parc
Parcuri aprox. 294 m
supermarket
Mega Image
Supermarket aprox. 423 m
sports-ground
Teren sportiv
Terenuri sport aprox. 672 m

Detalii despre preț și costuri

Costuri cu achiziția

Fără credit
33.656 RON
Credit ipotecar
38.572 RON
Noua casă
4.705 RON+ taxe notariale

i

Costuri adiționale mai puțin știute la achiziție: taxe notariale, comisioane etc.

Proprietăți similare

Apartament cu 3 camere semidecomandat, mobilat în Herăstrău
690.000 €
București, Herăstrău
3 camere
100 mp
Etaj 2
Apartament cu 4 camere decomandat, mobilat în Herăstrău
800.000 € + TVA
București, Herăstrău
4 camere
167 mp
Etaj 6 / 16
Apartament cu 3 camere decomandat, mobilat în Herăstrău
800.000 € + TVA
București, Herăstrău
3 camere
138 mp
Etaj 6 / 7

Detalii de contact

Abonează-te la newsletter să fii primul care primește cele mai noi recomandări de proprietăți și sfaturi de la experți.

CONTACT

Creează alertă

Salvează căutarea ca să primești pe email ultimele anunțuri publicate

Apartamente noi cu 4+ camere de vânzare în zona Herăstrău, Sector 1