1

Apartament nou 3 camere cu terasa, Iancu Nicolae / Pipera

299.868 € + TVA

Iancu Nicolae, București

Nr. cam.:
3
Sup. utilă:
101,83 mp
Etaj:
1 / 3
An constr.:
2026 (În construcție)
  • • Locație aproximativă

Descriere apartament

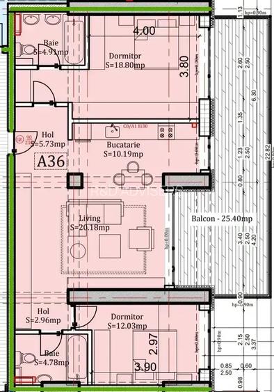
Situat în unul dintre cele mai rafinate și căutate puncte ale zonei de nord, acest apartament de 3 camere din proiectul Quarters 12 Iancu Nicolae reprezintă o locuință pentru cei care caută un nivel superior de confort, calitate și intimitate. Ansamblul este gândit pentru un stil de viață premium, cu arhitectură contemporană, linii curate, zone verzi și spații de relaxare inspirate din natură. Proximitatea față de Pădurea Băneasa și accesul rapid către școli internaționale, restaurante, centre comerciale și huburi de business precum Pipera și Aviației creează un echilibru excelent între viața urbană și liniștea unei comunități bine structurate. Apartamentul se află la etajul 1 și se remarcă prin spații luminoase, suprafețe ample și o terasă generoasă, ideală pentru momente de relaxare, socializare sau lucru în aer liber. Este o proprietate potrivită pentru cei care apreciază finisajele de calitate, spațiile bine definite și intimitatea oferită de o clădire premium cu un număr redus de unități. Pozele sunt randări folosite cu scop de prezentare, pentru a ilustra stilul și atmosfera proiectului. Apartamentul se livrează nemobilat, însă dezvoltatorul poate oferi, la cerere, soluții personalizate de mobilare și amenajare, în funcție de preferințe. Detalii finale: • Suprafață utilă: 101,83 m² • Terasă: 24,68 m² • Preț apartament: 299.868 € + TVA • Parcare: 25.000 € + TVA, achiziționată separat • 3 camere, 2 băi • Etaj: 1 • Status: în construcție, livrare în 2026 VAUNT ID: 110625
Citește mai mult Citește mai puțin
Confort 1 Decomandat Nemobilat 1 Balcon / Terasă / Logie Centrală proprie Încălzire prin pardoseală Bine întreținut (Bună)

Detalii apartament

ID anunț: X7QH201E9 Copiat! 275212954 Copiat!
Actualizat în: 06 Martie 2026
Suprafață utilă totală: 101.83 mp
Nr. bucătării: 1
Nr. băi: 2
Structură rezistență: Beton
Tip imobil: Bloc de apartamente
Regim înălțime: P+3E

Utilități

Destinație
Rezidențial
Contorizare
Apometre Contor căldură Contor gaz
Alte spații utile
Terasă
Facilități imobil
Videointerfon
Utilități
Gaze Curent Apă Canalizare
Internet
Fibră optică Cablu
Servicii imobil
Administrare Pază Supraveghere video
Amenajare străzi
Iluminat stradal Mijloace de transport în comun Asfaltate

Certificat energetic:

Clasa energetică: A

Puncte de interes

Mijloace transport
bus-station
Jolie Ville Baneasa
Stații autobuz aprox. 934 m
bus-station
Pipera Drumul Bisericii
Stații autobuz aprox. 1755 m
Școală
school
British School of Bucharest
Școli aprox. 570 m
school
Mark Twain International School
Școli aprox. 647 m
kindergarten
Kindergarden
Gradinițe aprox. 1155 m
kindergarten
Echilibria 1
Gradinițe aprox. 1193 m
Recreere
restaurant
Restaurant Tecadra
Restaurant aprox. 73 m
supermarket
Lidl Pipera
Supermarket aprox. 301 m
cafe
Doncafe Brasserie
Cafenea aprox. 447 m
park
Loc de joaca
Parcuri aprox. 801 m

Detalii despre preț și costuri

Prețul pe piață

Preț cerut: 299.868 €

Preț min. zonă
Preț max. zonă

57% dintre proprietățile similare ca zonă și nr. camere au prețul cerut mai mic. mai multe...

Bine de știut: prețul unei proprietăți este influențat și de alte caracteristici, cum ar fi: vechime, localizare, vecinătăți, suprafață, compartimentare, amenajări, dotări, etc. mai puțin...

Insight premium disponibil după login

Costuri cu achiziția

Fără credit
Credit ipotecar
Noua casă

i

Costuri adiționale mai puțin știute la achiziție: taxe notariale, comisioane etc.

Insight premium disponibil după login

Proprietăți recomandate

Detalii de contact

R&D ADVISERS

Ionut Cuciumita Project Manager

R&D ADVISERS
PRO

Abonează-te la newsletter să fii primul care primește cele mai noi recomandări de proprietăți și sfaturi de la experți.

CONTACT

Creează alertă

Salvează căutarea ca să primești pe email ultimele anunțuri publicate

Apartamente cu 3 camere de vânzare în zona Iancu Nicolae, Sector 1