1

4 camere Iancu Nicolae bloc nou, 1 loc de parcare subteran inclus in pret

580.800 €

Iancu Nicolae, București

Nr. cam.:
4
Sup. utilă:
133 mp
Etaj:
2 / 3
An constr.:
2025
  • • Locație exactă

Descriere apartament

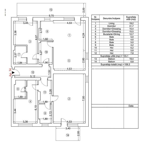
Apartament 4 camere 133 mp utili, terasa 19 mp, balcon 6 mp, 3 grupuri sanitare, constructie noua, complex rezidential, piscina. Separat se poate achizitiona inca 1 loc de parcare in subteran.
Citește mai mult Citește mai puțin
Confort 1 Decomandat 2 Balcoane / Terase / Logii Piscină Centrală imobil 2 Parcări

Detalii apartament

ID anunț: X30C000JT Copiat! 272043980 Copiat!
Actualizat în: 08 Decembrie 2025
Suprafață utilă totală: 160 mp
Nr. bucătării: 1
Nr. băi: 3
Tip imobil: Bloc de apartamente
Tip tranzacție: De vânzare prin agent
Regim înălțime: S+P+3E
Modalitate de plată: Cash sau Credit

Utilități

Destinație
Rezidențial Birouri Comercial
Pereți
Faianță Vopsea lavabilă
Uși interior
Lemn
Ferestre cu geam termopan
PVC
Alte spații utile
WC Serviciu Terasă
Facilități imobil
Lift Interfon Piscină exterioară
Utilități
CATV Gaze Curent Canalizare Apă
Servicii imobil
Administrare Pază
Amenajare străzi
Asfaltate
Comision
3%

Puncte de interes

Mijloace transport
bus-station
Jolie Ville Baneasa
Stații autobuz aprox. 44 m
airport
Aeroportul Internațional Băneasa (Aurel Vlaicu) - LRBS (BBU)
Aeroporturi aprox. 1641 m
bus-station
Statia Restaurant Baneasa, linia 148,301
Stații autobuz aprox. 1756 m
Școală
school
Mark Twain International School
Școli aprox. 340 m
school
British School of Bucharest
Școli aprox. 1535 m
kindergarten
Echilibria 1
Gradinițe aprox. 1870 m
kindergarten
Gradinita Zece
Gradinițe aprox. 1909 m
Recreere
supermarket
Mega Image Jolie Ville
Supermarket aprox. 93 m
restaurant
Phill
Restaurant aprox. 588 m
park
Loc de joaca
Parcuri aprox. 816 m
cafe
Doncafe Brasserie
Cafenea aprox. 1414 m

Detalii despre preț și costuri

Prețul pe piață

Preț cerut: 580.800 €

Preț min. zonă
Preț max. zonă

73% dintre proprietățile similare ca zonă și nr. camere au prețul cerut mai mic. mai multe...

Bine de știut: prețul unei proprietăți este influențat și de alte caracteristici, cum ar fi: vechime, localizare, vecinătăți, suprafață, compartimentare, amenajări, dotări, etc. mai puțin...

Acces la informații premium după autentificare
Login Gratuit

Costuri cu achiziția

Fără credit
Credit ipotecar
Noua casă

i

Costuri adiționale mai puțin știute la achiziție: taxe notariale, comisioane etc.

Acces la informații premium după autentificare
Login Gratuit

Proprietăți similare

Apartament cu 3 camere decomandat în Iancu Nicolae
434.390 €
București, Iancu Nicolae
3 camere
91,2 mp
Etaj 3
Apartament cu 4 camere decomandat, mobilat în Iancu Nicolae
447.700 €
București, Iancu Nicolae
4 camere
135 mp
Parter / 4
Apartament cu 3 camere în Iancu Nicolae
440.667 €
București, Iancu Nicolae
3 camere
170 mp
Etaj 3 / 3

Detalii de contact

WORLDWIDE REALTY SRL

Marius Consultant Imobiliar

WORLDWIDE REALTY SRL

Abonează-te la newsletter să fii primul care primește cele mai noi recomandări de proprietăți și sfaturi de la experți.

CONTACT

Creează alertă

Salvează căutarea ca să primești pe email ultimele anunțuri publicate

Apartamente noi cu 4+ camere de vânzare în zona Iancu Nicolae, Sector 1