1

De vanzare Penthouse exclusivist Therme, Gradina zoologica, Baneasa

785.000 €

Iancu Nicolae, București

Nr. cam.:
5
Sup. utilă:
164 mp
Etaj:
3 / 3
An constr.:
2024 (Finalizată)
  • • Locație aproximativă

Descriere apartament

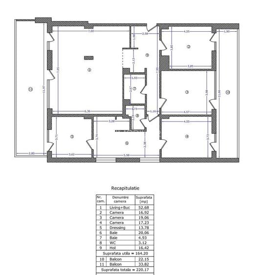
AFY Imobiliare vă propune spre vânzare un penthouse spectaculos, cu 5 camere, situat într-un imobil finalizat în 2024, în zona Jolie Ville – Iancu Nicolae. Proprietatea impresionează prin designul exclusivist realizat de arhitect de interior, cu finisaje super premium și atenție deosebită la detalii. Detalii proprietate Suprafață utilă: 164 mp Terase: 56 mp (orientare Est–Vest, cu vedere superbă la răsărit și apus) Camere: 5 (living + 3 dormitoare + birou/birou de oaspeți) Băi: 2 (există autorizație suplimentară pentru amenajarea unei a 3-a băi) Etaj: 3/3 (ultimul nivel, penthouse) An construcție: 2024 Locuri de parcare: 2 în subteran + spațiu de depozitare Dotări & finisaje Încălzire în pardoseală cu centrală proprie și termostat în fiecare cameră Bucătărie open-space de 53 mp cu insulă, complet mobilată și utilată (cuptoare, plită, hotă, frigider, congelator, frigider de vinuri – toate din gama premium) Finisaje superlux: marmură naturală, cuart, riflaje premium, vopsea lavabilă designer Mobilier realizat la comandă, piese exclusiviste cu termen lung de livrare Living generos cu deschidere spre terasă, lumină naturală abundentă Spații multiple de depozitare (dulap hol, dressing, dulap obiecte menaj) Iluminat inteligent: leduri, aplice și scenarii luminoase personalizate Prize și întrerupătoare poziționate ergonomic, inclusiv cu porturi USB Sistem securitate BGS, echipamente electronice deja achiziționate Plase premium la toate deschiderile spre terase Avantaje Apartament exclusivist, amenajat cu un buget de nivel super-lux, gata de mutare Vedere superbă către spații verzi, liniște deplină (departe de zgomotul arterelor principale) Orientare Est–Vest – luminozitate optimă și panoramă spectaculoasă Prețul include TVA, 2 locuri de parcare în subteran și boxă de depozitare Locație premium, aproape de Jolie Ville și școlile internaționale de top din Pipera (Cambridge, British School, Mark Twain etc.) Acte la zi – proprietate liberă de sarcini Comision agenție: 2% Pentru informații suplimentare sau programarea unei vizionări, nu ezitați să ne contactați. AFY Imobiliare – Profesionalism, transparență și suport complet în procesul de achiziție.
Citește mai mult Citește mai puțin
Confort lux Decomandat Lux Aer condiționat Ventiloconvectoare Centrală proprie Încălzire prin pardoseală 2 Parcări

Detalii apartament

ID anunț: XE9U103C4 Copiat! 275419507 Copiat!
Actualizat în: 17 Aprilie 2026
Nr. bucătării: 1
Nr. băi: 2
Tip imobil: Bloc de apartamente
Regim înălțime: P+3E
Nr. terase: 2

Utilități

Pereți
Tapet Vopsea lavabilă
Podele
Marmură
Izolații termice
Exterior Interior
Bucătărie
Mobilată Utilată
Electrocasnice
Aragaz Frigider Hotă Mașină de spălat Mașină spălat vase TV
Alte spații utile
Terasă
Utilități
Curent Apă Canalizare CATV Gaze
Amenajare străzi
Iluminat stradal Mijloace de transport în comun Asfaltate
Comision
standard

Vecinătăți:

Gradina Zoologica, Therme

Disponibilitate proprietate:

Imediat

Puncte de interes

Mijloace transport
bus-station
Jolie Ville Baneasa
Stații autobuz aprox. 436 m
bus-station
Statia Restaurant Baneasa, linia 148,301
Stații autobuz aprox. 1381 m
airport
Aeroportul Internațional Băneasa (Aurel Vlaicu) - LRBS (BBU)
Aeroporturi aprox. 1402 m
bus-station
Statia Padurea Baneasa, linia 148, 301
Stații autobuz aprox. 1863 m
Școală
school
Mark Twain International School
Școli aprox. 711 m
school
British School of Bucharest
Școli aprox. 1924 m
Recreere
restaurant
Phill
Restaurant aprox. 241 m
supermarket
Jolie Ville Galleria
Supermarket aprox. 464 m
park
Parc
Parcuri aprox. 588 m
mall
Baneasa Shopping Center
Mall aprox. 1916 m

Detalii despre preț și costuri

Costuri cu achiziția

Fără credit
Credit ipotecar
Noua casă

i

Costuri adiționale mai puțin știute la achiziție: taxe notariale, comisioane etc.

Insight premium disponibil după login

Proprietăți similare

Apartament cu 4 camere semidecomandat în Iancu Nicolae
735.844 € + TVA
București, Iancu Nicolae
4 camere
149 mp
Parter
Apartament cu 5 camere decomandat, mobilat în Iancu Nicolae
790.000 €
București, Iancu Nicolae
5 camere
187 mp
Etaj 3
Apartament cu 4 camere decomandat în Iancu Nicolae
746.232 € + TVA
București, Iancu Nicolae
4 camere
146 mp
Etaj 4

Detalii de contact

AFY IMOBILIARE

Darius Matei Agent

AFY IMOBILIARE
PRO

Abonează-te la newsletter să fii primul care primește cele mai noi recomandări de proprietăți și sfaturi de la experți.

CONTACT

Creează alertă

Salvează căutarea ca să primești pe email ultimele anunțuri publicate

Apartamente noi cu 4+ camere de vânzare în zona Iancu Nicolae, Sector 1