2

APARTAMENT 3 CAMERE JIULUI + TEREN (4 LOCURI DE PARCARE EXTERIOARE)

180.000 € + TVA

Jiului, București

Nr. cam.:
3
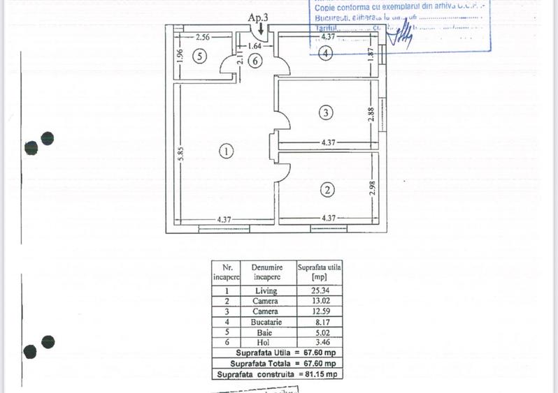
Sup. utilă:
67,6 mp
Etaj:
Parter / 3
Tip prop.:
Bloc de apartamente
  • • Locație aproximativă

Descriere apartament

Vânzare – apartament 3 camere + teren/parcare exterioră Situat în zona Străzii Jiului, într‑un imobil la parter, vă propunem spre achiziție un apartament cu 3 camere, nemobilat, având baie, bucătărie închisă și un avantaj deosebit: teren liber de aproximativ 236 m², plus 4 locuri de parcare exterioare, oferind atât confortul rezidențial, cât și potențial comercial. Detalii principale Locatie: zona Străzii Jiului, București (acces facil, vizibilitate bună) Nivel: parter – ceea ce înseamnă acces direct și ușurință la teren/curte Compartimentare: 3 camere, bucătărie închisă, baie Mobilare: nemobilat – ideal pentru personalizare după gustul dumneavoastră Teren/curte: aproximativ 236 m² – un spațiu generos care poate fi folosit atât ca zonă de relaxare, parcare, curte pentru copii, dar și cu utilitate comercială (show‑room, birouri, atelier etc) Parcări: 4 locuri de parcare exterioare dedicate – un atu rar în zonă, foarte util dacă deții mai multe mașini sau pentru vizitatori Potențial comercial: datorită amplasării la parter și terenului generos, proprietatea se pretează nu doar ca domiciliu, ci și ca sediu de firmă, birouri, clinică mică, showroom sau atelier – după avizele legale necesare. Avantaje Acces rapid la străzi importante, mijloace de transport în comun, facilități din cartier Teren privat / curte generoasă – rar pentru un apartament la parter Parcări dedicate – elimina stresul găsirii locului de parcare Nemobilat – oportunitate să amenajați spațiul după stilul dvs fără compromisuri Flexibilitate: locuință + posibilitate de exploatare comercială = investiție cu două direcții
Citește mai mult Citește mai puțin
Nemobilat 4 Parcări

Detalii apartament

ID anunț: X3RN001PU Copiat! 271128184 Copiat!
Actualizat în: 11 Noiembrie 2025
Suprafață construită: 81.15 mp
Nr. bucătării: 1
Nr. băi: 1
Regim înălțime: P+3E

Utilități

Utilități
Curent Apă Canalizare Gaze CATV
Podele
Gresie Parchet
Amenajare străzi
Asfaltate

Vecinătăți:

CARTIER DAMAROAIA
BULEVARD POLIGRAFIEI
KAUFLAND
SCOALA EUROPEANA BUCURESTI
PARC BAZILESCU

Puncte de interes

Mijloace transport
bus-station
Statie RATB : Dridu - Linii: 112,331
Stații autobuz aprox. 129 m
bus-station
statie Dridu 331, 112
Stații autobuz aprox. 157 m
tram-station
Cartier Damaroaia
Stații tramvai aprox. 422 m
metro-station
Stație metrou "Jiului"
Stații metrou aprox. 983 m
Școală
school
Colegiul Tehnic "Media"
Școli aprox. 77 m
school
Școala Generală Nr. 178
Școli aprox. 156 m
kindergarten
Gradinita cu program prelungit Winnie
Gradinițe aprox. 432 m
university
Universitatea Romano-Americana
Universități aprox. 1615 m
Recreere
supermarket
Profi
Supermarket aprox. 194 m
sports-ground
Teren sportiv
Terenuri sport aprox. 244 m
park
Loc de joaca
Parcuri aprox. 366 m
public-square
Piata Montreal
Piețe publice aprox. 1738 m

Detalii despre preț și costuri

Prețul pe piață

Preț cerut: 180.000 €

Preț min. zonă 109.500 €
Preț max. zonă 299.000 €

66% dintre proprietățile similare ca zonă și nr. camere au prețul cerut mai mic. mai multe...

Bine de știut: prețul unei proprietăți este influențat și de alte caracteristici, cum ar fi: vechime, localizare, vecinătăți, suprafață, compartimentare, amenajări, dotări, etc. mai puțin...

Costuri cu achiziția

Fără credit
10.382 RON
Credit ipotecar
12.420 RON
Noua casă
1.250 RON+ taxe notariale

i

Costuri adiționale mai puțin știute la achiziție: taxe notariale, comisioane etc.

Proprietăți recomandate

Detalii de contact

REGATTA

Marie Rose Uzunov Manager

REGATTA
PRO

Abonează-te la newsletter să fii primul care primește cele mai noi recomandări de proprietăți și sfaturi de la experți.

CONTACT

Creează alertă

Salvează căutarea ca să primești pe email ultimele anunțuri publicate

Apartamente cu 3 camere de vânzare în zona Jiului, Sector 1