Apartament 3 Camere | Kiseleff

165.000 €

Kiseleff, București

Nr. cam.:
3
Sup. utilă:
60 mp
Etaj:
8 / 9
An constr.:
1976 (Finalizată)
  • • Locație aproximativă

Descriere apartament

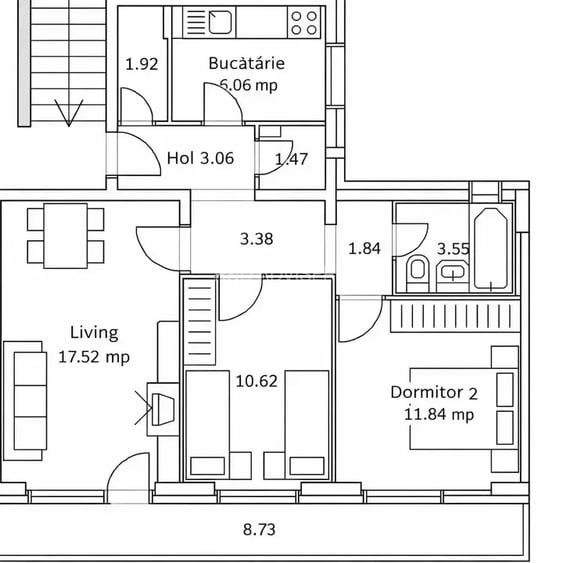
Vă propun spre vânzare un apartament de 3 camere, situat într-un bloc solid construit în anul 1976, la etajul 8 din 9, oferind o priveliște deschisă și multă lumină naturală. Compartimentare practică: - Living generos – 17.52 mp - 2 dormitoare – 10.62 mp și 11.84 mp - Bucătărie – 6.06 mp - Baie – 3.55 mp - Holuri și spații de depozitare eficiente - Balcon lung – ideal pentru relaxare sau amenajare tip lounge Stare apartament: Locuința necesită renovare completă, ceea ce reprezintă o oportunitate excelentă pentru a o amenaja exact după propriul gust și standardele dorite. Avantaje: - Bloc construit după standarde solide (1976) - Etaj intermediar superior – liniște și lumină - Compartimentare clasică, eficientă - Potențial ridicat de investiție Preț: 165.000 € Pentru mai multe detalii și programarea unei vizionări: Nicolăescu Florian VAUNT ID: 114288
Citește mai mult Citește mai puțin
Confort 1 Decomandat Nemobilat 1 Balcon / Terasă / Logie Aer condiționat Calorifere Termoficare Necesită renovare

Detalii apartament

ID anunț: X7QH202AU Copiat! 275446420 Copiat!
Actualizat în: 17 Aprilie 2026
Suprafață utilă totală: 60 mp
Suprafață construită: 68 mp
Nr. băi: 1
Structură rezistență: Beton
Tip imobil: Bloc de apartamente
Regim înălțime: S+P+9E+M

Utilități

Destinație
Rezidențial
Pereți
Humă
Podele
Dușumea
Ferestre cu geam termopan
PVC Lemn
Contorizare
Apometre Contor căldură Contor gaz
Alte spații utile
Debara
Facilități imobil
Lift
Utilități
Gaze Telefon Curent Apă Canalizare
Internet
Fibră optică Cablu
Servicii imobil
Administrare Menaj Pază Supraveghere video
Amenajare străzi
Iluminat stradal Mijloace de transport în comun Asfaltate Betonate
Comision
standard

Certificat energetic:

Clasa energetică: A

Puncte de interes

Mijloace transport
bus-station
Statia Banu Manta, linia 205,282
Stații autobuz aprox. 113 m
tram-station
Dr. Constantin Caracas
Stații tramvai aprox. 345 m
metro-station
Metrou Victoriei - iesire Aviatorilor
Stații metrou aprox. 653 m
trolleybus-station
Statie Soseaua Nicolae Titulescu 65, 97, 86
Stații troleibuz aprox. 1048 m
Școală
school
Colegiul National de Informatica "Tudor Vianu"
Școli aprox. 101 m
school
Colegiul National de Informatica Tudor Vianu
Școli aprox. 101 m
kindergarten
Gradinita nr. 2
Gradinițe aprox. 388 m
university
Universitatea Politehnica Bucuresti
Universități aprox. 971 m
Recreere
supermarket
Mega Image
Supermarket aprox. 136 m
park
Parcul Kiseleff(1832)
Parcuri aprox. 304 m
mall
"METROPLIS CENTER"
Mall aprox. 1495 m
hypermarket
Intrarea in caminele C si D din grozavesti
Hipermarket aprox. 1953 m

Detalii despre preț și costuri

Prețul pe piață

Preț cerut: 165.000 €

Preț min. zonă
Preț max. zonă

89% dintre proprietățile similare ca zonă și nr. camere au prețul cerut mai mare. mai multe...

Bine de știut: prețul unei proprietăți este influențat și de alte caracteristici, cum ar fi: vechime, localizare, vecinătăți, suprafață, compartimentare, amenajări, dotări, etc. mai puțin...

Insight premium disponibil după login

Costuri cu achiziția

Fără credit
Credit ipotecar
Noua casă

i

Costuri adiționale mai puțin știute la achiziție: taxe notariale, comisioane etc.

Insight premium disponibil după login

Proprietăți similare

Apartament cu 2 camere semidecomandat, mobilat în Kiseleff
159.000 €
București, Kiseleff
2 camere
39,3 mp
Etaj 3 / 4
Apartament cu 3 camere decomandat în Pipera
179.900 € + TVA
București, Pipera
3 camere
114,5 mp
Etaj 5 / 8
Apartament cu 2 camere semidecomandat în Floreasca
169.900 € + TVA
București, Floreasca
2 camere
69 mp
Etaj 8 / 15

Detalii de contact

R&D ADVISERS

Florian Nicolaescu Broker imobiliar

R&D ADVISERS
PRO

Abonează-te la newsletter să fii primul care primește cele mai noi recomandări de proprietăți și sfaturi de la experți.

CONTACT

Creează alertă

Salvează căutarea ca să primești pe email ultimele anunțuri publicate

Apartamente cu 3 camere de vânzare în zona Kiseleff, Sector 1