4

Apartament 2 Camere - Cortina North | TVA 0

155.000 €

Pipera, București

Nr. cam.:
2
Sup. utilă:
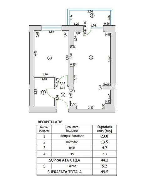
50 mp
Etaj:
3
An constr.:
2023 (Finalizată)
  • • Locație exactă

Descriere apartament

Apartament 2 camere situat în Cortina North – Faza 3, fără TVA (imobil deținut de persoană fizică). Apartamentul este complet finalizat și oferă un stil de viață premium într-una dintre cele mai căutate zone din București, Aviației–Pipera. Situat la etajul 3, cu vedere deschisă către vilele din Pipera, beneficiază de liniște, intimitate și lumină naturală. Suprafața construită este de 61,11 mp, iar suprafața utilă de 49,5 mp, cu o compartimentare eficientă, ideală pentru un stil de viață modern.
Citește mai mult Citește mai puțin
Decomandat

Detalii apartament

ID anunț: X14D102FT Copiat! 274814635 Copiat!
Actualizat în: 07 Februarie 2026
Structură rezistență: Beton
Tip imobil: Bloc de apartamente

Utilități

Utilități
Curent Apă Canalizare

Vecinătăți:

Pipera

Disponibilitate proprietate:

Imediat

Puncte de interes

Mijloace transport
bus-station
Pipera Drumul Bisericii
Stații autobuz aprox. 947 m
bus-station
Jolie Ville Baneasa
Stații autobuz aprox. 1991 m
Școală
kindergarten
Echilibria 1
Gradinițe aprox. 501 m
school
Scoala Internationala Olga Gudynn
Școli aprox. 593 m
school
Mark Twain
Școli aprox. 606 m
kindergarten
Kindergarden
Gradinițe aprox. 908 m
Recreere
supermarket
Carrefour Market Pipera
Supermarket aprox. 133 m
restaurant
Zona Pensiunii Pipera(b-dul Pipera)
Restaurant aprox. 478 m
park
Private Skatepark (en)
Parcuri aprox. 562 m
sports-ground
Teren sportiv
Terenuri sport aprox. 1145 m

Detalii despre preț și costuri

Prețul pe piață

Preț cerut: 155.000 €

Preț min. zonă 112.000 €
Preț max. zonă 250.000 €

67% dintre proprietățile similare ca zonă și nr. camere au prețul cerut mai mic. mai multe...

Bine de știut: prețul unei proprietăți este influențat și de alte caracteristici, cum ar fi: vechime, localizare, vecinătăți, suprafață, compartimentare, amenajări, dotări, etc. mai puțin...

Costuri cu achiziția

Fără credit
8.222 RON
Credit ipotecar
9.992 RON
Noua casă
930 RON+ taxe notariale

i

Costuri adiționale mai puțin știute la achiziție: taxe notariale, comisioane etc.

Proprietăți recomandate

Detalii de contact

CROSSPOINT REAL ESTATE

Camelia Malancus Junior Sales Manager

CROSSPOINT REAL ESTATE
PRO

Abonează-te la newsletter să fii primul care primește cele mai noi recomandări de proprietăți și sfaturi de la experți.

CONTACT

Creează alertă

Salvează căutarea ca să primești pe email ultimele anunțuri publicate

Apartamente noi cu 2 camere de vânzare în zona Pipera, Sector 1